Светлая и уютная квартира в сканди-стиле для семьи

2-комнатная • 56,1м² • П-3 • 14.11.2025

Реализованный проект двухкомнатной квартиры площадью 56,1 м2

Вместо устаревшего ремонта семья получила светлую квартиру в скандинавском стиле с продуманными системами хранения. Читать далее...

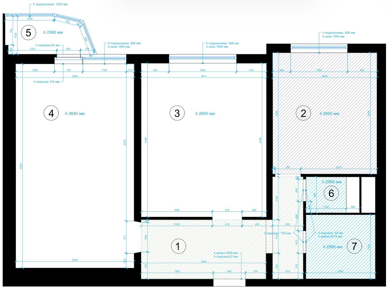
План
Комната Было Стало
Общая площадь 56,3 м2 56,1 м2
Количество комнат 2 2
Высота потолка 2,6 м 2,6 м
Весь объект 56,1 м2
Кухня 9,4 м2
Спальня 13,5 м2
Детская 14,3 м2
Гардеробная 4,2 м2
Лоджия 2,2 м2
Ванная комната 3,3 м2
Санузел 1,1 м2
Коридор 2,4 м2
Прихожая 5,7 м2
Редакция предупреждает, что в соответствии с Жилищным кодексом РФ требуется согласование проводимых переустройств и перепланировок.
Материалы и цвета
Весь объект
  • Стены: краска Hygge
  • Плинтусы: Decor Dizayn
  • Радиаторы: Rifar
Авторы
Если это ваш проект, пожалуйста, свяжитесь с нами по адресу ivd@burda.ru, указав в письме ссылку на проект.
Скандинавский стиль Квартира Желтые Зелёные Серые Чёрные и белые 2-комнатная
Комментарии (0)

Пока комментариев нет. Начните обсуждение!