Квартира для жизни студентки

1-комнатная • 40,6м² • Санкт-Петербург • ЖК «Гавань капитанов» • 2025 • 07.11.2025

Этот проект 1-комнатной квартиры на намыве Васильевского Острова Петербурга я реализовала в соавторстве с заказчицей. Она проделала огромную работу: дистанционно велись работы по отделке квартиры с бетона, проект чистовой отделки был реализован по её чертежам до меня. Я же решала задачу наполнения квартиры мебелью, техникой, светом, текстилем и декором, характером и душой. Понимая, что дочь заказчиков скоро покинет родительский дом и отправится получать высшее образование в Северной столице, мне на ум пришел образ птиц. Очень кстати пришелся принт шенилла на стульях и декоративной подушке компаньоне в виде пера. Смыслы о свободе, самостоятельности и красоте легли в основу обустройства квартиры. В квартире также в тон предметам мебели и текстиля появилась картина, написанная мной собственноручно, как напоминание о собственной красоте и возможностях юной хозяйки квартиры. Я знала, что заказчице по душе минимализм, поэтому в квартире много простых форм, графичного наполнения, линий, прямоугольных форм, «подчеркиваний». Ножки стульев, мебельные ручки, подстолья, мебельные опоры, световое оформление, толщины и вертикали, все работает на усложнение визуального ряда, без сложных форм или текстур. Постер в прихожей создала тоже сама, и, каково же было мое удивление, что первые буквы, стоящие отдельно в композиции, это инициалы молодой хозяйки квартиры.

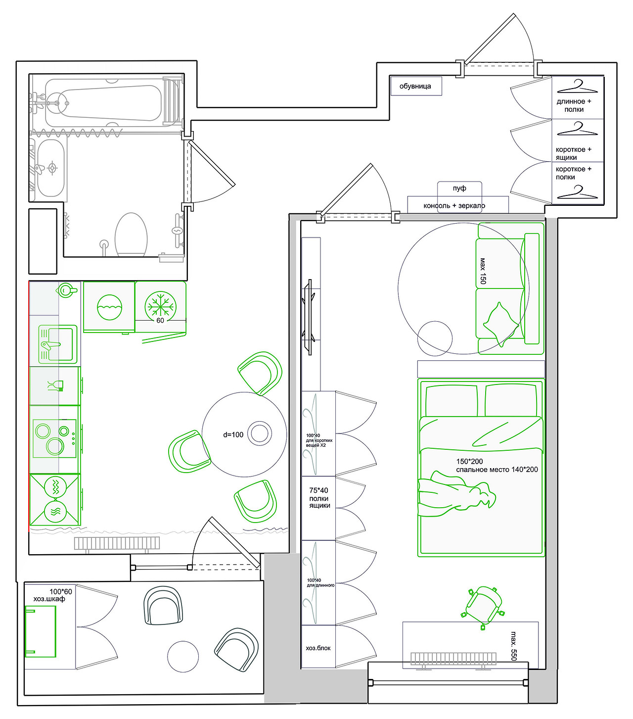
План
Комната Было Стало
Общая площадь 40,6 м2 40,6 м2
Жилая площадь 15,5 м2 15,5 м2
Количество комнат 1 1
Редакция предупреждает, что в соответствии с Жилищным кодексом РФ требуется согласование проводимых переустройств и перепланировок.
Материалы и цвета
Цвета
  • Стены
  • Текстиль, Предметы дизайна
  • Двери, Подоконник(и), Текстиль, Плинтусы, Выключатели и розетки
  • Полотенцесушитель
Авторы
Если это ваш проект, пожалуйста, свяжитесь с нами по адресу ivd@burda.ru, указав в письме ссылку на проект.
Минимализм Квартира Желтые Синие Чёрные и белые 1-комнатная
Комментарии (0)

Пока комментариев нет. Начните обсуждение!