Светлая квартира с уютным интерьером для юриста

1-комнатная • 41,1м² • ЖК «Символ» • 07.11.2025

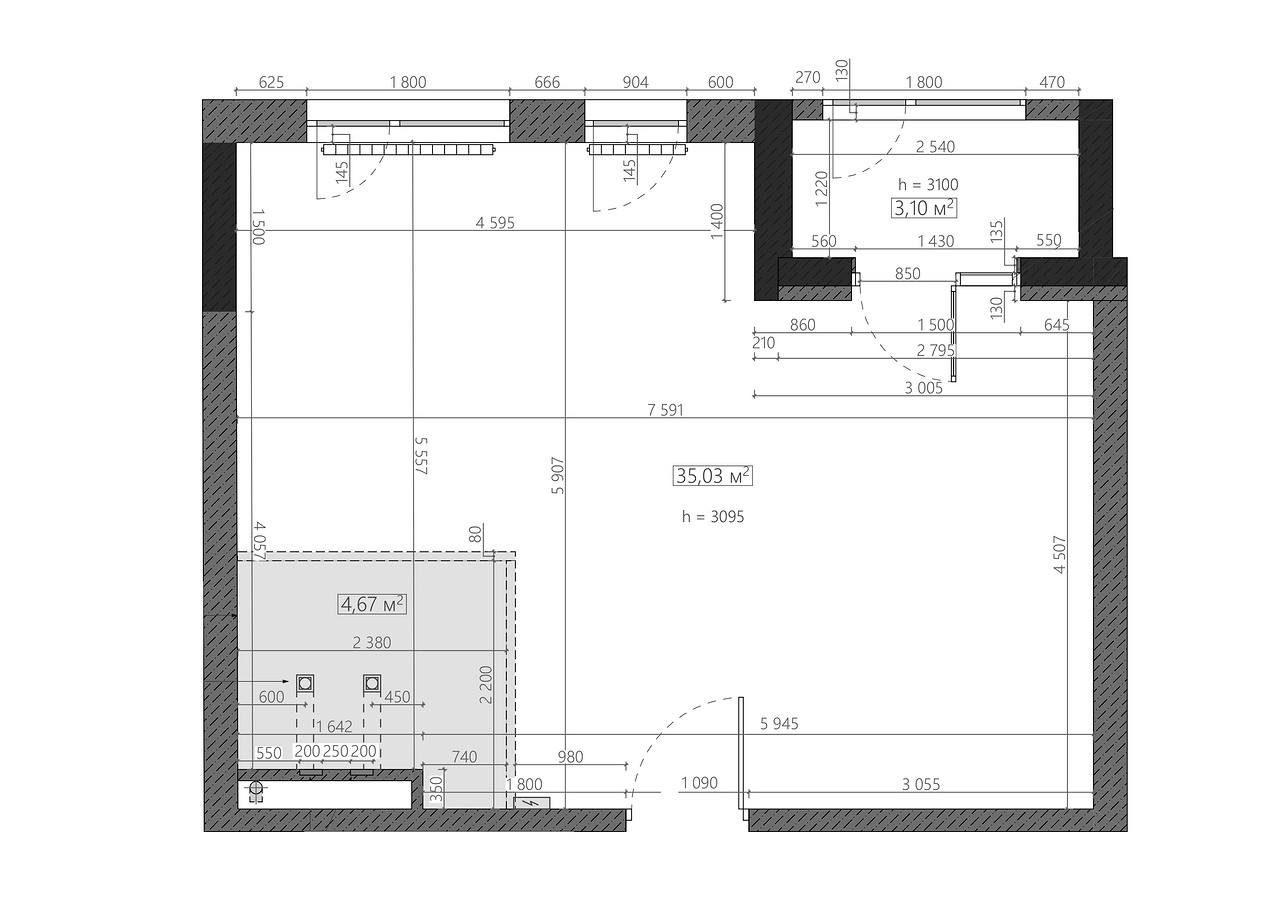
Реализованный проект однокомнатной квартиры площадью 41,1 м2

Заказчик попросил дизайнера Лину Князеву не использовать холодные оттенки, лофт и не делать подчеркнуто брутальный интерьер. Автор проекта остановилась на современной классике в светлых тонах с теплыми акцентами. Читать далее...

План
Комната Было Стало
Общая площадь 42,8 м2 41,1 м2
Количество комнат 1 1
Высота потолка 3,1 м 2,9 м
Весь объект 41,1 м2
Кухня-гостиная 18,6 м2
Спальня 12,3 м2
Лоджия 3,2 м2
Ванная комната 4,8 м2
Прихожая 2,2 м2
Редакция предупреждает, что в соответствии с Жилищным кодексом РФ требуется согласование проводимых переустройств и перепланировок.
Материалы и цвета
Весь объект
  • Пол: инженерная доска Coswick
  • Стены и пол: керамогранит Italon, Equipe
  • Двери: «Волховец»
  • Мебель: комоды Lulu Space, кровать Comocasa, диван Lavsit, стол и стулья Unika Moblar, стул в спальне Annihaus, тумба в спальне La Redoute, оранжевый столик в гостиной Swog, корпусная мебель Yl Company (на заказ)
  • Сантехника: Boheme, Omoikiri, «Сунержа»
  • Картины: над диваном — Маша Богатова, в спальне — Алена Ракова, Exantres (обе — галерея Art Sample), в спальне с пуделем — Александра Маврина
  • Декор: весь, кроме ваз в прихожей, Woon Stores
  • Ковер: kover.ru
  • Текстиль: постельное белье Claire Batiste Atelier, шторы и подушки — Юлия Горничных
  • Освещение: Aromas, Arlight
Авторы
Если это ваш проект, пожалуйста, свяжитесь с нами по адресу ivd@burda.ru, указав в письме ссылку на проект.
Современная классика Квартира Оранжевые Красные Серые Чёрные и белые 1-комнатная
Комментарии (0)

Пока комментариев нет. Начните обсуждение!