Яркая квартира в Москве для молодой семьи

3-комнатная • 71,1м² • И-209 (А) • 28.10.2025
Мила Генч Дизайнер

Реализованный проект трехкомнатной квартиры площадью 71,1 м2

Эту квартиру семейная пара получила в наследство и пригласила дизайнера для того, чтобы улучшить планировку и создать новый интерьер. Читать далее...

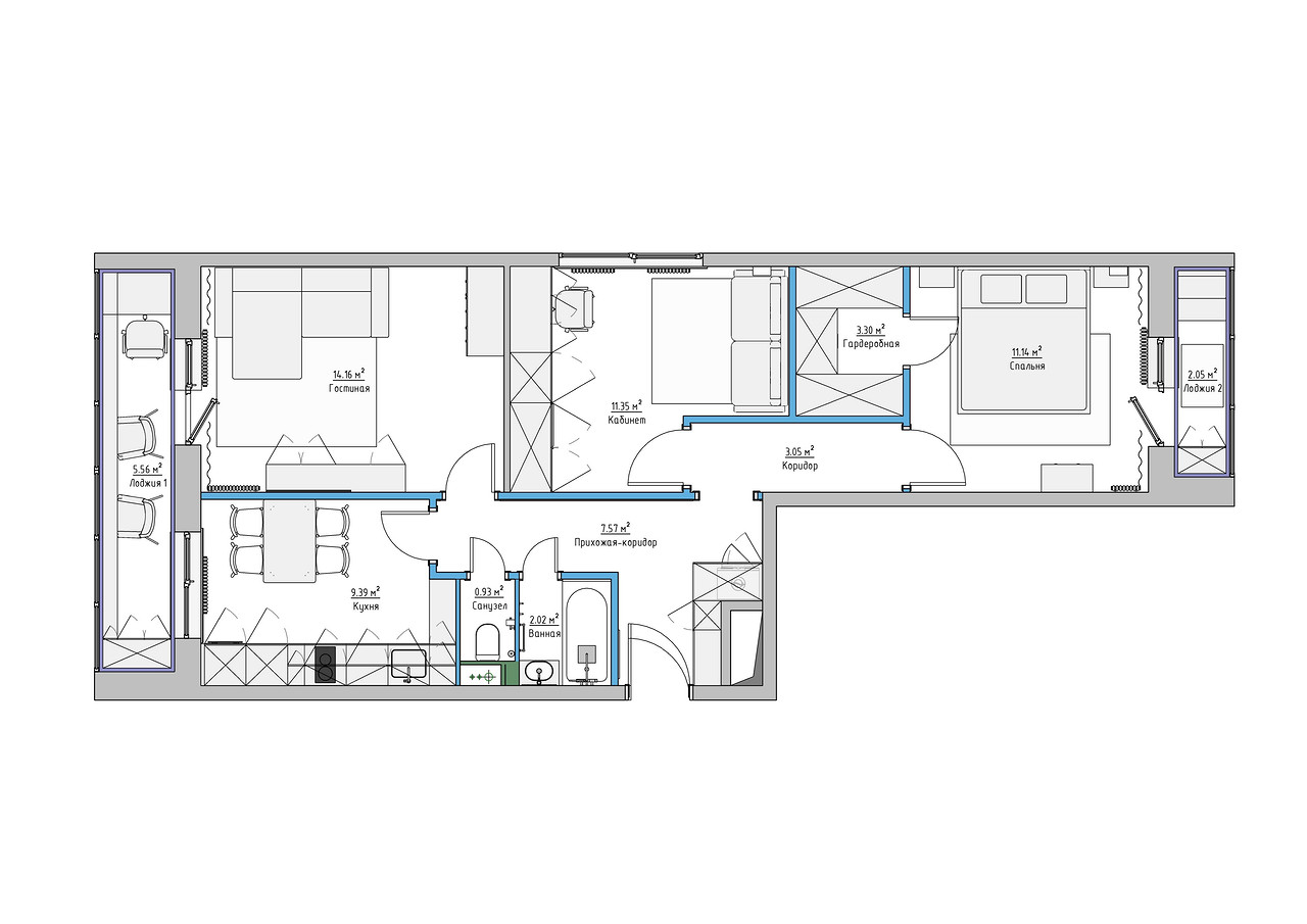
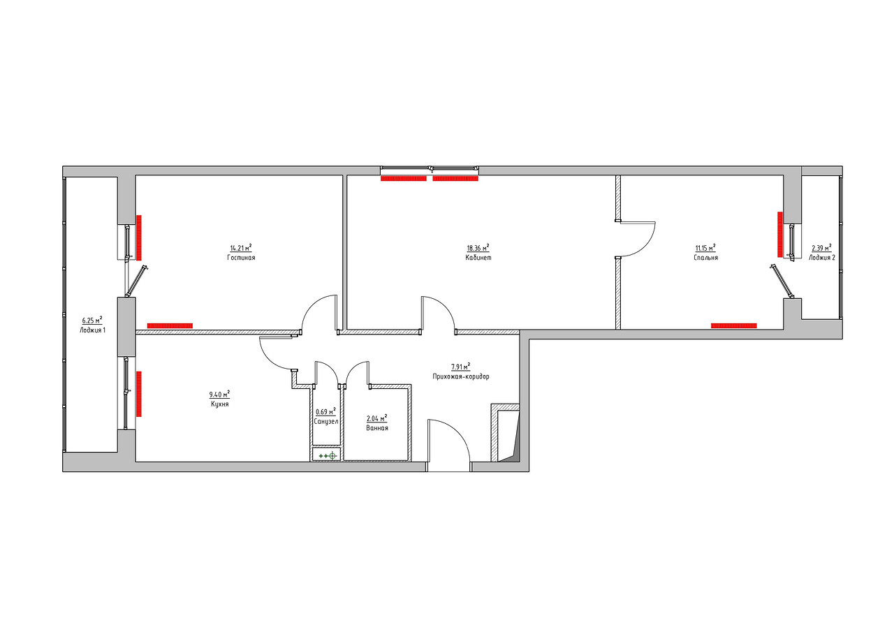
План
Комната Было Стало
Общая площадь 72,4 м2 71,1 м2
Количество комнат 3 3
Высота потолка 2,6 м 2,6 м
Весь объект 71,1 м2
Кухня 9,4 м2
Гостиная 14,2 м2
Спальня 11,7 м2
Лоджия при спальне 2,1 м2
Кабинет 11,4 м2
Гардеробная 3,3 м2
Лоджия 5,6 м2
Ванная комната 2 м2
Санузел 0,9 м2
Коридор 3,1 м2
Прихожая 7,6 м2
Редакция предупреждает, что в соответствии с Жилищным кодексом РФ требуется согласование проводимых переустройств и перепланировок.
Материалы и цвета
Весь объект
  • Стены: краска Tikkurila
  • Двери: Еstet
Авторы
Если это ваш проект, пожалуйста, свяжитесь с нами по адресу ivd@burda.ru, указав в письме ссылку на проект.
Современный стиль Квартира Фиолетовые Синие Зелёные Чёрные и белые 3-комнатная
Комментарии (0)

Пока комментариев нет. Начните обсуждение!