Воплощение мечты: яркая квартира 71 кв. м для девушки
Заказчики и задачи
Владельца квартиры пригласила дизайнера Анну Людаеву оформить интерьер, который бы радовал красками. Функционально требовалось много систем хранения и место для приема гостей.
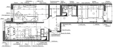
Планировка
Изначальную планировку застройщика практически не меняли: сохранили две изолированные комнаты, просторную кухню, ванную в своих границах. Из второго санузла, который расположен рядом со входом, сделали хозяйственное помещение-постирочную. А в просторном коридоре выделили гардеробную комнату.
Отделка
Отделочные материалы выбирали с оглядкой на практичность, так как хозяйка планировала завести кота. Стены покрасили — такой выбор позволил воплотить еще и пожелания по ярким цветам, ведь краску легко колеровать в любой тон. На кухне нейтральный бежевый скомбинировали с насыщенным красным. В прихожей и спальне добавили нейтральный зеленый оттенок. В ванной комнате тоже сделали акцент с помощью красного цвета.
На пол уложили керамогранит — даже в комнатах. В прихожей, на кухне и в комнатах — керамогранит под дерево, имитирующий ламинат. В ванной комнате — керамогранит под бежево-серый камень. Его же использовали в отделке стены в зоне ванны и экрана ванны. Керамогранит выбрали крупноформатный, чтобы сократить количество швов — опять же, в целях практичности.
Мебель и системы хранения
Системы хранения продуманы по-разному. Из гостевого санузла сделали хозяйственную комнату, где разместили стиральную и сушильную машины. Также в прихожей есть гардеробная, где предусмотрено хранение верхней одежды, поэтому от шкафа отказались — предусмотрели только консоль и вешалку. Напротив дверного проема на кухню разместили высокое зеркало, во всю стену — в дневное время свет отражается в зеркале, и прихожая кажется светлее.
Кухню обустроили так, как и хотела хозяйка — чтобы можно было с комфортом готовить и принимать гостей. Кухонный гарнитур П-образный с рядом верхних шкафов и высокими колоннами, куда встроены холодильник, духовой шкаф и запланировано много хранения. В одном из нижних шкафов встроена посудомоечная машина.
Обеденный стол — раскладной, чтобы можно было разместить большую комнанию гостей.
В гостиной — книжные шкафы и тумба под телевизор. Книжные шкафы сделаны с закрытыми и открытыми полками, чтобы соблюсти визуальный порядок.
В спальне — угловой шкаф с узкой секцией для книг и декора.
В ванной комнате разместили тумбу яркого цвета под цвет акцентной красной стены. Над инсталляцией унитаза тоже организован шкафчик.
Освещение
В комнатах продуманы разные сценарии освещения, чтобы можно было создать разнообразное настроение. На потолке — точечные и трековые светильники. Над обеденным столом продуман отдельный мобильный светильник, который можно двигать, когда стол решат разложить. Над полуостровом кухни — два одинаковых подвеса. В гостиной — бра над диваном и у кресла. В спальне — бра на длинной ножке у кровати. В прихожей разместили подвес у зеркала, а в ванной сделали скрытую подсветку потолка в душевой и подсветку зеркала.






Пока комментариев нет. Начните обсуждение!