Удобная двушка с ярким интерьером для девушки

2-комнатная • 71,2м² • ЖК «Приморский квартал» • 13.02.2026

Реализованный проект двухкомнатной квартиры площадью 71,2 м2

Это жилье предназначено для девушки, которая работала за Полярным кругом. Она мечтала уволиться и переехать в собственную квартиру в Петербурге — теперь ее желания исполнились. Читать далее...

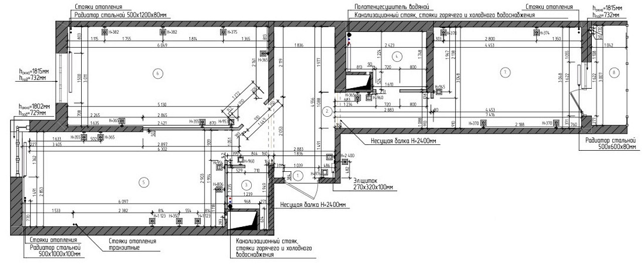
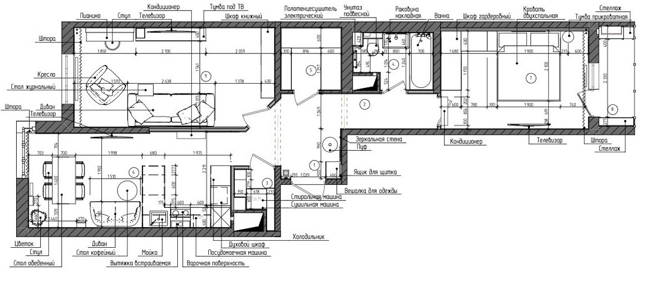
План
Комната Было Стало
Общая площадь 71,3 м2 71,2 м2
Количество комнат 2 2
Высота потолка 2,8 м 2,8 м
Весь объект 71,2 м2
Кухня 17,7 м2
Гостиная 17,9 м2
Спальня 13,6 м2
Гардеробная 3,5 м2
Лоджия 3,2 м2
Ванная комната 3,8 м2
Хозкомната 1,7 м2
Коридор 8 м2
Прихожая 1,7 м2
Редакция предупреждает, что в соответствии с Жилищным кодексом РФ требуется согласование проводимых переустройств и перепланировок.
Материалы и цвета
Весь объект
  • Пол: керамогранит Italon
  • Стены: краска Lanors Mons, керамогранит Unique
  • Двери: «Волховец»
  • Плинтусы и карнизы: «Теневой»
  • Мебель: кровать и диван «Аскона», обеденный стол СК Дизайн, стулья La Redoute, Unikamoblar, прикроватный столик Ominimalism, вешалка в прихожей Pianowood, корпусная мебель Air Mebel
  • Сантехника: унитаз Cezares, кнопка смыва Alcadrain, ванна Whitecross, смесители Hansgrohe, раковина Dolomite, мойка, дозатор и смеситель на кухне Paulmark
  • Декор: «Аскона», «Нонтон», H&M Home
  • Шторы: «Авантаж»
  • Радиаторы: Rifar
  • Освещение: треки ST Luce, точечный свет и бра в гостиной Maytoni, точечные светильники в ванной и постирочной Denkis, светильник над обеденным столом Imperium Loft, светильник в прихожей iLedex, подвесы над полуостровом «Центрсвет»
  • Выключатели и розетки: Schneider Electric
Авторы
Если это ваш проект, пожалуйста, свяжитесь с нами по адресу ivd@burda.ru, указав в письме ссылку на проект.
Современный стиль Квартира Желтые Красные Чёрные и белые 2-комнатная
Комментарии (0)

Пока комментариев нет. Начните обсуждение!