5 проектов квартир в домах 1980-90-х









В этом номере мы рассмотрим варианты перепланировки одно- и трехкомнатной квартир в доме серии И-700А. В

Свет мой, зеркальце...
|
|
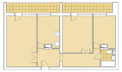
Предполагается, что хозяйка однокомнатной квартиры
Безусловно, когда речь идет об "однушке", обычно планируется совмещение функций гостиной и спальни, поэтому основная метаморфоза, которую может претерпеть единственная комната,
Планировку квартиры изменяют незначительно. Стену между гостиной и кухней оставляют на прежнем месте, но частично разбирают. У
Над рабочей зоной кухни частично опускают фальш-потолок из гипсокартона, в котором проходит гофротруба, соединяющая вытяжку с вентиляционным каналом.
Мебель в кухне размещают таким образом: холодильник выносят в специальную нишу рядом с дверью, образованную венткоробом, компактно устанавливают мойку и варочную панель. Последняя выбрана не с четырьмя конфорками, а с двумя, поскольку в большой плите нет необходимости.
В
В
На лоджии для пола используют пробковое покрытие, которое хорошо переносит перепады температур и не боится влаги. Стены и потолки в квартире выравнивают под покраску. На две стены гостиной краску наносят полосами шириной 60
Проектная часть | 75 |
Авторский надзор | 13 |
Строительные и отделочные работы | 257 |
Строительные материалы (полы, стены, потолки, перегородки |
125 000 |
Вид конструкции | Материал | Количество | Стоимость, руб. |
---|---|---|---|
ПОЛЫ | |||
Прихожая, кухня, гостиная, гардеробная | Ламинат Dynamic ( |
31 |
11 377 |
Ванная комната | Керамическая плитка Antartida (Fanal Ceramica) | 2,9 |
3317 |
Лоджия | Пробковое покрытие Corkstyle | 6,3 |
6207 |
СТЕНЫ | |||
Ванная комната | Керамическая плитка (под мозаику) Mosavit | 18,8 |
17 296 |
Лоджия | Искусственный камень Artstone | 12,6 |
9450 |
Гостиная, прихожая, кухня, гардеробная | Краска в/д |
12 |
5700 |
ПОТОЛКИ | |||
Весь объект | Краска в/д |
9 |
4200 |
ДВЕРИ (укомплектованные фурнитурой) | |||
Прихожая | Стальная дверь (Россия) | 1 шт. | 21 200 |
Остальное | Межкомнатные двери, пенал |
3 шт. | 55 500 |
САНТЕХНИКА | |||
Ванная комната | Напольный унитаз, инсталляция |
компл. | 16 000 |
Раковина Cx45 ( |
1 шт. | 9200 | |
Ванна |
1 шт. | 9500 | |
Электрический полотенцесушитель Giorgia CL | 1 шт. | 6480 | |
ЭЛЕКТРОУСТАНОВОЧНОЕ ОБОРУДОВАНИЕ | |||
Весь объект | Розетки, выключатели |
21 шт. | 11 385 |
ОСВЕТИТЕЛЬНЫЕ ПРИБОРЫ | |||
Весь объект | Светильники |
- | 163 000 |
МЕБЕЛЬ И ПРЕДМЕТЫ ИНТЕРЬЕРА (в том числе на заказ) | |||
Прихожая | Комод |
1 шт. | 38 000 |
Кухня | Кухня, обеденный стол |
2 пог. м | 89 000 |
Стулья |
3 шт. | 19 680 | |
Гостиная | Диван-кровать, кресло (Россия) | 2 шт. | 43 000 |
Комоды |
2 шт. | 95 200 | |
Сундуки (Россия) | 7 шт. | 100 000 | |
Зеркало-«солнце» (Россия) | 1 шт. | 16 300 | |
Гардеробная | Комплектующие гардеробной, фурнитура (Россия) | - | 43 000 |
Весь объект | Текстиль, карнизы (Бельгия) | - | 93 000 |
ВСЕГО | 886 |
Зеркало в раме, сделанной в виде солнца, подходит молодой мечтательнице
Сундук, служащий журнальным столиком, тоже как будто из сказки
Даже на лоджии сундук играет функционально- декоративную роль. Он отвечает общей стилистике интерьера и служит удобным сиденьем. Кроме того, это еще одно вместительное хранилище для вещей
Наиболее трудоемким занятием является отделка стен вентиляционного короба и вдоль мебельных шкафов. Она производится по следующей технологии: вначале делают фон водостойкой краской бежевого цвета, а затем при помощи трафарета наносят светлые узоры
Зеркало над обеденным столом вторит стеклянным дверцам шкафчиков. Оно визуально увеличивает помещение и "удваивает" количество светильников, создавая иллюзию лучшей освещенности
Необычный ход для "расширения" пространства: зеркала над раковиной и на стенах технического короба "множат" объемы в ванной комнате
План до переустройства
План после переустройства
Концепция: минимальная перепланировка, сохраняющая первоначальную структуру, пространство используется рационально
Творческая атмосфера
|
|
Проект рассчитан на молодого человека творческой профессии, который еще не обзавелся семьей. Основной упор в интерьере делается на выразительность отделочных материалов
Проектная часть | 35 |
Авторский надзор | 9800 |
Строительные и отделочные работы | 260 |
Строительные материалы (полы, стены, потолки, перегородки |
130 |
Вид конструкции | Материал | Количество | Стоимость, руб. |
---|---|---|---|
ПОЛЫ | |||
Гостиная, кабинет | Паркетная доска (орех) (Россия) | 19 |
19 790 |
Ванная комната | Керамическая плитка Vogue ( |
3,9 |
3549 |
Остальное | Глазурованный керамогранит |
20 |
34 645 |
СТЕНЫ | |||
Кухня, лоджия | Краска в/д, колер |
9 |
1400 |
Гостиная | Ламинат (Россия) | 9,6 |
4580 |
Кабинет | Текстильные обои Calcutta | 2 рулона | 2200 |
Ванная комната | Керамическая плитка |
16,3 |
15 800 |
Остальное | Венецианская штукатурка Decoracion (Palladio) | 26,2 |
3656 |
ПОТОЛКИ | |||
Весь объект | Краска в/д |
12 |
1870 |
ДВЕРИ (укомплектованные фурнитурой) | |||
Прихожая | Стальная дверь |
1 шт. | 27 300 |
Остальное | Раздвижные, распашные |
4 шт. | 41 340 |
САНТЕХНИКА | |||
Ванная комната | Раковина, унитаз, инсталляция |
3 шт. | 23 900 |
Ванна Columbia (Riho) | 1 шт. | 8674 | |
Смеситель, душевой комплект Damixa | компл. | 9067 | |
Водяной полотенцесушитель «Сунержа» | 1 шт. | 6000 | |
ЭЛЕКТРОУСТАНОВОЧНОЕ ОБОРУДОВАНИЕ | |||
Весь объект | Розетки, выключатели |
24 шт. | 13 100 |
ОСВЕТИТЕЛЬНЫЕ ПРИБОРЫ | |||
Весь объект | Светильники (Германия, Бельгия, Австрия) | 11 шт. | 43 300 |
МЕБЕЛЬ И ПРЕДМЕТЫ ИНТЕРЬЕРА (в том числе на заказ) | |||
Прихожая | Вешалка Tree (Swedese) | 1 шт. | 5200 |
Гардеробная | Система хранения |
компл. | 20 800 |
Кухня | Кухня «Аплод» (Ikea) | 2,7 пог. м | 27 000 |
Барная стойка (на заказ) (Россия) | компл. | 16 380 | |
Барные стулья |
3 шт. | 13 540 | |
Гостиная | Диван Ikea | 1 шт. | 13 990 |
Мебельная стенка Volani, консоль |
компл. | 89 355 | |
Зеркало (на заказ) (Россия) | 1 шт. | 12 000 | |
Кабинет | Письменный стол, стеллаж, стул (на заказ) (Россия) | компл. | 12 130 |
Лоджия | Банкетка Ikea | 1 шт. | 4230 |
Шкаф, ящики (на заказ) (Россия) | 3 шт. | 8400 | |
ВСЕГО | 483 |
Аскетичное звучание жилищу придают приставленное к стене зеркало в раме и журнальный столик, напоминающий складной стул
Кухня носит независимый мужской характер. Шкафы выполняют функцию кладовки, а бабушкины заготовки убирают в ящики. Поэтому фасады лишены декора
Большая полосатая банкетка в торце, полки с книгами и мягкий низко подвешенный светильник создают уютную атмосферу жилого помещения
Ванная облицована плиткой цвета фуксии с голубым цветочным рисунком, имеющим довольно легкомысленный вид, что несколько противоречит характеру интерьера
План до переустройства
План после переустройства
Концепция: планировка существенно меняется, получается квартира-студия
Южный колорит
|
|
Концепция этой квартиры рассчитана на то, что семья (супруги и их дочь-школьница) любит устраивать семейные обеды, а иногда шумные застолья с друзьями. Спроектировано просторное жилище, с аппетитными цветовыми акцентами, каждое помещение оформлено с фантазией. Характер интерьера жизнеутверждающий и яркий. Преобладают теплые цвета: терракотовый, болотно-зеленый, охристый.
Значительные изменения касаются прихожей, холла и кухни. Для семьи из трех человек удобно, если туалет и ванная раздельные. Поэтому туалет оборудуют на территории холла, а ванная остается на прежнем месте. Между двумя санузлами организуют глубокую нишу для стиральной машины. Это влечет за собой уменьшение площади холла, но делает ванную просторнее и комфортнее.
В
Основной декоративный акцент делается на контрастную окраску стен. Исключение составляет кухня. Здесь пастельно-охристые тона обоев, деревянных полок, стульев и фасада гарнитура под темный вяз создают теплую атмосферу, когда приятно собраться семьей за одним столом, пообщаться и разделить трапезу со своими родными.
Авторы при создании дизайн-проекта учли небольшую высоту помещения, поэтому отказались от понижения потолка и использования встроенных светильников в пользу накладных и подвесных.
Прихожая расширена за счет гостиной, ее границы изменяются. Дверной проем в гостиную ликвидируют. В
Попасть в кухню можно двумя способами: через гостиную и непосредственно из прихожей. Проемом в перегородке между кухней и гостиной удобно пользоваться, когда накрыт праздничный стол для гостей. В
В
Для организации кабинета на лоджии необходимо произвести работы по ее утеплению. Для этого используют двухкамерные стеклопакеты. В
Непривычно решено освещение в спальне родителей. Над кроватью потолок понижен всего на 7
Комната школьницы впечатляет радостными и насыщенными тонами. Терракотовый цвет стен сразу дает позитивный эмоциональный настрой. Стена с окном обшита гипсокартоном; в ней сооружены две ниши: для радиатора и полок. Перевернутый стеллаж под окном служит сиденьем и в то же время подставкой для ног, если девочка устроится с книгой на подоконнике, который достаточно широк для этого.
В
Проектная часть, авторский надзор | 145 |
Строительные и отделочные работы | 576 |
Строительные материалы (полы, стены, потолки, перегородки |
236 |
Вид конструкции | Материал | Количество | Стоимость, руб. |
---|---|---|---|
ПОЛЫ | |||
Спальня, комната дочери, лоджия | Ковролин Balta | 27,5 |
12 925 |
Остальное | Плитка Acqueforti и Anticato Naturale (Petra Antiqua) | 16,1 |
54 834 |
Массивная доска (мербау) Karelia | 35,4 |
68 879 | |
СТЕНЫ | |||
Кухня, гостиная — столовая | Обои Emiliana Parati | 2 рулона | 1780 |
Плитка Anticato Naturale (Petra Antiqua) | 2 |
6880 | |
Спальня | Декоративные панели (на заказ) | - | 16 000 |
Комната дочери | Обои (Россия) | - | 4800 |
Гостиная-столовая | Декоративная краска |
12 |
19 000 |
Ванная, туалет | Керамическая плитка Petra Antiqua | 41 |
119 800 |
Остальное | Краска в/д, фасадная |
52 |
18 400 |
ПОТОЛКИ | |||
Весь объект | Краска в/д |
20 |
5200 |
ДВЕРИ (укомплектованные фурнитурой) | |||
Прихожая | Стальная дверь |
1 шт. | 31 800 |
Остальное | Межкомнатная дверь «Арболеда» | 5 шт. | 91 800 |
САНТЕХНИКА | |||
Кухня | Мойка Reginox, смеситель |
2 шт. | 15 240 |
Ванная комната | Ванна чугунная, раковина |
2 шт. | 30 600 |
Полотенцесушитель (Россия) | 1 шт. | 3800 | |
Ванная, туалет | Смесители, душевой гарнитур |
2 шт. | 25 090 |
Туалет | Раковина угловая, унитаз |
2 шт. | 16 420 |
ЭЛЕКТРОУСТАНОВОЧНОЕ ОБОРУДОВАНИЕ | |||
Весь объект | Розетки, выключатели |
50 шт. | 16 900 |
ОСВЕТИТЕЛЬНЫЕ ПРИБОРЫ | |||
Весь объект | Светильники (Италия, Германия) | 41 шт. | 217 000 |
МЕБЕЛЬ И ПРЕДМЕТЫ ИНТЕРЬЕРА (в том числе на заказ) | |||
Прихожая | Консольный столик, зеркало (на заказ) | - | 10 600 |
Калошница, шкаф-купе |
- | 51 600 | |
Холл | Гардероб A. |
- | 68 800 |
Кухня | Кухня |
3,8 пог. м | 30 600 |
Стол, стулья (Россия) | 3 шт. | 31 640 | |
Гостиная-столовая | Стол обеденный, стулья |
7 шт. | 135 200 |
Диван, кресло |
- | 130 800 | |
Этажерка, стеллаж (Россия) | 2 шт. | 40 400 | |
Спальня | Стеклянные панели (на заказ) | - | 38 200 |
Кровать, кресло, консоль (Россия) | компл. | 134 300 | |
Комната дочери | Кровать Rimini Mobili с матрасом | 1 шт. | 26 200 |
Стол, тумба, этажерка, полки (на заказ) | - | 13 800 | |
Шкаф-купе A. |
- | 34 400 | |
Ванная, кухня | Столешница |
6 |
95 250 |
ВСЕГО | 1 |










Конструктивное решение
|
|
Проект адресован семье с двумя детьми
За счет части холла, переноса перегородок с дверным проемом (его закладывают) в детской удается расширить ванную комнату. Правда, для этого требуется согласование, а также обустройство гидроизоляции пола. Ванная становится просторнее, что позволяет уместить отдельно стоящую ванну на ножках, унитаз с встроенной системой инсталляции, биде, умывальник и стиральную машину.
Комнаты детей получаются рационально организованными. У
Комната сына расположена рядом с лоджией, которая выполняет функции игровой комнаты, места хранения игрушек. Интерьер детской и лоджии выдержан в голубых, белых и бежевых тонах. Учитывая условия нашей климатической зоны, на лоджии потребуется установить окна двойного остекления и уложить теплый пол. Комната дочери оклеена светлыми обоями с ритмичным рисунком.
В
Кухня решена в традиционной манере: кухонный фронт с встроенной техникой вдоль одной стены, обеденная зона
Гостиная обставлена также традиционно
В
Проектная часть | 120 |
Авторский надзор | 21 |
Строительные и отделочные работы | 521 |
Строительные материалы (полы, стены, потолки, перегородки |
210 |
Вид конструкции | Материал | Количество | Стоимость, руб. |
---|---|---|---|
ПОЛЫ | |||
Ванная комната | Плитка Feeling ( |
5,8 |
7137 |
Остальное | Пробковое покрытие |
47,8 |
32 815 |
Керамогранит Esko-Salix ( |
25,2 |
33 948 | |
СТЕНЫ | |||
Кухня | Плитка London brick (White Hills) | 7,3 |
4550 |
Лоджии | Пробковое покрытие |
30 |
15 000 |
Ванная комната | Плитка Feeling | 21 |
26 800 |
Плитка, панно |
6 шт. | 67 194 | |
Остальное | Краска в/д, колер |
36 |
5760 |
Структурные обои |
90 пог. м | 64 804 | |
ПОТОЛКИ | |||
Ванная комната | Натяжной (матовый) Carr |
5,9 |
5140 |
Остальное | Краска в/д, колер |
18 |
2880 |
ДВЕРИ (укомплектованные фурнитурой) | |||
Прихожая | Стальная Lego Mirage ( |
1 шт. | 41 616 |
Остальное | Раздвижная Meca ( |
2 шт. | 23 800 |
Распашная Infinity ( |
2 шт. | 25 420 | |
САНТЕХНИКА | |||
Ванная комната | Унитаз, биде |
2 шт. | 16 230 |
Система инсталляции |
2 компл. | 11 916 | |
Раковина, ванна |
2 шт. | 94 000 | |
ЭЛЕКТРОУСТАНОВОЧНОЕ ОБОРУДОВАНИЕ | |||
Весь объект | Розетки, выключатели (Турция) | 43 шт. | 11 300 |
ОСВЕТИТЕЛЬНЫЕ ПРИБОРЫ | |||
Весь объект | Светильники |
55 шт. | 41 970 |
МЕБЕЛЬ И ПРЕДМЕТЫ ИНТЕРЬЕРА (в том числе на заказ) | |||
Прихожая, спальня, холл | Комод, пуф |
2 шт. | 6600 |
Зеркало (на заказ) (Россия) | 1 шт. | 1050 | |
Комплектующие, шкаф-купе |
- | 70 000 | |
Кухня | Кухня «Луиза» («Альянс») | 3,6 пог. м | 40 000 |
Стол, стулья |
5 шт. | 25 990 | |
Гостиная | Диван с ящиками (на заказ) (Россия) | компл. | 54 000 |
Антресоль, витражи |
7 шт. | 54 410 | |
Кресло, столик |
2 шт. | 52 500 | |
Спальня | Каркас кровати, изголовье, матрас (Россия) | компл. | 38 000 |
Комната сына, комната дочери | Диваны «Улис», «Виктория» («Лагуна»), кресло «Мамба» | 4 шт. | 26 940 |
Мебельная композиция, стол (на заказ) | 2 компл. | 53 000 | |
Лоджии | Диван «Аген» | 1 шт. | 5000 |
Комод, кресло, столик откидной |
7 шт. | 22 100 | |
ВСЕГО | 981 |








Возрастные горизонты
|
|
Семье из трех человек
Дизайн основан на сочетании современных отделочных материалов и натурального дерева (пластик, хром, деревянные панели, полы из березовой доски). Дерево используется широко
Прихожая решена традиционно. Справа от входа оборудована гардеробная, которую предполагается частично использовать для различного хозяйственного инвентаря и сезонной одежды. С
Гостиная совмещает функции комнаты для отдыха и рабочего пространства. Для удобства рабочую зону можно отделить полотнами из пластика, которые с помощью роликового подвеса и направляющей на потолке перемещаются, зонируя пространство. На большом стеллаже рядом с рабочим местом разместилась библиотека. Декор гостиной
Серебристые обои, венецианская штукатурка на стене у изголовья кровати в комнате сына характеризуют ее владельца как мечтательного и романтичного юношу. В
Перепланировка не затрагивает кухню. Фасады кухонных шкафов выполнены из массива сосны. Угловая мойка позволяет рационально использовать имеющуюся площадь. Холодильник ставят у окна, но не объединяют с мебельными шкафами единым фасадом. Чтобы свободнее использовать рабочее пространство, столовую группу выносят к окну. Кухонный "фартук" отделывают декоративным кирпичом, что создает некоторую грубоватость, которая сглаживается общим колоритом кухни
Площадь санузла значительно увеличена за счет холла. Справа от входа установлена душевая кабина. А
Проектная часть | 80 |
Авторский надзор | 12 |
Строительные и отделочные работы | 480 |
Строительные материалы (полы, стены, потолки, перегородки |
180 |
Вид конструкции | Материал | Количество | Стоимость, руб. |
---|---|---|---|
ПОЛЫ | |||
Санузел | Плитка |
4,8 |
12 480 |
Мозаика (Китай) | 1 |
2300 | |
Остальное | Массивная доска Karelia | 61,4 |
98 240 |
Плитка |
12,3 |
32 531 | |
СТЕНЫ | |||
Кухонный «фартук» | Искусственный камень Kamrock | 2,4 |
4120 |
Санузел | Плитка |
34 |
47 260 |
Мозаика (Китай) | 4 |
9200 | |
Комната сына | Декоративное покрытие Fractalis | 8 |
3560 |
Остальное | Краска в/д, колер D |
5 |
650 |
Обои |
24 рулона | 18 800 | |
ПОТОЛКИ | |||
Весь объект | Краска в/д, колер D |
20 |
2600 |
ДВЕРИ (укомплектованные фурнитурой) | |||
Прихожая | Стальная дверь |
1 шт. | 24 600 |
Остальное | Распашная, раздвижная |
7 шт. | 92 400 |
САНТЕХНИКА | |||
Санузел | Раковина, унитаз подвесной |
2 шт. | 9500 |
Система инсталляции |
1 шт. | 5800 | |
Полотенцесушитель (Россия) | 1 шт. | 5600 | |
Душевая кабина Aqualux | 1 шт. | 33 500 | |
ЭЛЕКТРОУСТАНОВОЧНОЕ ОБОРУДОВАНИЕ | |||
Весь объект | Розетки, выключатели |
28 шт. | 11 200 |
ОСВЕТИТЕЛЬНЫЕ ПРИБОРЫ | |||
Весь объект | Светильники (Италия) | 26 шт. | 62 300 |
МЕБЕЛЬ И предметы ИНТЕРЬЕРА (в том числе на заказ) | |||
Прихожая | Мебельная композиция Montana | - | 18 000 |
Зеркало (на заказ) (Россия) | 1 шт. | 6650 | |
Кухня | Кухня "Кантри" ( |
4,2 пог. м | 92 800 |
Стол, стулья (Италия) | 5 шт. | 36 000 | |
Гостиная | Стеллаж (на заказ) (Россия) | - | 25 000 |
Диван, кресло (Италия) | 2 шт. | 99 000 | |
Журнальный столик Obi | 1 шт. | 7850 | |
Спальня родителей | Кровать, тумба |
2 шт. | 70 600 |
Пуфик (Россия) | 1 шт. | 4000 | |
Гардеробная (на заказ) (Россия) | - | 42 000 | |
Туалетный столик (на заказ) | 1 шт. | 9000 | |
Комната сына | Каркас, матрас (на заказ) (Россия) | 2 шт. | 12 000 |
Тумба Ikea | 1 шт. | 1800 | |
Журнальный столик (Россия) | 1 шт. | 2800 | |
Шкаф-купе |
1 шт. | 19 000 | |
Остальное | Деревянные панели и бруски | 22 пог. м | 25 000 |
Шкаф-купе |
1 шт. | 20 935 | |
ВСЕГО | 969 |
- Источник: Журнал «Идеи вашего дома»№105
Пока комментариев нет. Начните обсуждение!