Квартира для студентки: уютный и продуманный интерьер 37 кв. м
Заказчики и задачи
К дизайнеру Ирине Долгановой обратились родители взрослой дочери с запросом на оформление интерьера квартиры для нее. Функционал нужен был стандартный, по словам дизайнера: много хранения, рабочее место, так как девушка учится в вузе. Но когда дело дошло до визуальной составляющей интерьера, решили, что без мнения будущей жительницы не обойтись.
«После того как мы согласовали планировку и расстановку мебели и перешли к визуальному ряду, выяснилось, что просто необходимо подключать саму студентку. Ведь она точно знала, чего хочет, и все мои идеи, обсуждаемые с родителями, ей совершенно не подходили», — рассказывает Ирина.
Перепланировка
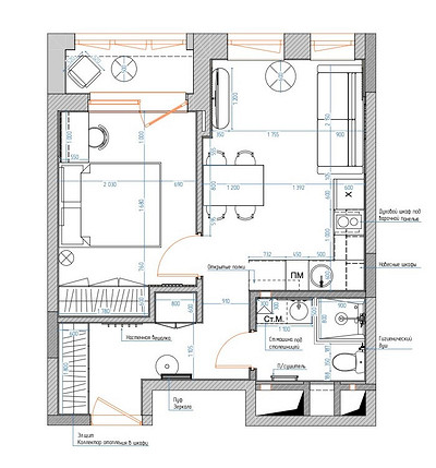
В изначальной планировке от застройщика перегородками была отделена только ванная комната. Сохранив «мокрые» зоны на своих местах, дизайнер предложила перепланировку, чтобы вписать как можно больше встроенных систем хранения. Так, вход в спальню сделали из кухни-гостиной. В прихожей создали ниши для встройки двух шкафов, в спальне тоже получилась ниша для шкафа.
Отделка
Концепцию интерьера дизайнер описывает как современную с нотками джапанди и ваби-саби. В такой концепции стены, как правило, делают фактурными, но заказчики настояли на гладких окрашенных поверхностях — в итоге для стен выбрали светлую серо-бежевую краску. Для акцентов использовали настенные панели под дерево — в углу за диваном, в ТВ-зоне, в спальне на стене с рабочим столом. Также дизайнер решила сделать объемные вырезы на стене за диваном — и разместить в них бра. Объемы и фактура дерева добавила пространству динамики.
На пол в комнате, прихожей и кухне-гостиной уложили каменно-полимерный ламинат — дробить маленькое пространство разной отделкой пола не хотелось.
В ванной комнате скомбинировали плитку из одной коллекции, но разных оттенков: светлый бежевый и нежно-зеленый. На пол уложили керамогранит, а душевой поддон оформили мозаикой. Чтобы вписаться в бюджет, поддон выполнили под стандартный размер стеклянного ограждения — это позволило купить готовое, а не делать его на заказ.
Мебель и системы хранения
Корпусную мебель изготовили на заказ, для оптимизации бюджета выбрали в качестве материала фасадов ЛДСП в белом цвете. В прихожей сразу у входа встроен шкаф для одежды, в нем же предусмотрели место для зарядки робота-пылесоса и секцию для стремянки.
Дальше по коридору — хозяйственный шкаф с местом для ведра, швабры, веника и прочих нужных бытовых вещей. «Я специально спроектировала шкафы так, чтобы было видно деревянные торцы корпуса. А сами фасады — из ЛДСП белого цвета. Мне кажется, эти «деревянные» рамки очень оживляют», — отмечает Ирина.
В спальне встроен высокий шкаф для повседневной одежды, постельного белья.
Кровать — двуспальная, но с ней дизайнер проявила изобретательность. «Я сразу планировала кровать в спальне без изголовья, потому что проход к рабочему месту мне хотелось оставить максимальным. А за счет изголовья мы сэкономили сантиметров 15-20 точно. Но само изголовье надо было смонтировать на стену. Если честно, я сбилась с ног, пока нашла нужное изголовье — именно такое, как планировала. По сути, это мягкая подушка, которая просто вешается на стену на специальные крепежи. Оказалось, что такие изголовья большая редкость, да еще и в нашем бюджете», — рассказывает Ирина.
Рабочий стол подобрали на тонких деревянных ножках с двумя выдвижными ящиками. На рейках повесили полки, куда можно положить книги, папки, тетради — разные принадлежности, нужные студентке.
Кухонный гарнитур изготовили с фасадами в цвете, приближенном к цвету стен. В целях экономии не стали делать высокие шкафы до потолка и сократили их количество — часть шкафов заменили открытыми полками с подсветкой. Из техники: встроенный холодильник, узкий духовой шкаф и посудомоечная машина.
В санузле — подвесная тумба под раковину и стеллаж с открытыми полками. Под тумбой можно расположить корзину для белья. Чтобы сэкономить, подобрали интегрированную раковину-столешницу. Ее отвезли мебельщикам, чтобы размер тумбы выверили четко под готовую модель.
Освещение
Сценарии света продумали так, чтобы можно было варьировать количество света: трековые светильники на потолке в качестве основного сценария и множество дополнительных источников освещения. В кухне-гостиной — подвесной светильник с плетеным абажуром над обеденным столом, подсветка полок на кухне, бра над диваном и скрытая подсветка за панелями. В спальне — композиция из бра рядом с кроватью и скрытая подсветка за рейками, эти сценарии можно включить отдельно.








Пока комментариев нет. Начните обсуждение!