Уютная однушка для студентки в Москве

1-комнатная • 37,8м² • ЖК «Время» • 03.03.2026

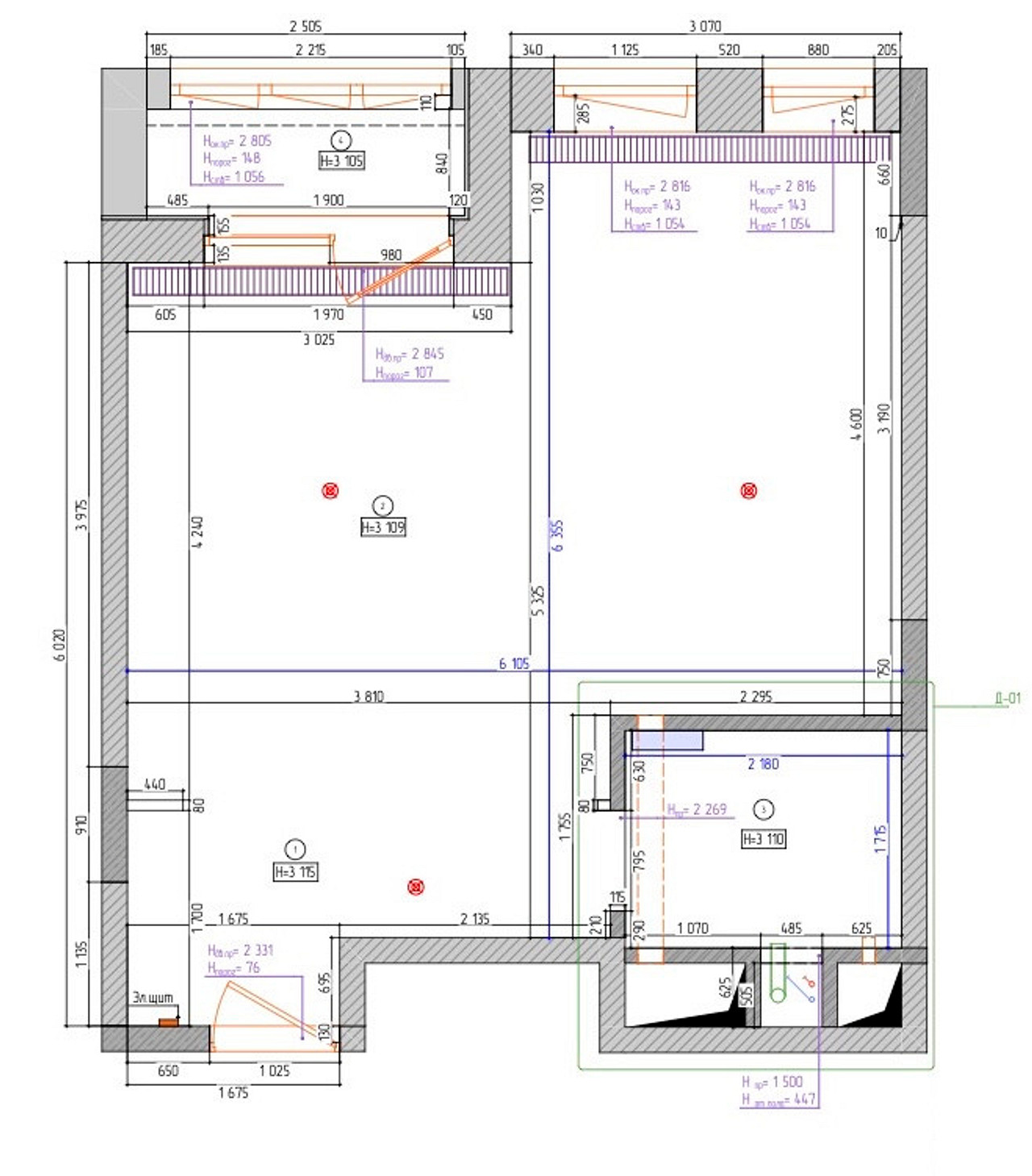
Реализованный проект однокомнатной квартиры площадью 37,8 м2

Родители позаботились о комфорте своей дочери и заказали оформление интерьера квартиры для нее у дизайнера. При этом визуальное оформление выбирала сама девушка — и дизайн получился таким, как ей хотелось. Читать далее...

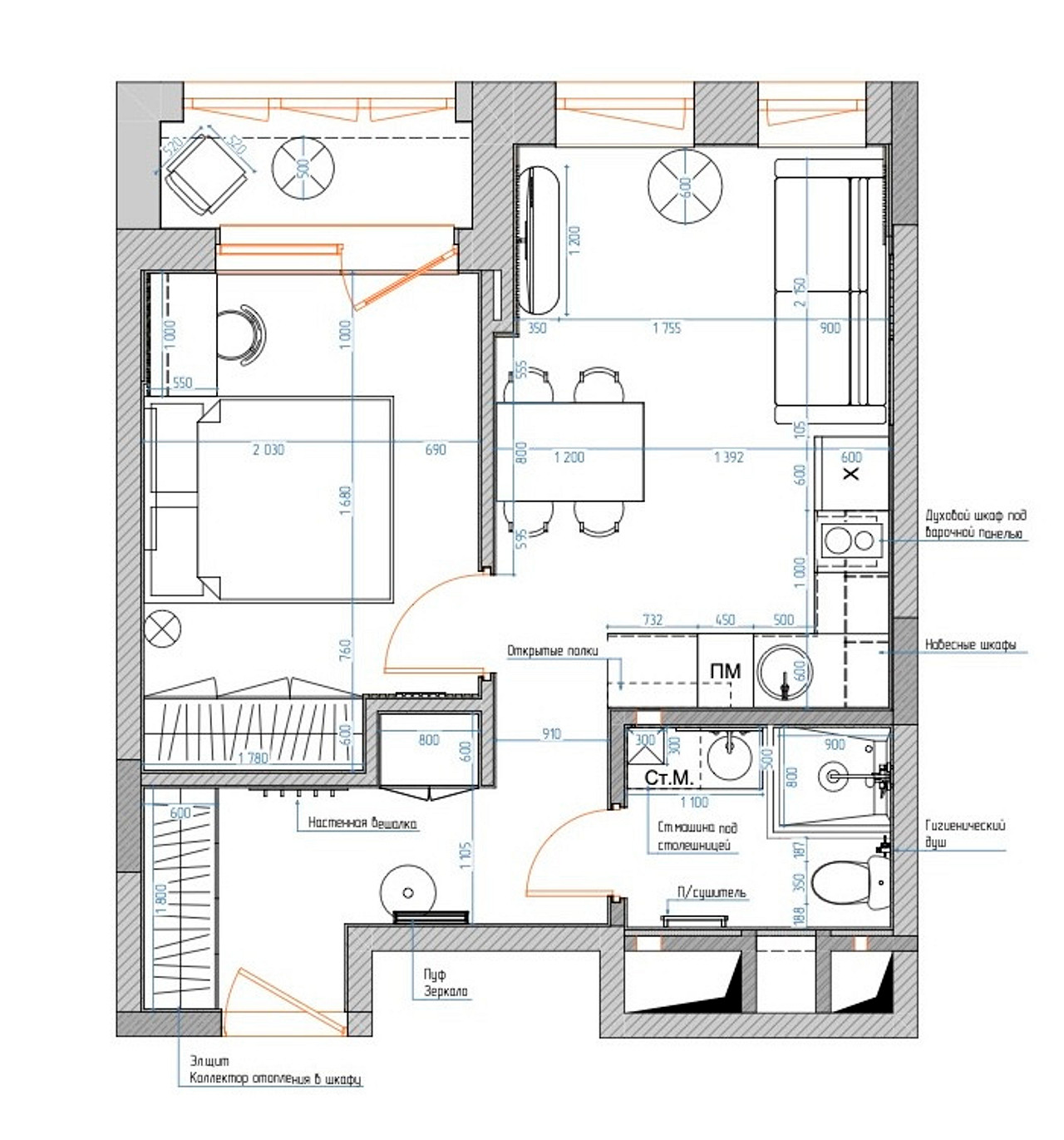
План
Комната Было Стало
Общая площадь 40 м2 37,8 м2
Количество комнат 1 1
Высота потолка 3,1 м 2,9 м
Весь объект 37,8 м2
Кухня-гостиная 14,6 м2
Спальня 10,7 м2
Лоджия 2,1 м2
Ванная комната 3,7 м2
Прихожая 6,6 м2
Редакция предупреждает, что в соответствии с Жилищным кодексом РФ требуется согласование проводимых переустройств и перепланировок.
Материалы и цвета
Весь объект
  • Пол: каменно-полимерный СПС-ламинат Alpine Floor, керамогранит в ванной Kerama Marazzi
  • Стены: плитка Kerama Marazzi
  • Стены и потолок: краска Swiss Lake
  • Двери: Верда
  • Картины: Мария Полушкина, «Иззи Декор»
  • Освещение: абажур над столом La Redoute, трековая система Maytoni
Авторы
Если это ваш проект, пожалуйста, свяжитесь с нами по адресу ivd@burda.ru, указав в письме ссылку на проект.
Современный стиль Квартира Желтые Серые Чёрные и белые 1-комнатная
Комментарии (0)

Пока комментариев нет. Начните обсуждение!

Похожие перепланировки