Как выделить в однушке место для детской? 3 функциональные планировки
1 Детская вместо части кухни-гостиной
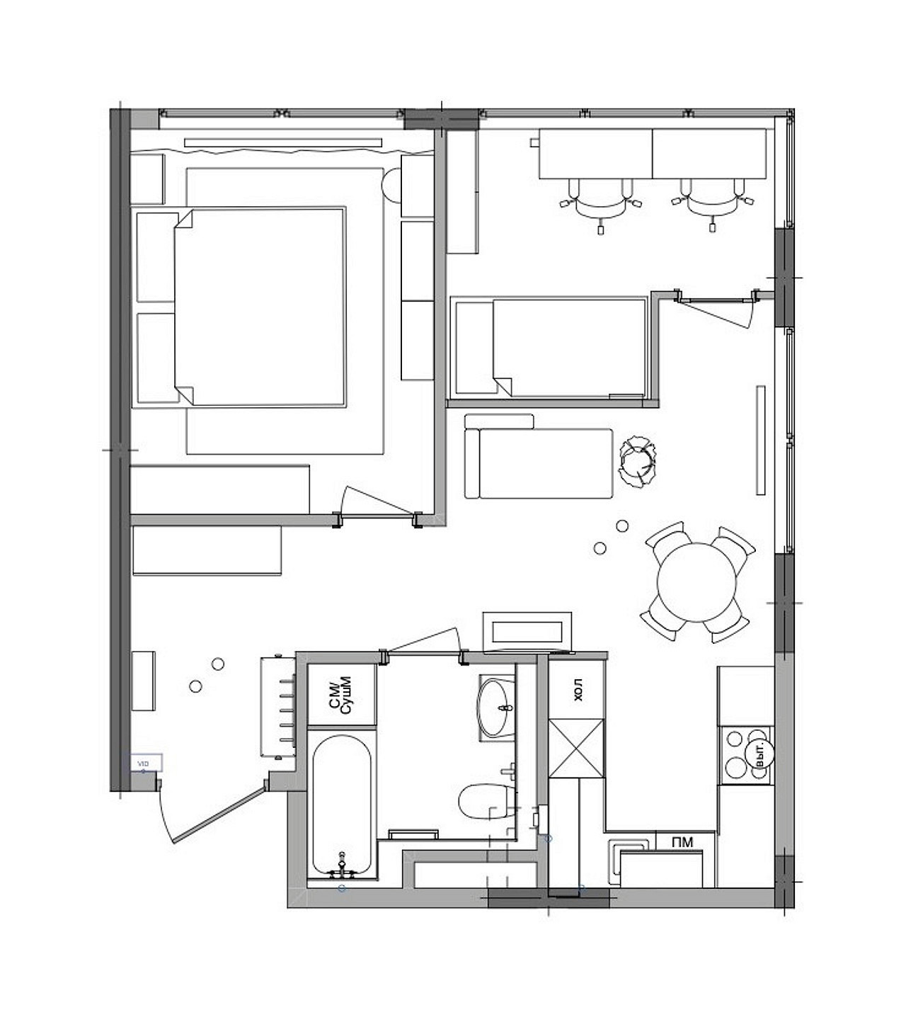
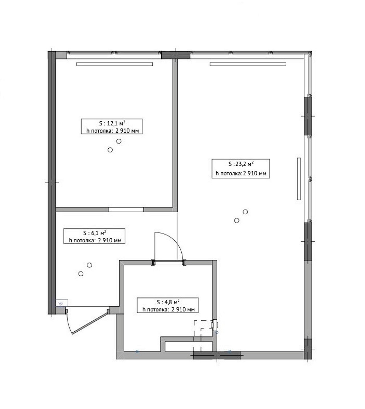
Эту квартиру площадью 44 кв. м в Казани дизайнер Валерия Байдина оформляла для семьи своей близкой подруги. У хозяев две дочки 5 и 9 лет, и родители хотели выделить для них пространство, но при этом сохранить отдельную спальню.
Изначальная планировка квартиры удачная для таких целей — застройщик предусмотрел большую кухню (предполагалась кухня-гостиная) и маленькую изолированную спальню. На кухне — два окна, что позволило отделить от кухни-гостиной, пусть и маленькую, отдельную детскую. При этом и для гостиной зоны сохранилось немного места — хватило для небольшого диванчика, который можно разложить в спальное место на одного.
В самой же детской удалось уместить двухъярусную кровать для девочек, рабочие места у окна (девочки творческие, любят мастерить, делать что-то своими руками, к тому же совсем скоро в школу начнут ходить уже обе), а также неглубокий, но высокий шкаф для одежды, игрушек и разных принадлежностей для их творчества.
На стенах в детской нашлось место для выставки рисунков девочек. А мама, сама творческая личность и основатель детской студии, сделала эскиз витража для фрамуги межкомнатной двери, ведущей в детскую.
2 Глобальная перепланировка в однушке
Эта квартира 36 кв. м принадлежит дизайнеру Алине Бургуджи, и ей предстояло обустроить жилье для себя и своих сыновей школьного возраста. Задача стояла непростая — в однушке выделить кухню с гостиной зоной, спальню для себя, гардеробную и детскую для двоих мальчиков. Решение потребовало глобальной перепланировки.
В итоге на площади однушки у семьи появилась полноценная кухня с маленькой зоной отдыха, состоящей из диванчика и обеденного стола, спальня Алины, отделенная от кухни стеклянной перегородкой, гардеробная и маленькая, но изолированная детская. Стеклянная перегородка, отделяющая спальню, позволяет проникнуть туда естественному свету, а при необходимости можно задвинуть штору (она предусмотрена), чтобы создать приватность.
Детскую же организовали так, чтобы в комнате было окно. Для мальчиков поставили двухъярусную кровать, у окна разместили большой рабочий стол, предусмотрели места для хранения в виде стеллажа для книг и игрушек, выдвижных полок стола и под кроватью и маленького шкафа. Остальные вещи можно хранить в гардеробной.
3 Детский уголок
Строго говоря, это не совсем детская, не полноценная комната, которую можно закрыть при необходимости. Но такой задачи и не стояло в этом проекте дизайнера Анны Азизовой. Анна оформляла квартиру площадью 37 кв. м для краткосрочной аренды в Санкт-Петербурге, и заказчики поставили задачу выделить отдельную спальню, предусмотреть спальные места для маленького ребенка и третьего взрослого (например, бабушки). Эту конкретную задачу удалось решить с успехом!
Изначальная планировка представляла собой даже не однушку, а скорее студию — застройщик сдал квартиру с общей кухней-гостиной, отделенными ванной и прихожей. На площади гостиной Анна отделила маленькую спальню со своим окном, а между прихожей и спальней поместился детский «уголок», где поставили кровать-домик. На оставшейся площади получилась кухня-гостиная с дополнительным спальным местом в виде раскладного дивана.

Пока комментариев нет. Начните обсуждение!