Четырехкомнатная квартира общей площадью 95,3 м2: Космо-house

4-комнатная • 95,4м² • П-46М • 09.12.2016
Несколько авторов Свернуть
Ольга Лапшина Руководитель мастерской
Андрей Кремнев Руководитель мастерской
Антон Тихонов Архитектурное бюро
Владимир Дуденков Архитектурное бюро
Яна Соколова Аудиовидеодизайн
Сергей Ветохов Архитектурное бюро
Олег Дорогих Аксессуары
Юлия Золотарева Аксессуары
Дизайн-проект четырехкомнатной квартиры общей площадью 95,3м2 в панельном доме серии П-46М.

Два дизайн-проекта четырехкомнатной квартиры общей площадью 95,3 м2 и два дизайн-проекта трехкомнатной квартиры общей площадью 79,4 м2 Читать далее...

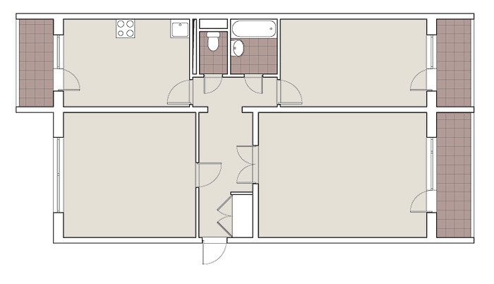
План
Комната Было Стало
Общая площадь 95,3 м2 95,4 м2
Количество комнат 4 4
Высота потолка 2,7 м 2,55 м
Прихожая-коридор 9,6 м2 5 м2
Кухня 11,1 м2 9,5 м2
Жилая комната 12 м2
Ванная комната 3,9 м2
Туалет ,9 м2
Санузел 4,7 м2
Лоджия 4,4 м2 4,4 м2
Гостиная-столовая 20,6 м2
Спальня родителей 12,5 м2
Комната дочери 13 м2
Детская 23,6 м2
Хозяйский санузел 5,5 м2
Гостевой санузел 1,7 м2
Гардеробная 4 м2
Редакция предупреждает, что в соответствии с Жилищным кодексом РФ требуется согласование проводимых переустройств и перепланировок.
Авторы
Ольга Лапшина Руководитель мастерской
Андрей Кремнев Руководитель мастерской
Антон Тихонов Архитектурное бюро
Владимир Дуденков Архитектурное бюро
Яна Соколова Аудиовидеодизайн
+ 1
Сергей Ветохов Архитектурное бюро
+ 22
Олег Дорогих Аксессуары
Юлия Золотарева Аксессуары
Несколько авторов Свернуть
Если это ваш проект, пожалуйста, свяжитесь с нами по адресу ivd@burda.ru, указав в письме ссылку на проект.
Квартира 4-комнатная
Комментарии (0)

Пока комментариев нет. Начните обсуждение!

Похожие перепланировки