Уютная квартира с ярким ироничным интерьером

1-комнатная • 41,9м² • ЖК «Зодиак» • 18.03.2026

Реализованный проект однокомнатной квартиры площадью 41,9 м2

Смелые цветовые блоки, графичные и ироничные детали превратили стандартное пространство в яркую квартиру. Читать далее...

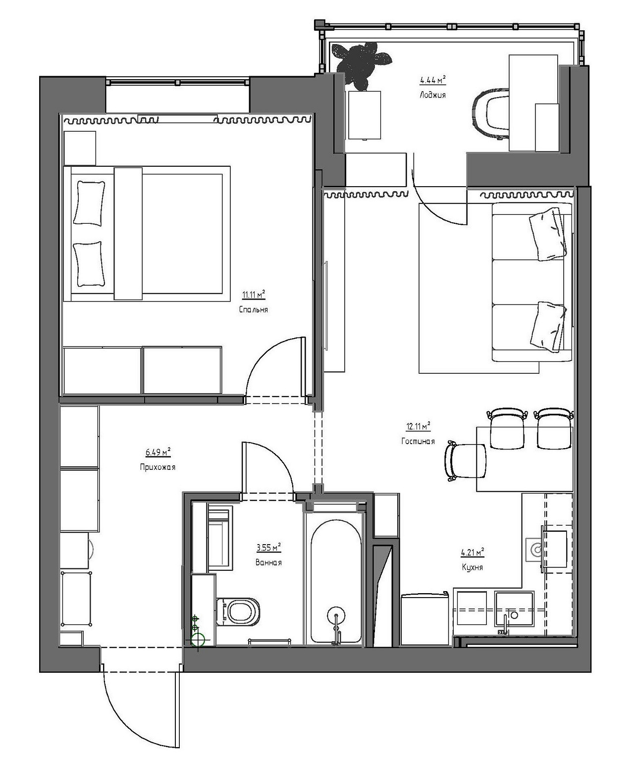
План
Комната Было Стало
Общая площадь 43,4 м2 41,9 м2
Количество комнат 1 1
Весь объект 41,9 м2
Кухня 4,2 м2
Гостиная 12,1 м2
Спальня 11,1 м2
Лоджия 4,4 м2
Ванная комната 3,6 м2
Прихожая 6,5 м2
Редакция предупреждает, что в соответствии с Жилищным кодексом РФ требуется согласование проводимых переустройств и перепланировок.
Материалы и цвета
Весь объект
  • Стены: краска «Сан Марко», обои funhousestore.ru
  • Мебель: кухня и шкафы «Лемана Про»
  • Освещение: точечные светильники Feron
  • Выключатели и розетки: Werkel
Авторы
Если это ваш проект, пожалуйста, свяжитесь с нами по адресу ivd@burda.ru, указав в письме ссылку на проект.
Современный стиль Квартира Желтые Красные Синие Чёрные и белые 1-комнатная
Комментарии (0)

Пока комментариев нет. Начните обсуждение!

Похожие перепланировки