Современный уют

Дом • 153м² • Ярославль • • 2025 • 30.01.2026

Концепция данного проекта – создание комфортного, уютного и стильного дома для современной семьи, состоящей из двух молодых родителей, мальчика-дошкольника и девочки-подростка. Ключевым является современный стиль, в основе которого – бежевые оттенки и нежные тона, создающие теплую и располагающую атмосферу. ⠀ Цель – создать дом, который станет идеальным сочетанием эстетики, комфорта и семейных ценностей, отражая современный образ жизни его обитателей.

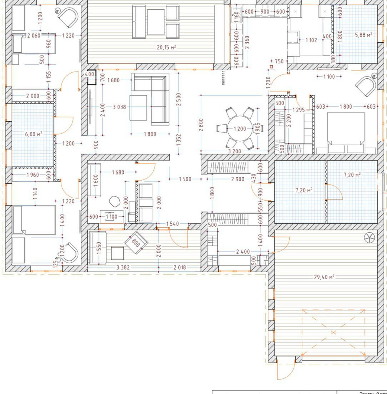
План
Комната Было Стало
Общая площадь 153 м2 153 м2
Жилая площадь 85 м2 85 м2
Количество комнат 5 5
Редакция предупреждает, что в соответствии с Жилищным кодексом РФ требуется согласование проводимых переустройств и перепланировок.
Авторы
Если это ваш проект, пожалуйста, свяжитесь с нами по адресу ivd@burda.ru, указав в письме ссылку на проект.
Современный стиль Загородный дом 5-комнатная
Комментарии (0)

Пока комментариев нет. Начните обсуждение!