ЖК Neva House I Квартира для аренды, но с ощущением дома

2-комнатная • 104м² • Санкт-Петербург • ЖК Neva Haus • 13.01.2026

Квартира площадью 106 квадратных метров находится в жилом комплексе бизнес-класса Neva Haus на Петровском острове — в одном из самых живописных и спокойных уголков Санкт-Петербурга. Из её окон открывается вид на историческую солодовню пивомедоваренного завода «Бавария», а по набережной у дома неспешно скользят яхты. Именно этот неторопливый ритм окружающей среды стал интонацией для интерьера, созданного Артёмом Вечко и Валентиной Черемных. Пространство проектировалось для аренды, но задача стояла не просто в том, чтобы оно было универсальным — важно было создать ощущение дома: сдержанного, продуманного, уютного, способного стать основой для жизни самых разных людей. Вмешательство в структуру пространства было минимальным. Основной задачей стало функциональное зонирование: объединили кухню, столовую и гостиную в единое общесемейное пространство, выделили приватную зону спальни, предусмотрели кабинет (или детскую — в зависимости от будущих арендаторов), два санузла — гостевой совмещённый с постирочной и мастер-санузел с душевой. В каждой зоне предусмотрены удобные системы хранения, интегрированные в архитектуру интерьера. Интерьер выполнен в спокойной, светлой палитре, где доминируют натуральные оттенки и текстуры: тёплое дерево, «мягкий» мрамор, матовая краска на стенах, уютный текстиль. Это база, сквозь которую проходит единая линия — начиная от общесемейных пространств, заканчивая приватными, личными. На этом светлом фоне особенно выразительно звучит работа Бориса Аникина из серии «Модель вселенной» — философский акцент и эмоциональный центр кухни-гостиной. Всё выдержано в балансе: строгие линии уравновешивают радиусные формы мебели — округлые спинки стульев, плавные изгибы кровати, пуфа и банкетки. Это диалог прямого и плавного, где каждая деталь работает на создание спокойной, визуально выверенной композиции — той самой «линии покоя». Интерьер получился сдержанным, но живым, наполненным воздухом, светом и тишиной. Он не требует немедленного наполнения, но готов к жизни — для тех, кто ищет не просто аренду, а ощущение дома.

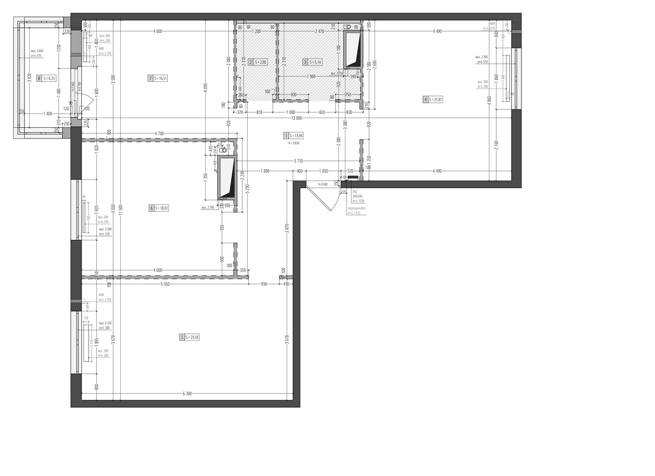
План
Комната Было Стало
Общая площадь 106 м2 104 м2
Количество комнат 3 2
Гостиная 18 м2 34 м2
Спальня 21 м2 21 м2
Кухня 18 м2 34 м2
Прихожая 13 м2 13 м2
Санузел 2,8 м2 2,8 м2
Ванная комната 5,14 м2 5,14 м2
Кабинет 23,5 м2 23,5 м2
Редакция предупреждает, что в соответствии с Жилищным кодексом РФ требуется согласование проводимых переустройств и перепланировок.
Материалы и цвета
Цвета
  • Стены
  • Мебель
Авторы
Если это ваш проект, пожалуйста, свяжитесь с нами по адресу ivd@burda.ru, указав в письме ссылку на проект.
Квартира Желтые 2-комнатная
Комментарии (0)

Пока комментариев нет. Начните обсуждение!