Небольшая квартира-студия с яркими акцентами для сдачи в аренду

1-комнатная • 26,5м² • Краснодар • И-1737 • 2025 • 04.12.2025
Виктория Ухова Дизайнер, декоратор

Проект полной упаковки квартиры — студии для сдачи в долгосрочную аренду — комплектация и хоумстейджинг.

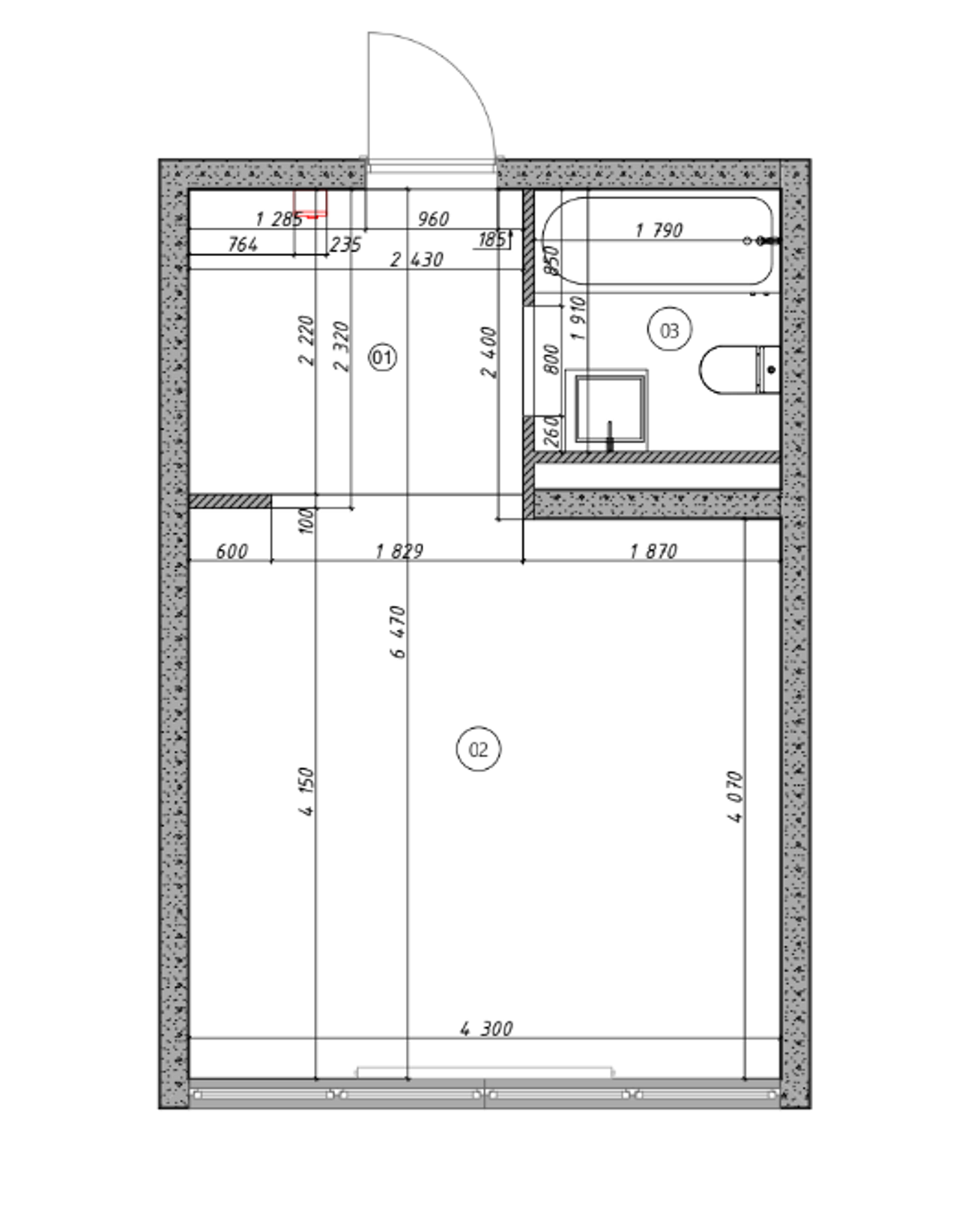
План
Комната Было Стало
Общая площадь 26,5 м2 26,5 м2
Жилая площадь 17,9 м2 17,9 м2
Количество комнат 1 1
Гостиная-кухня 17,9 м2
Редакция предупреждает, что в соответствии с Жилищным кодексом РФ требуется согласование проводимых переустройств и перепланировок.
Материалы и цвета
Гостиная-кухня
  • Фасад: шкафы ЛДСП Egger
  • Стены: краска матовая Hugge
Авторы
Виктория Ухова Дизайнер, декоратор
Все проекты
(1)
Если это ваш проект, пожалуйста, свяжитесь с нами по адресу ivd@burda.ru, указав в письме ссылку на проект.
Современный стиль Квартира Фиолетовые Зелёные Серые 1-комнатная
Комментарии (0)

Пока комментариев нет. Начните обсуждение!