Уютный и стильный загородный дом для семьи

Дом • 170,2м² • • 02.03.2026

Реализованный проект двухэтажного загородного дома площадью 170,2 м2

Из дома открываются красивые виды на реку и музей-заповедник остров-град Свияжск. Дизайнеры создали уютный и стильный интерьер для семьи с двумя детьми. Читать далее...

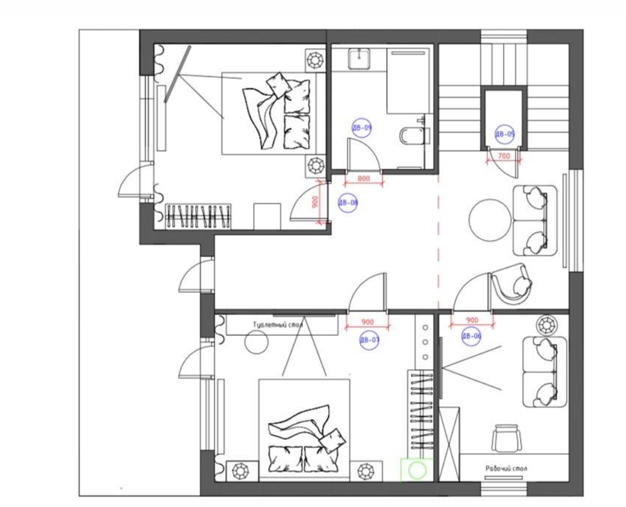
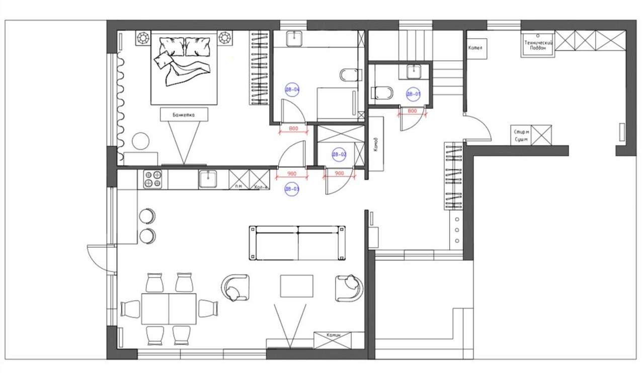
План
Комната Было Стало
Общая площадь 170,2 м2 170,2 м2
Количество комнат 4 4
Высота потолка 3,2 м 3,2 м
Весь объект 170,2 м2
Холл 11,7 м2
Кухня-гостиная 38,6 м2
Мастер-спальня 19 м2
Мастер-ванная 7,2 м2
Санузел 2,1 м2
Кладовая 1,6 м2
Котельная 15,9 м2
Холл второго этажа 16,6 м2
Спальня 1 14,7 м2
Спальня 2 16,9 м2
Кабинет 10 м2
Санузел на втором этаже 5,9 м2
Редакция предупреждает, что в соответствии с Жилищным кодексом РФ требуется согласование проводимых переустройств и перепланировок.
Материалы и цвета
Весь объект
  • Пол: пробковый пол «Галерея пробки»
  • Стены и пол: керамогранит Atlas Concorde, плитка Equipe
  • Стены: травертин Венеция Стоун
  • Мебель: корпусная мебель и кухня сделаны на заказ, обеденная группа СК Дизайн, стулья Kartell, мягкая мебель и столики Dantone Home, кровати в спальнях на втором этаже divan.ru, кровать и банкетка в мастер-спальне «Арт Фабрик», столешницы из кварцевого агломерата «Кварц Плюс», кварцит Венеция Стоун
  • Сантехника: Boheme, Laufen, Damixa
  • Техника: Gorenje
  • Декор: Dantone Home, цветы Мин Син
  • Ковры: «Мир ковров»
  • Текстиль: подушки Dantone Home, Art De Vivre, текстиль в спальнях Эдем Хоум
  • Освещение: Kink Light, Maytoni, Arlight, торшер в гостиной Dantone Home, настольная лампа в спальне Qeeboo
Авторы
Если это ваш проект, пожалуйста, свяжитесь с нами по адресу ivd@burda.ru, указав в письме ссылку на проект.
Современный стиль Загородный дом Оранжевые Серые Чёрные и белые 4-комнатная
Комментарии (0)

Пока комментариев нет. Начните обсуждение!

Похожие перепланировки