Дизайн 3-комнатной квартиры в современном стиле
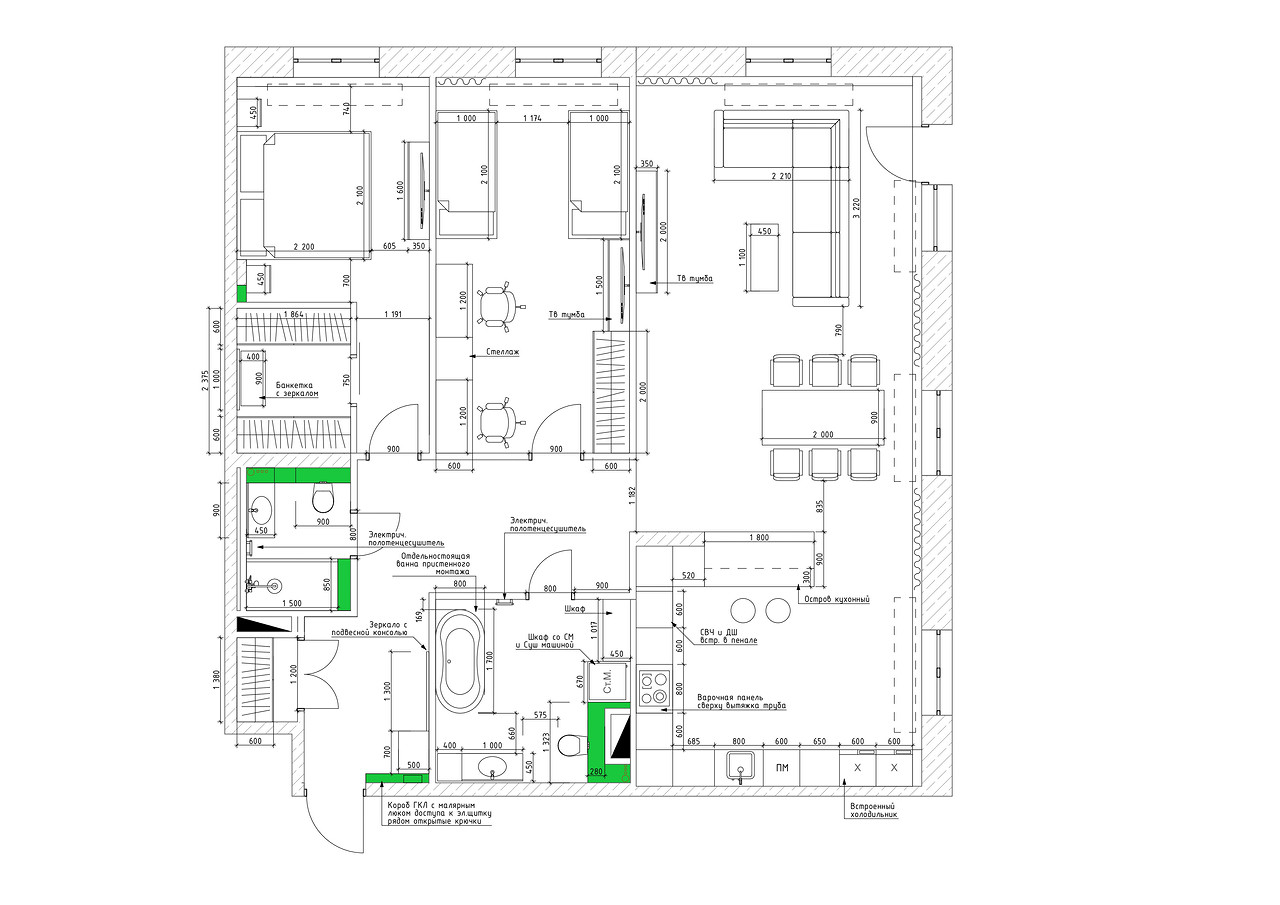
Дизайн трёхкомнатной квартиры в ЖК Классика в современном стиле для семьи. Каждый элемент интерьера в этой квартире является частью общего концепта, который создает атмосферу роскоши и стиля. От цвета стен и текстиля до мебели и освещения – все элементы были подобраны с особым вниманием к деталям, чтобы создать неповторимый облик этого пространства.
 
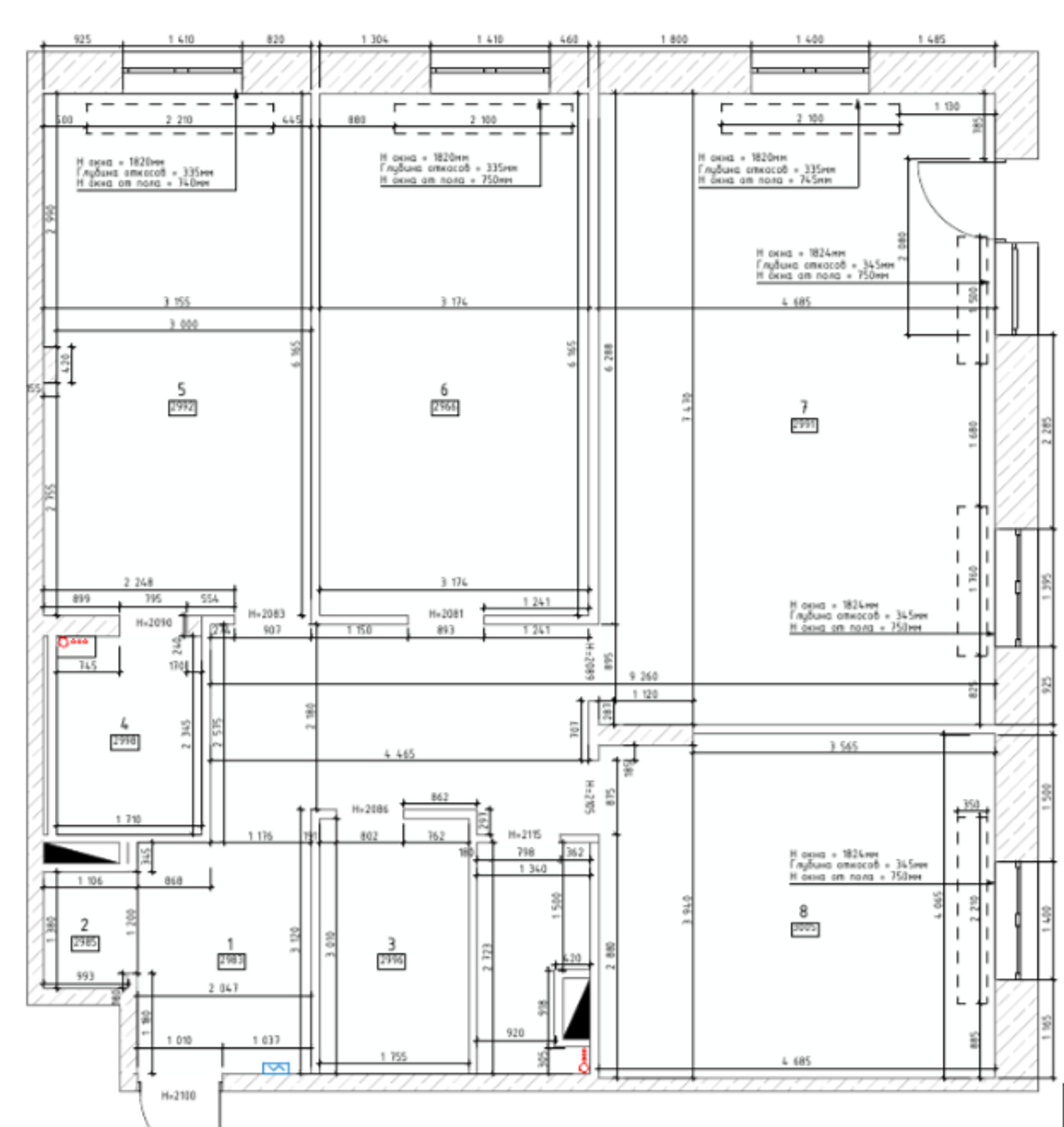
                | Комната | Было | Стало | 
|---|---|---|
| Общая площадь | 123 м2 | 123 м2 | 
| Жилая площадь | 71 м2 | 71 м2 | 
| Количество комнат | 3 | 3 | 
| Гостиная | 35 м2 | 35 м2 | 
| Спальня | 19 м2 | 19 м2 | 
| Кухня | 19 м2 | 19 м2 | 
| Прихожая | 16 м2 | 16 м2 | 
| Санузел | 3 м2 | 3 м2 | 
| Ванная комната | 5 м2 | 5 м2 | 
| Детская | 20 м2 | 20 м2 | 
 
                                    
                                 
                                    
                                 
                                    
                                 
                                    
                                 
                                    
                                 
                                    
                                 
                                    
                                 
                                    
                                 
                                    
                                 
                                    
                                 
                                    
                                 
             
                         
                         
                         
                         
                         
                         
                         
                         
                         
                         
                         
                         
                         
                         
                         
                         
                         
                         
                         
                         
                         
                         
                         
                                 
                                 
                                 
                                 
                                 
                                 
                                 
                                 
                                 
                                 
                                 
                                 
                                 
                                 
                                 
                                 
                                 
                                 
                                 
                                 
                                 
                                 
                                 
                 
             
                 
             
             
             
             
                 
            
Пока комментариев нет. Начните обсуждение!