Лаконичный интерьер для молодой девушки

1-комнатная • 57,68м² • Москва • ЖК «Метрополь» • 2016 • 28.03.2023

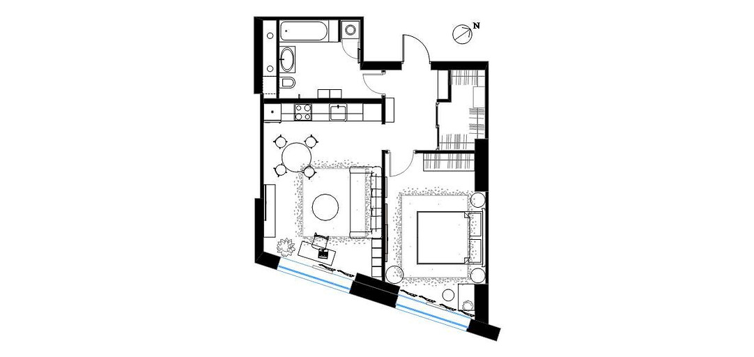
Современная квартира с элементами стиля гламур находится в жилом комплексе премиального класса. Ее заказчица – молодая девушка – мечтала о светлом и лаконичном интерьере с четкой геометрией и классическими мотивами, сдержанный и элегантный. Чтобы создать интерьер, который сочетает в себе строгость и функциональность с роскошью и блеском, дизайнеры сделали ставку на контрастную светло-шоколадную цветовую гамму и блестящие, полированные поверхности. Благодаря грамотной планировке удалось сохранить ощущение простора и света. Планировка Техническое задание было сформулировано четко: нужно было спроектировать гостиную, кухню, спальню, гардеробную и санузел. При этом следовало сохранить ощущение света и легкости. Существенные коррективы вносили и полукруглые окна, из которых открывается просторы и поражающая воображение панорама города. Чтобы создать комфортную жилую среду, дизайнеры предложили объединить кухню-столовую с гостиной. Приватная зона спальни находятся в глубине квартиры. Декор Монохромный интерьер выглядит сдержанно и элегантно. В отделке преобладают натуральные материалы с природной фактурой. Впечатляющую высоту потолков в квартире (около 3 метров) подчеркивают высокие порталы дверей. Они выполнены из полированного стекла и сочетаются со светлыми стенами. Строгую светло-шоколадную цветовую гамму смягчают оттенки янтаря: обои в спальне, потолочная люстра (в виде парящих пузырьков). Обилие лакированных и глянцевых поверхностей, а также зеркала и хрустальные элементы светильников вносят в современный интерьер нотку гламура.

План
Комната Было Стало
Общая площадь 59,26 м2 57,68 м2
Количество комнат 1 1
Редакция предупреждает, что в соответствии с Жилищным кодексом РФ требуется согласование проводимых переустройств и перепланировок.
Авторы
Если это ваш проект, пожалуйста, свяжитесь с нами по адресу ivd@burda.ru, указав в письме ссылку на проект.
Современный стиль Квартира 1-комнатная
Комментарии (0)

Пока комментариев нет. Начните обсуждение!