Дизайн-проект трехкомнатной квартиры для мамы и двух дочек в доме 504 серии

3-комнатная • 61,5м² • Санкт-Петербург • 1ЛГ-606 • 2023 • 07.02.2023
Вера Королёва Дизайнер

Наш Клиент — самостоятельная мама с двумя дочками разных возрастов, младшей из которых чуть больше 3 лет, а старшая дочь — подросток, для которой уже необходимо свое личное пространство, устроенное по собственному вкусу. Изначально в наши задачи входило на небольшой кухне 6 кв. м, характерной для всех домов 504 серии разместить полноценный кухонный гарнитур со всей необходимой современной техникой; вместо проходной гостиной сделать отдельную хозяйскую мастер-спальню; объединить небольшой туалет и ванную, чтобы было комфортнее пользоваться более просторным санузлом; предусмотреть достаточное количество систем хранения для одежды, способных вместить гардероб 4 взрослых людей.

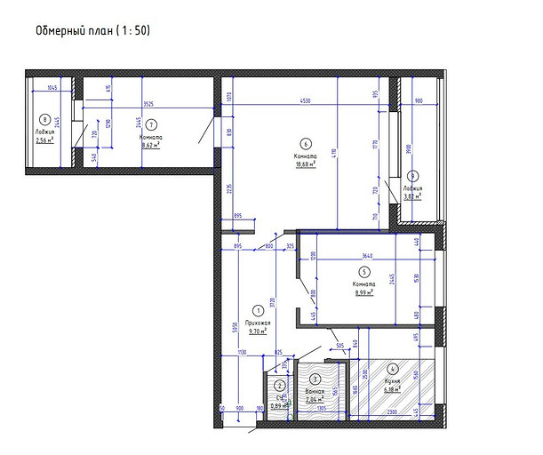
План
Комната Было Стало
Общая площадь 61,5 м2 61,5 м2
Жилая площадь 42,47 м2 37,14 м2
Количество комнат 3 3
Спальня 18,68 м2 11,67 м2
Кухня 6,18 м2 6,35 м2
Прихожая 9,7 м2 12,02 м2
Санузел 0,89 м2 2,78 м2
Комната подростка 8,62 м2 10,13 м2
Детская 8,99 м2 8,99 м2
Ванная комната 2,04 м2
Редакция предупреждает, что в соответствии с Жилищным кодексом РФ требуется согласование проводимых переустройств и перепланировок.
Авторы
Если это ваш проект, пожалуйста, свяжитесь с нами по адресу ivd@burda.ru, указав в письме ссылку на проект.
Современный стиль Квартира 3-комнатная
Комментарии (0)

Пока комментариев нет. Начните обсуждение!

Похожие перепланировки