Стильный семейный дом с яркими акцентами в Воронеже

4-комнатная • 160,9м² • • 10.11.2025

Реализованный проект двухэтажного загородного дома площадью 160,9 м2

Разные оттенки зеленого, розового, мятный и серый цвет соседствуют в этом интерьере и отлично сочетаются друг с другом. Дизайнеру удалось создать в меру яркое и комфортное пространство для семьи. Читать далее...

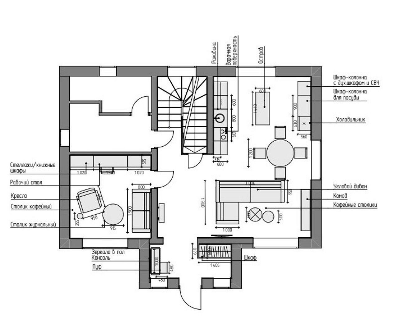
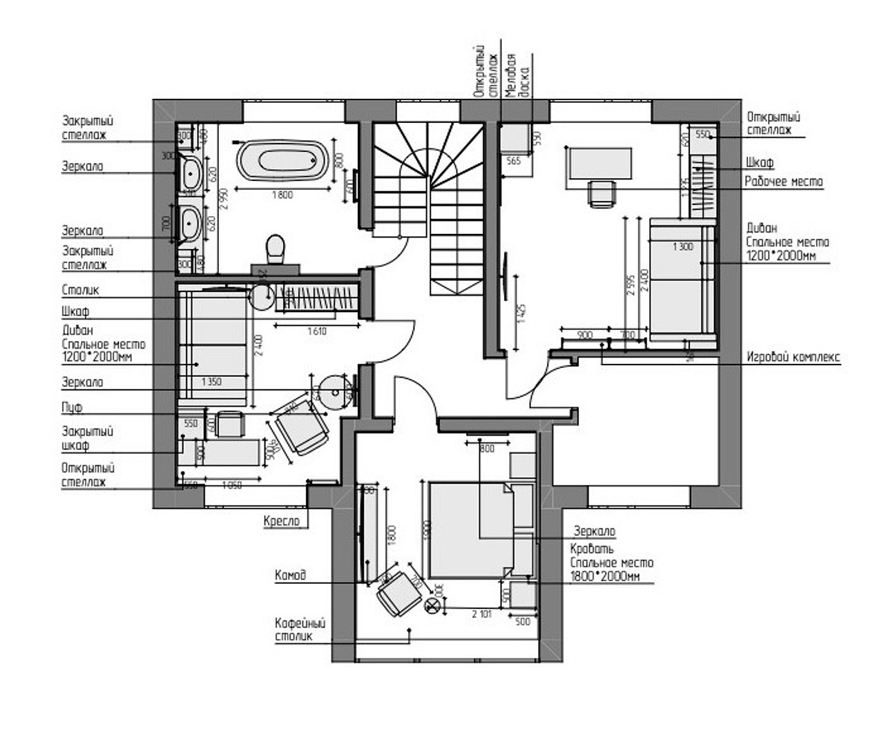
План
Комната Было Стало
Общая площадь 160,9 м2 160,9 м2
Количество комнат 4 4
Весь объект 160,9 м2
Кухня-гостиная 33,8 м2
Холл 12,1 м2
Кабинет 14,1 м2
Прихожая 5,7 м2
Санузел 6,4 м2
Котельная 5,1 м2
Спальня 15,4 м2
Комната девочки 14,7 м2
Комната мальчика 19,7 м2
Гардеробная 8,2 м2
Ванная комната 10,8 м2
Холл второго этажа 14,8 м2
Редакция предупреждает, что в соответствии с Жилищным кодексом РФ требуется согласование проводимых переустройств и перепланировок.
Материалы и цвета
Весь объект
  • Пол: кварцвинил Moduleo, керамогранит Aleyra Ceramics
  • Стены: краска Mons
  • Двери: Profildoors
  • Мебель: кухня Mossman, остальная мебель Cassina, Qeeboo, Hoogar, Concept Mebel
  • Сантехника: Grocenberg, Salini
  • Декор: Bosa, Jonathan Adler, Missoni, Adriani Rossi, Seletti
  • Ковры: Morris & Co, Art De Vivre
  • Освещение: Maytoni, Odeon light, Aromas del Campo, Hudson Valley
Авторы
Если это ваш проект, пожалуйста, свяжитесь с нами по адресу ivd@burda.ru, указав в письме ссылку на проект.
Современный стиль Квартира Красные Зелёные Серые Чёрные и белые 4-комнатная
Комментарии (0)

Пока комментариев нет. Начните обсуждение!