Ванная за стеклом и декоративный камин: потрясающая квартира 45 кв. м в исторической сталинке
Заказчики и задачи
Владельцы квартиры планировали использовать ее для сдачи в краткосрочную аренду и для проведения фотосессий. Дизайнеру Екатерине Козловой требовалось превратить небольшие комнаты в эффектные пространства, отражающие дух эпохи ампира.
Перепланировка
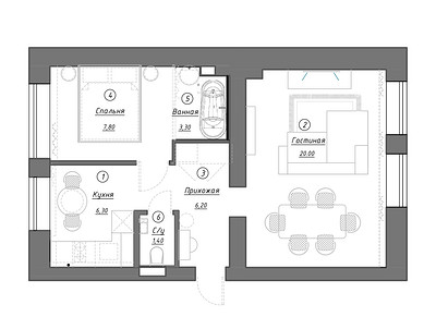
Изначальная планировка: две изолированные комнаты, одна из которых маленькая спальня, вторая — просторная гостиная, кухня, ванная комната и туалет. Планировку незначительно поменяли. Ванную комнату увеличили за счет коридора и убрали глухую перегородку между ней и спальней — ее заменили на стеклянную, таким образом визуально ванную присоединили к спальне. Вход в туалет перенесли, чтобы освободить прихожую от дверных проемов.
Отделка
В отделке стен использовали светлую краску. Потолки и стены украшены лепным декором — это современный полиуретан, историческую лепнину убрали еще предыдущие владельцы. «Мы восстановили декор, тщательно повторив стиль и пропорции прежних украшений, чтобы вернуть квартире ее характер», — отмечает Екатерина.
Старый паркет заменили на износостойкий SPC-ламинат. Его уложили по всей площади квартиры, включая прихожую и кухню. «Новый материал идеально имитирует натуральное дерево и лучше подходит для активной эксплуатации», — комментирует дизайнер.
В ванной комнате и туалете использовали одинаковую отделку: в нижней части стен белая мелкоформатная плитка, в верхней — керамогранит с цветочным рисунком, который напоминает красивые обои. Граница между материалами очерчена керамическими бордюрами. На пол уложена плитка под мрамор с черными вставками, имитирующими мозаику.
Мебель и системы хранения
Квартира предназначена для краткосрочной аренды, поэтому дизайнер не продумывала много хранения: в прихожей встроены шкафы, которых достаточно для того, чтобы сложить верхнюю и повседневную одежду, обувь.
Кухонный гарнитур тоже очень компактный: нижние шкафы расположены углом, встроены холодильник и духовой шкаф. Верхних шкафов всего два. Также на кухне поставили маленький столик для быстрых перекусов.
Основная столовая расположена во второй комнате — большой гостиной. Она поделена на две функциональные зоны: собственно столовая, гостиная (диван, тумба с телевизором, декоративный камин).
В спальне разместили полноценную двуспальную кровать с мягким фигурным изголовьем и пару прикроватных столиков.
В ванной комнате — эффектная отдельно стоящая ванна на ножках, раковина на подстолье с полкой. Опять же, из-за того, что квартира предназначена для краткосрочной аренды, сделали ставку больше на визуальный эффект, чем на функциональность или хранение в ванной комнате.
Освещение
В каждой комнате есть разные сценарии освещения: общий потолочный свет и дополнительный, локальный. В прихожей разместили два потолочных светильника на подвесах с металлическими абажурами, дающими красивые тени. В кухне-гостиной две группы потолочных светильников: современные треки и классическая люстра. В спальне — люстра и подвесы по бокам от кровати. В ванной комнате — точечные светильники, как и в туалете. На кухне размещены точечные споты над кухонным гарнитуром и люстра над столом.







Пока комментариев нет. Начните обсуждение!