Интерьер для себя: квартира 50 кв. м для творческой состоявшейся женщины
Заказчик и задачи
Владелица этой квартиры в Перми — энергичная женщина, она увлекается живописью, ходит в театры, путешествует. «Важно было создать интерьер, который вдохновляет, но не перегружает: светлый, воздушный, с характером и… в рамках скромного бюджета. Мы стремились уйти от ощущения типовой квартиры, превратив ее в пространство-трансформер, которое служит и уютным домом, и вдохновляющей творческой мастерской», — рассказывает автор проекта, дизайнер Мария Ипатова.
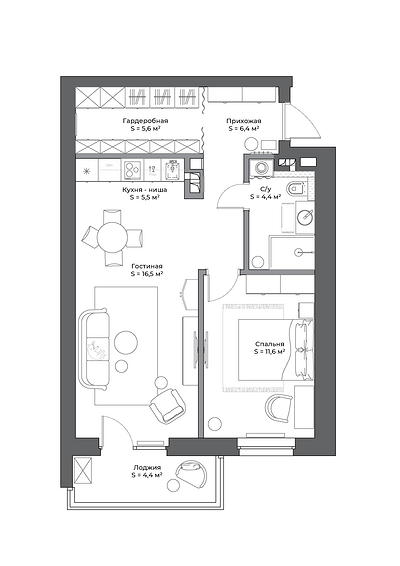
Планировка
В квартире сохранили планировку, предложенную застройщиком: гардеробная при входе, кухня-гостиная, отдельная спальня и ванная комната.
Отделка
По задумке дизайнера, интерьер должен был стать «холстом» для самовыражения хозяйки. Идеальной базой в такой концепции стали белые стены и потолок, выкрашенные в один оттенок. Для пола выбрали ламинат высокого класса прочности, уложили его «елочкой».
В ванной комнате стены тоже покрашены. В душевой стены выложили мозаикой, а для пола выбрали плитку с ненавязчивым узором в ретростиле. Ретронастроения добавляет и душевая шторка, которой заменили привычную дверь в душевую.
Мебель и системы хранения
Планировкой предусмотрена гардеробная, и все хранение сосредоточено там: шкафы разместили параллельно друг другу, скомбинировав полностью глухие шкафы и секции с витринами. В торце — винтажное зеркало, а проем в гардеробную закрыли бархатными шторами, что добавило пространству театральности.
В прихожей поставили комод, удобный для хранения обуви, разных мелочей. На столешницу комода можно положить шапки, перчатки, ключи при входе.
В кухне-гостиной кухня не стала главной — наоборот, ее стремились визуально скрыть, вписав линейный гарнитур в отведенную для него нишу. Фасады нижних шкафов и колонны со встроенным холодильником перекликаются с цветом ламината, белые дверцы верхних шкафов — с цветом стен и потолка. Под варочной поверхностью встроили духовой шкаф, в верхний шкаф — микроволновую печь, рядом с мойкой — посудомоечную машину. От отделки фартука плиткой отказались, решили, что моющейся краски достаточно.
Обеденную группу «собрали» из разных предметов: круглый белый стол на фигурном подстолье и отреставрированные винтажные венские стулья, которые уже были у хозяйки.
В гостиной свое место занял небольшой бежевый диван на ножках, у окна поставили кресло, где хозяйка сможет с удобством читать вечерами или заниматься любимыми хобби. Напротив дивана — тумба под телевизор и красивый невысокий буфет в винтажном стиле — для коллекции посуды хозяйки.
В спальне основное место заняла кровать, подобрали полутороспальную. Рядом поставили рабочий стол, также — комод для вещей и прикроватную тумбу.
В ванной комнате — тумба под раковину для хранения косметики и бытовой химии.
Освещение
У хозяйки были винтажные люстры — и дизайнер вписала их в интерьер: в прихожей и гостиной. Над обеденным столом разместили изящный подвесной светильник с абажуром белого цвета. У дивана — торшер, а на буфете поставили настольную лампу. В спальне — два подвесных светильники, которые привлекают внимание своей формой, а также прикроватные бра. В гардеробной разместили трековый светильник на потолке.







Пока комментариев нет. Начните обсуждение!