Ритмичный сканди

1-комнатная • 23,48м² • Одинцово • • 2020 • 11.01.2021
Анна Анна Смолякова Дизайн и строительство

Студия 23м2 для молодой девушки. Яркий пример максимальных возможностей максимального пространства. Комплексное решение мебели с удобным хранением. Кухня, столовая, гостиная, спальня и кабинет разместились на 15,7 м2 жилой площади! Студия выглядит свежей и просторной, благодаря скандинавскому стилю и легкому цветовому решению. Текстуры и орнамент придают интерьеру индивидуальность и теплоту. Вертикальные ритмы и контраст балансируют пространство.

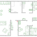
План
Комната Было Стало
Общая площадь 23,48 м2 23,48 м2
Жилая площадь 15,7 м2 15,7 м2
Количество комнат 1 1
Редакция предупреждает, что в соответствии с Жилищным кодексом РФ требуется согласование проводимых переустройств и перепланировок.
Авторы
Анна Анна Смолякова Дизайн и строительство
Все проекты
(2)
Если это ваш проект, пожалуйста, свяжитесь с нами по адресу ivd@burda.ru, указав в письме ссылку на проект.
Скандинавский стиль Квартира 1-комнатная
Комментарии (0)

Пока комментариев нет. Начните обсуждение!

Похожие перепланировки