Квартира 40 кв. м для молодой девушки: современное ар-деко как пространство для жизни и личной коллекции искусства

1-комнатная • 40м² • Москва • ЖК «Рассказово» • 2020 • 21.04.2026
ANTdesign Архитектор

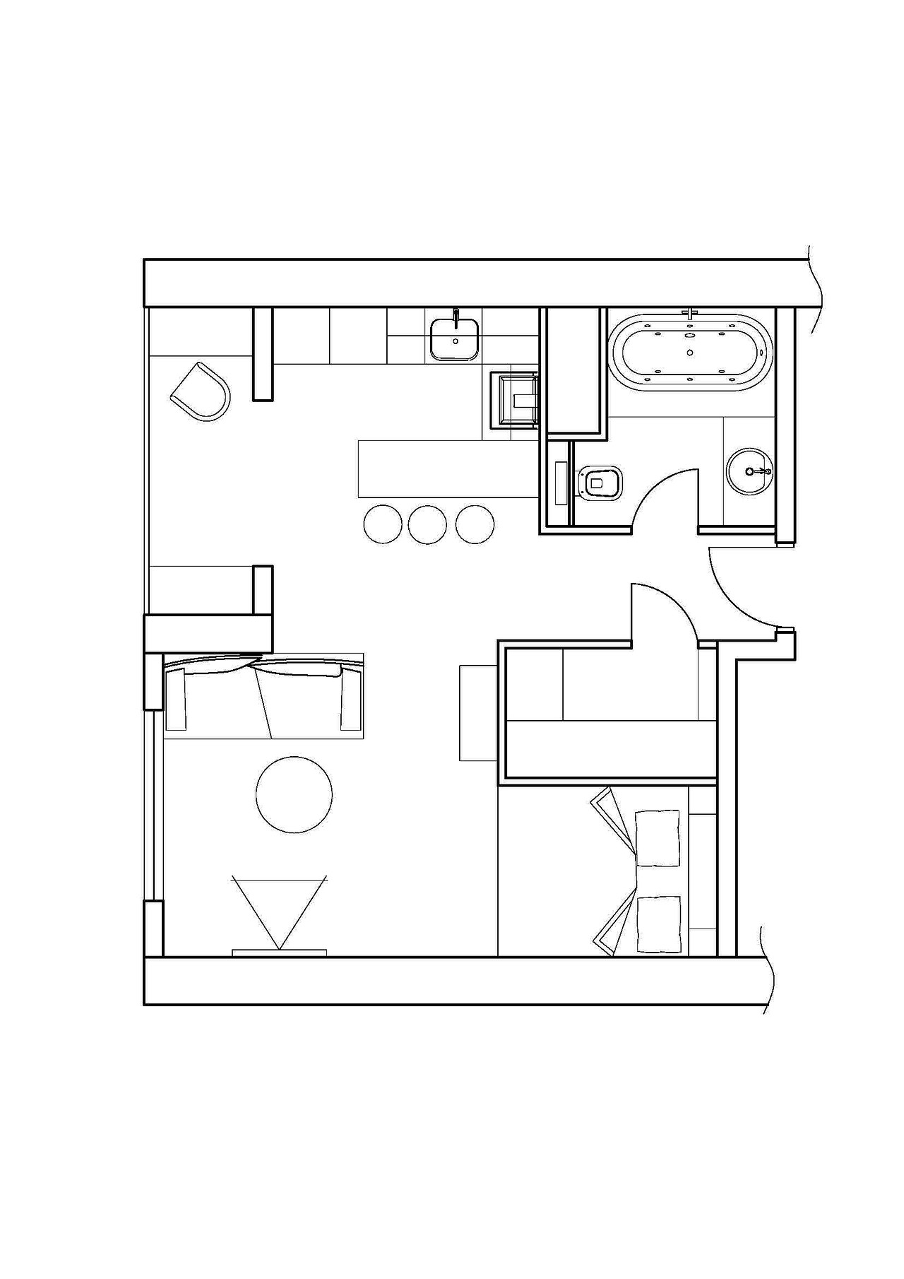
В изначальном запросе было важно создать функциональное и комфортное пространство, подчеркивающее и отражающее предпочтения и вкусы заказчицы, поэтому интерьер создан как персональная архитектурная среда, в которой пространство — это продолжение идентичности хозяйки квартиры. Мы объединили пространство и одновременно четко разделили общую площадь на функциональные зоны: прихожей, кухни, гостиной, спальни. Отдельными помещениями выделены гардеробная и совмещенная ванная комната, в которой соблюдены все правила эргономики и учтено пожелание о полноценной ванне. Пространство построено на точных соотношениях объемов, света, фактур и сложных цветовых оттенков, которые не потеряют своей актуальности со временем. Входная группа выделена рисунком плитки и карнизом, молдингами на потолке, что дополнительно зонирует пространство, прихожей от кухни и гостиной. Кухня п-образной формы также дополнительно разграничивает студию, а барный стол в уровень со столешницей кухни служит и обеденным столом, и рабочей поверхностью кухни. Гостиная визуально отделена раскладным диваном, где центральной акцентной точкой служит декоративный портал камина. Спальня представляет собой нишу со встроенным подиумом с системой хранения в виде выдвижных ящиков и открытые полки над кроватью. Изначально в проекте спальное место предполагалось отгораживать светопрозрачной складной перегородкой, но в процессе реализации заменили на штору блэкаут. Стены всей квартиры, кроме ванной комнаты и гардеробной, выкрашены сложным, глубоким пыльно-голубым оттенком, идеально сочетающимся с темным дубовым паркетом, контрастные сочетания белых карнизов, молдингов с черными глянцевыми дверями и черно-белой плиткой с геометричным рисунком отсылают нас к цветовым контрастам ар-деко. Важную роль в интерьере играет текстиль и предметы искусства, которые прекрасно вписываются в общую концепцию и подчеркивают ее.

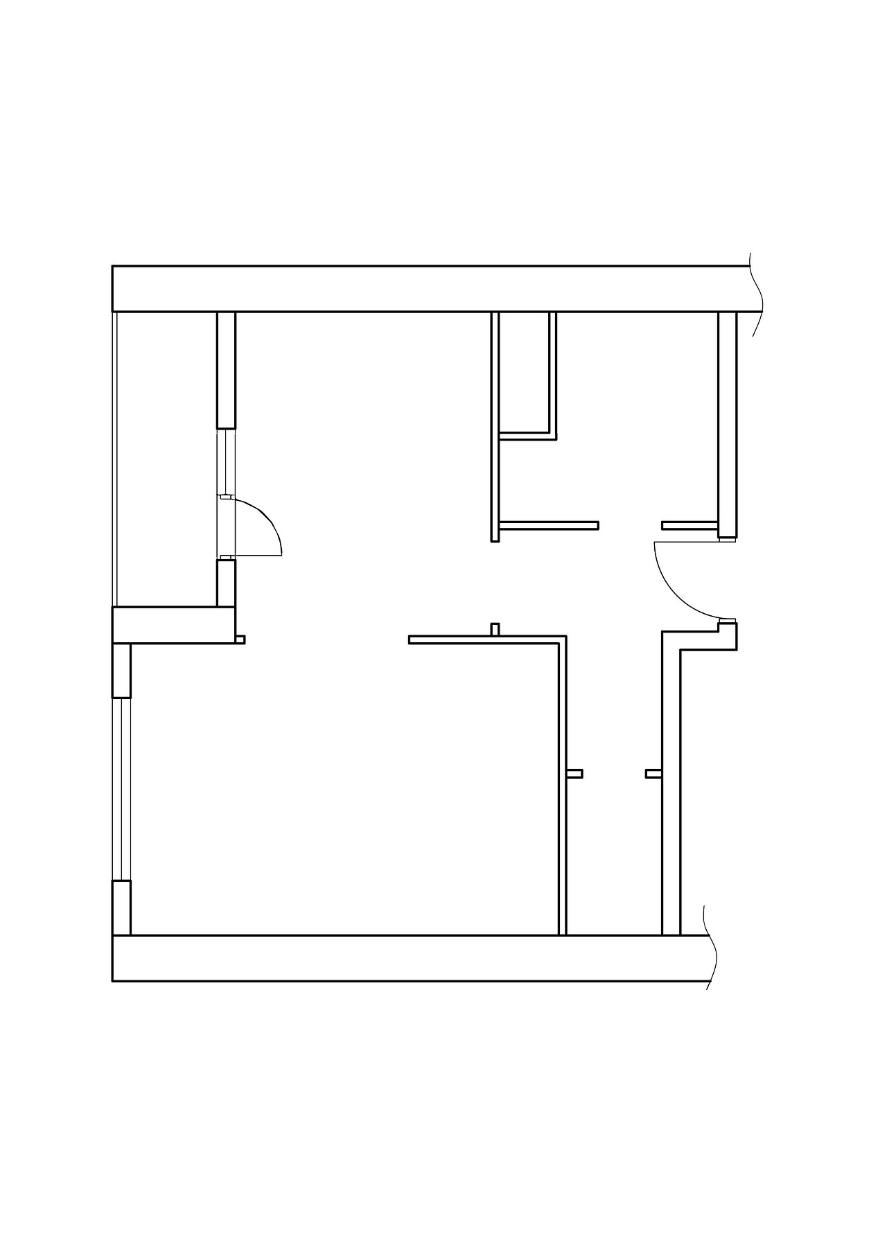
План
Комната Было Стало
Общая площадь 41 м2 40 м2
Жилая площадь 37 м2 40 м2
Количество комнат 1 1
Гостиная 12 м2
Спальня 15.4 м2 5 м2
Кухня 10 м2 10 м2
Прихожая 4.4 м2 3 м2
Гардеробная 1.9 м2 3 м2
Кабинет 3.5 м2
Ванная комната 4.8 м2 4 м2
Редакция предупреждает, что в соответствии с Жилищным кодексом РФ требуется согласование проводимых переустройств и перепланировок.
Авторы
Если это ваш проект, пожалуйста, свяжитесь с нами по адресу ivd@burda.ru, указав в письме ссылку на проект.
Современный стиль Квартира 1-комнатная
Комментарии (0)

Пока комментариев нет. Начните обсуждение!