Центральная зона гостиной- зона отдыха с английским электрическим камином в строгом конструктивистском портале
Для хозяина квартиры спроектировали рабочий «оазис» в уголке гостиной под светящимся «иллюминатором»
Мягкая
и корпусная мебель в гостиную, а также раздвижные двери подбирались архитекторами, исходя из цельного стилистического решения интерьеров и цветового строя
В спальне, над изголовьем хозяйского ложа, смонтировали белоснежную «сень» с нишей, предназначенной для живописного полотна, которое уже заказано молодому художнику
Из парадного холла можно попасть в спальню хозяев. Раздвижные двери в гостиную, порталы холла и двери во все комнаты сделаны в единой стилистике
Очень вместительной, удобной и комфортной получилась ванная комната. Сюда поместился весь комплект сантехники- ванна, унитаз, умывальник с большим зеркалом и душевая кабина
В этой
детской комнате много света, так как здесь увеличен до пола оконный проем- внего вставлен раздвижной витраж (SCHUCO, Германия)
Детская комната для дочери очень светла не только благодаря большому окну, но и из-за светлой мебели. Мебель в других комнатах — более темного, вишневого тона
Во второй детской очень удачно найдено место письменному столу, столешница которого изогнута вдоль двух граней эркера
В компактном гостевом санузле поместились и душевая кабина (видна в зеркале), и умывальник, и унитаз
Обратите внимание на разноуровневые рабочие поверхности кухонного фронта. Над такой раковиной не нужно наклоняться. Стены отделаны кафелем от MARAZZI
Рядом с дверью во вторую детскую комнату- вход в новую, расширенную гардеробную. Внишах холла расположилась домашняя библиотека
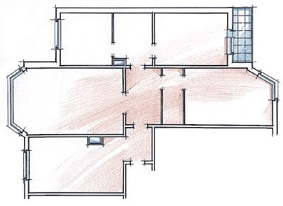
План квартиры до реконструкции
План квартиры после реконструкции
Пока комментариев нет. Начните обсуждение!