Интерьер, не требующий обживания: Во главе угла - рационализм
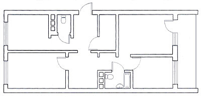
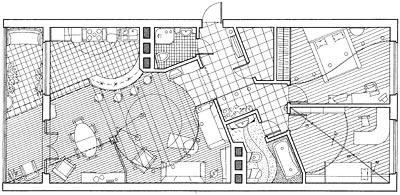
Восемь вариантов перепланировки новой трехкомнатной квартиры общей площадью 105 м2 в доме из монолитного железобетона. Читать далее...

Комната | Было | Стало |
---|---|---|
Общая площадь | 105 м2 | |
Количество комнат | 3 | 3 |
Пока комментариев нет. Начните обсуждение!