Эффектная студия для дочери дизайнера

1-комнатная • 25,7м² • • 24.04.2026

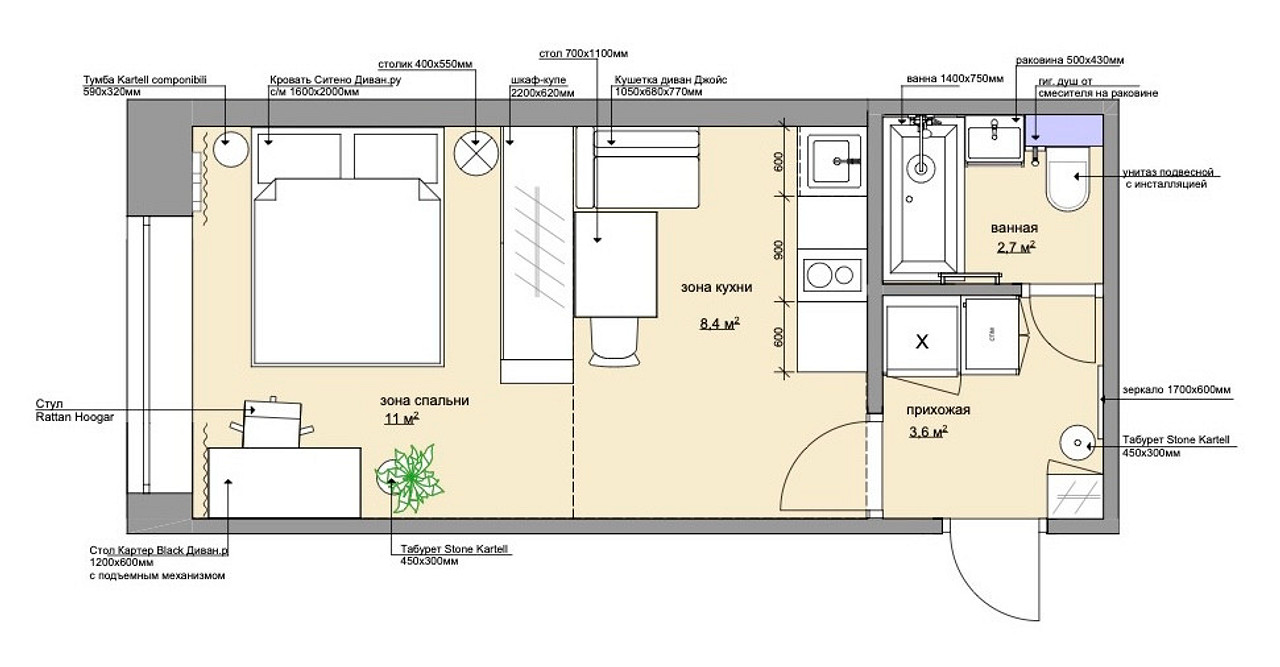
Реализованный проект квартиры-студии площадью 25,7 м2

Ирина Комиссарова разработала интерьер для своей дочери. Удалось создать функциональное и эффектное пространство на маленькой площади. Читать далее...

План
Комната Было Стало
Общая площадь 25,7 м2 25,7 м2
Количество комнат 1 1
Высота потолка 2,5 м 2,5 м
Весь объект 25,7 м2
Кухня 8,4 м2
Спальня 11 м2
Ванная комната 2,7 м2
Прихожая 3,6 м2
Редакция предупреждает, что в соответствии с Жилищным кодексом РФ требуется согласование проводимых переустройств и перепланировок.
Материалы и цвета
Весь объект
  • Пол: ламинат Ensten, керамогранит «Зерде Керамикс»
  • Стены: обои WallUp, керамогранит Estima
  • Двери: «Владимирская фабрика дверей»
  • Мебель: кровать и стол divan.ru, тумба у кровати и табурет Kartell, стул «Хугар», кухня и шкафы сделаны на заказ
  • Сантехника: унитаз Creto, ванна «БЛБ»
  • Декор: Moroshka, «Селетти», картины местных художников, галерея «Арт-Мост», барельеф антикварный (XIX век)
  • Освещение: Favourite
  • Электроустановочные изделия: подвесной светильник в ванной Donel
Авторы
Если это ваш проект, пожалуйста, свяжитесь с нами по адресу ivd@burda.ru, указав в письме ссылку на проект.
Фьюжн Квартира Оранжевые Красные Зелёные Серые 1-комнатная
Комментарии (0)

Пока комментариев нет. Начните обсуждение!