Необычная студия с элементами русского стиля

1-комнатная • 33м² • ЖК «Глоракс Заневский» • 20.04.2026

Реализованный проект квартиры-студии площадью 33 м2

Дизайнер Екатерина Шейн создала интерьер маленькой квартиры с акцентами, напоминающими о современном русском стиле. Читать далее...

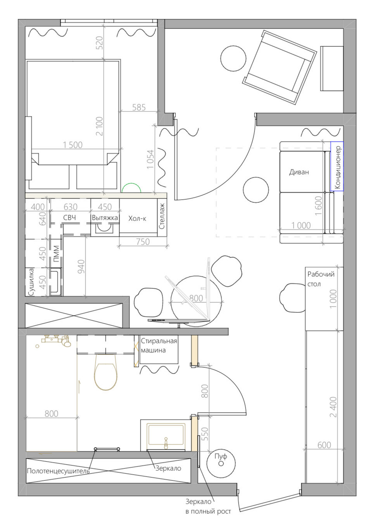
План
Комната Было Стало
Общая площадь 33 м2 33 м2
Количество комнат 1 1
Высота потолка 2,8 м 2,8 м
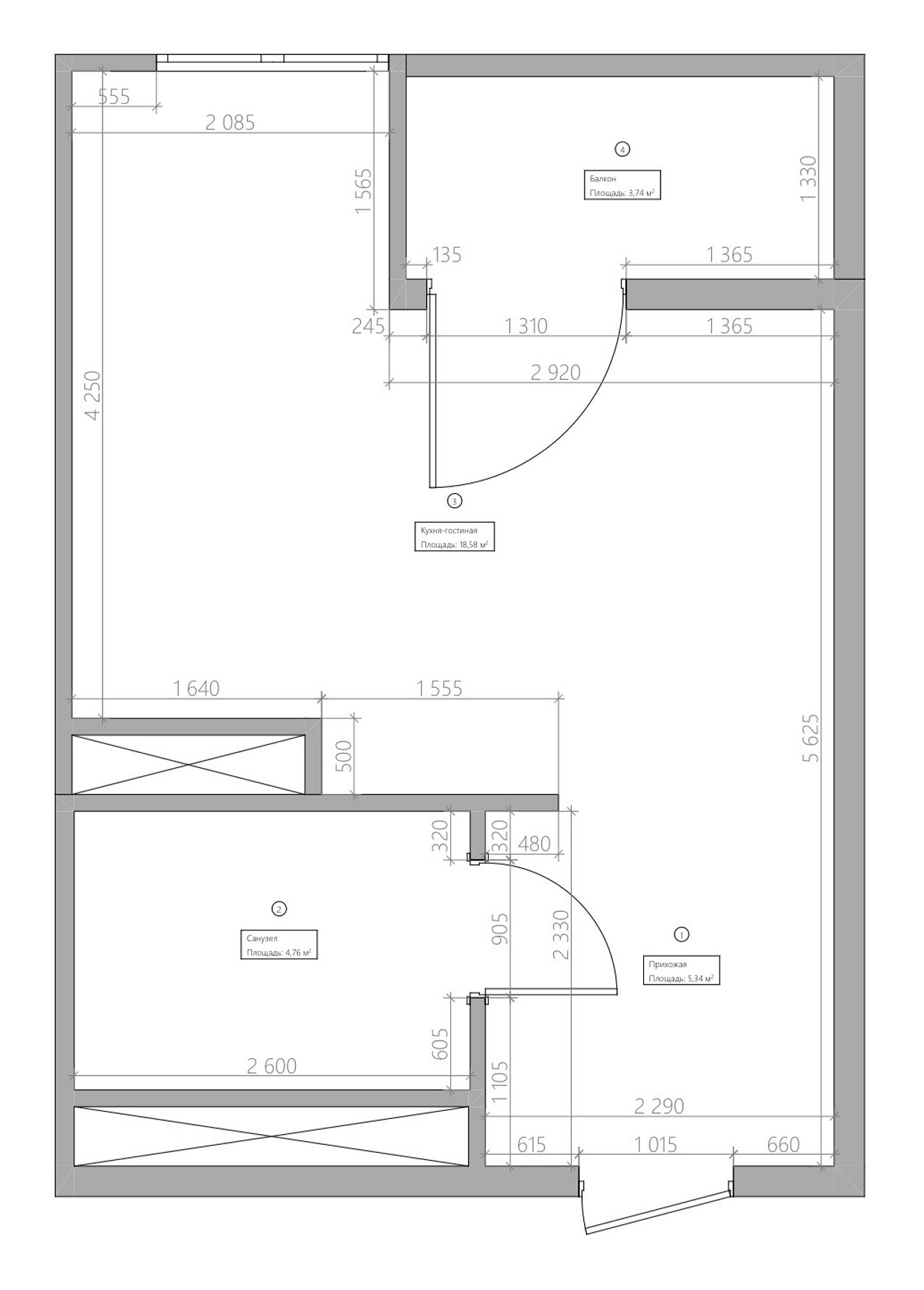
Весь объект 33 м2
Кухня-гостиная 14 м2
Спальня 5 м2
Лоджия 3 м2
Ванная комната 5 м2
Прихожая 6 м2
Редакция предупреждает, что в соответствии с Жилищным кодексом РФ требуется согласование проводимых переустройств и перепланировок.
Материалы и цвета
Весь объект
  • Пол: ламинат Egger
  • Стены: краска Dulux
  • Двери: «Белвуддорс»
  • Освещение: точечные светильники «Имекс»
Авторы
Если это ваш проект, пожалуйста, свяжитесь с нами по адресу ivd@burda.ru, указав в письме ссылку на проект.
Фьюжн Квартира Желтые Красные Синие Чёрные и белые 1-комнатная
Комментарии (0)

Пока комментариев нет. Начните обсуждение!