Дом в Апрелевке, Новая Москва

Дом • 186м² • Москва • • 2025 • 16.03.2026

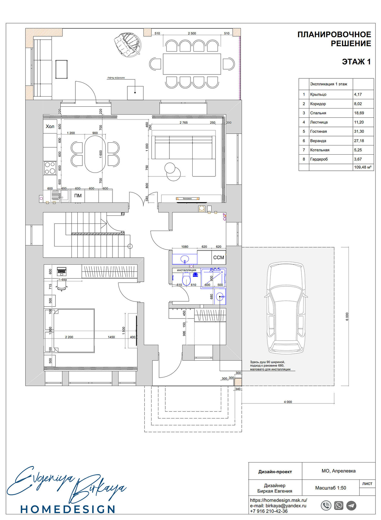
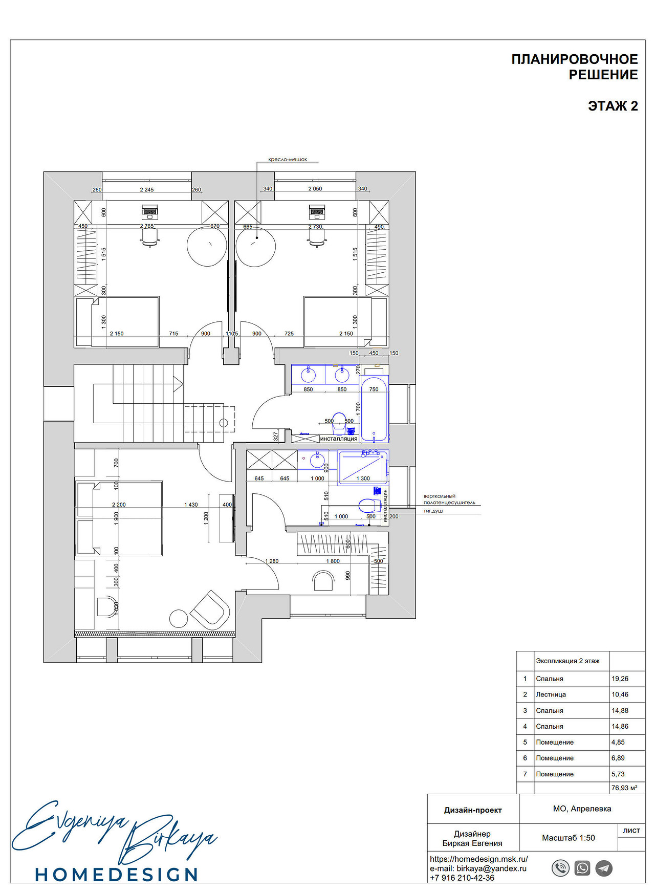
Представляем вашему вниманию просторный и светлый дом площадью 186 кв.м, расположенный в живописной Апрелевке Новой Москвы. Интерьер этого дома создан нами с любовью и вниманием к деталям, чтобы стать настоящим семейным гнездом для супругов и их двух активных мальчиков 9 и 11 лет. Данный дизайн-проект разработан с учётом изначальной планировки комнат, заложенной на этапе строительства. Наша основная задача заключалась в создании функциональной и комфортной расстановки мебели, максимально эффективно используя уже имеющиеся пространства. Мы учли эргономику, стиль и потребности заказчиков, чтобы обеспечить удобство и гармонию в каждом помещении без необходимости перепланировки. В результате продуманной расстановки мебели, сантехники и коммуникаций удалось добиться функциональности и удобства для всех членов семьи. На первом этаже находится просторная общая зона, включающая кухню-гостиную с обеденной зоной, а также открытая терраса. Мы также уделили время для создания эстетики парадного крыльца, которое встречает гостей стильным и приветливым видом, подчеркивающим общий дизайн дома. Особого внимания заслуживает зона кухни-гостиной, разделённая на две функциональные части. Кухонная зона оборудована всем необходимым для приготовления и семейных обедов, включая удобный обеденный стол, вокруг которого можно собрать всю семью. Гостиная — это просторное место для отдыха с большим и комфортным диваном, где можно проводить вечера за просмотром фильмов или играми с детьми. Под лестницей расположился вместительный хозяйственный блок, что позволяет аккуратно скрыть бытовые приборы и инвентарь, сохраняя при этом стиль и порядок в доме. Гостевая спальня оформлена в духе пятизвездочного отеля: просторная кровать, большой шкаф для хранения одежды и личных вещей, а также консольный столик с зеркалом, который можно использовать как для создания образа, так и для работы за ноутбуком или чтения. Отдельное внимание уделено организации досуга и отдыху на открытой террасе первого этажа — это место, где семья сможет наслаждаться свежим воздухом, устраивать вечерние чаепития или просто проводить время вместе на природе. Одним из ключевых моментов проекта стала прихожая, которая изначально казалась заказчикам маленькой и неудобной. Однако благодаря продуманному использованию пространства и функциональной мебели — открытой вешалке, вместительному гардеробному шкафу, большому зеркалу и удобной банкетке — здесь поместилось всё необходимое. При этом осталось достаточно свободного пространства, чтобы несколько человек могли комфортно разместиться одновременно, без ощущения тесноты. Второй этаж занимает приватная зона: две детские комнаты с удобной круговой расстановкой мебели, где дети могут играть, учиться и отдыхать. Главной же зоной уединения и отдыха является спальня с отдельной гардеробной и собственным санузлом. В этой комнате использованы все необходимые элементы для создания полного комфорта и автономии: здесь продуман каждый аспект для отдыха и расслабления, что позволяет взрослым членам семьи насладиться спокойствием и интимностью личного пространства. При разработке стилистического решения мы также отталкивались от образа жизни и пожеланий заказчиков: мы предложили оформить дом в нежных натуральных оттенках, что придает интерьеру лёгкость и свежесть. Использовали качественные материалы, гармонирующие между собой, создающие здоровую, благоприятную и целостную атмосферу в доме. Такой дом идеально подойдет семье, ценящей комфорт, функциональность и стиль, а также желающей жить в окружении природы и тишины, не отказываясь от удобств городской жизни.

План
Комната Было Стало
Общая площадь 186 м2 186 м2
Количество комнат 1 4
Редакция предупреждает, что в соответствии с Жилищным кодексом РФ требуется согласование проводимых переустройств и перепланировок.
Авторы
Если это ваш проект, пожалуйста, свяжитесь с нами по адресу ivd@burda.ru, указав в письме ссылку на проект.
Современный стиль Загородный дом 4-комнатная
Комментарии (0)

Пока комментариев нет. Начните обсуждение!

Похожие перепланировки