Реализованный проект двухкомнатной квартиры площадью 44,9 м2
Дизайнер создала для семьи своей близкой подруги вдохновляющее пространство, которое отражает характер и образ жизни мамы, папы и двух девочек. Читать далее...
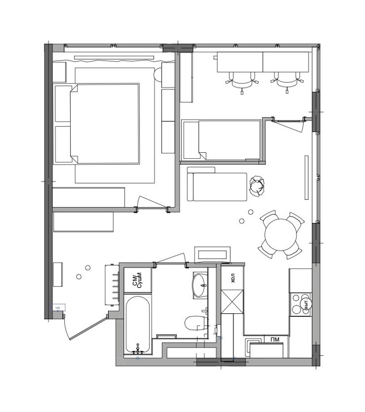
План
| Комната |
Было |
Стало |
| Общая площадь |
46,2 м2
|
44,9 м2
|
| Количество комнат |
1 |
2 |
| Высота потолка |
2,9 м
|
2,8 м
|
| Весь объект |
– |
44,9 м2 |
| Кухня-гостиная |
– |
15 м2 |
| Спальня |
– |
12 м2 |
| Детская |
– |
7,8 м2 |
| Ванная комната |
– |
4 м2 |
| Прихожая |
– |
6,1 м2 |
Редакция предупреждает, что в соответствии с Жилищным кодексом РФ требуется согласование проводимых переустройств и перепланировок.
Материалы и цвета
Весь объект
- Двери: «Океан»
- Выключатели и розетки: Систем Электрик
Кухня-гостиная
- Пол: плитка Peronda, инженерная доска Greenline
- Стены: краска Swiss Lake, фреска Factura
- Фартук: плитка Equipe
- Мебель: кухня «Лемана Про», обеденный стол Ви ту Ю, стулья и табурет divan.ru, диван «Красдиван»
- Техника: Weissgauff
- Освещение: накладные светильники и трек Artelamp, светильник-трансформер над обеденной зоной «Алиэкспресс», бра над диваном и на кухне Roshanak
Спальня
- Пол: инженерная доска Greenline
- Стены: краска Swiss Lake
- Молдинги: Orac Decor
- Мебель: кровать и прикроватная тумба divan.ru, шкафы и пуф La Redoute, платяной шкаф сделан на заказ
- Освещение: бра Lumion
Детская
- Пол: инженерная доска Greenline
- Стены: краска Swiss Lake, обои Аура
- Мебель: кровать La Redoute, письменные столы «Правила мебели», стулья ИКЕА, шкаф сделан на заказ
- Освещение: треки Artelamp
Ванная комната
- Пол: керамогранит Kerama Marazzi
- Стены: плитка Kerama Marazzi, краска Swiss Lake
- Мебель: сделана на заказ
- Сантехника: Lemark
- Полотенцесушитель: «Двин»
- Освещение: накладные светильники Artelamp
Прихожая
- Пол: плитка Peronda, инженерная доска Greenline
- Стены: краска Swiss Lake, обои A.S. Creation
- Плинтусы и молдинги: Orac Decor
- Мебель: обувница divan.ru, скамья La Redoute, шкаф сделан на заказ
- Зеркало: «Лемана Про»
- Освещение: Artelamp
Цвета
-
Стены
-
Мебель
-
Мебель
-
Стены
-
Мебель
Авторы
Если это ваш проект, пожалуйста, свяжитесь с нами по адресу
ivd@burda.ru, указав в письме ссылку на проект.
Пока комментариев нет. Начните обсуждение!