Дом с ярким и запоминающимся интерьером для стилиста

Дом • 77,4м² • • 24.02.2026

Реализованный проект одноэтажного загородного дома площадью 77,4 м2

Хозяйка дома попросила дизайнера изменить интерьер, чтобы добавить пространству индивидуальности и характера. Посмотрите, что получилось. Читать далее...

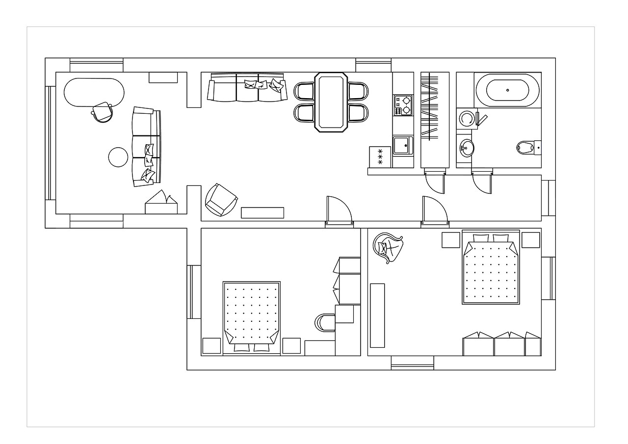
План
Комната Было Стало
Общая площадь 77,4 м2 77,4 м2
Количество комнат 3 3
Высота потолка 2,8 м 2,8 м
Весь объект 77,4 м2
Тамбур 3,3 м2
Коридор 6,3 м2
Кухня 5,7 м2
Гостиная 21,8 м2
Спальня 1 16,3 м2
Спальня 2 17,8 м2
Ванная комната 6,2 м2
Редакция предупреждает, что в соответствии с Жилищным кодексом РФ требуется согласование проводимых переустройств и перепланировок.
Материалы и цвета
Весь объект
  • Пол: ламинат Lamiwood
  • Стены: краска Hygge
  • Подоконник(и): плитка Kerama Marazzi
  • Картины: галерея Ann Art Project
  • Освещение: люстра в спальне Arte Lamp
Авторы
Если это ваш проект, пожалуйста, свяжитесь с нами по адресу ivd@burda.ru, указав в письме ссылку на проект.
Фьюжн Загородный дом Желтые Красные Синие Зелёные Чёрные и белые 3-комнатная
Комментарии (0)

Пока комментариев нет. Начните обсуждение!

Похожие перепланировки