Необычный дом с авторским интерьером в Московской области

Дом • 124м² • • 10.04.2026

Реализованный проект двухэтажного загородного дома площадью 124 м2 (без учета террасы и крыльца)

Этот интерьер в прямом смысле слова неповторим: он абсолютно авторский, до малейшей детали персонализированный, с огромным количеством ручной работы — настоящий арт-объект. Читать далее...

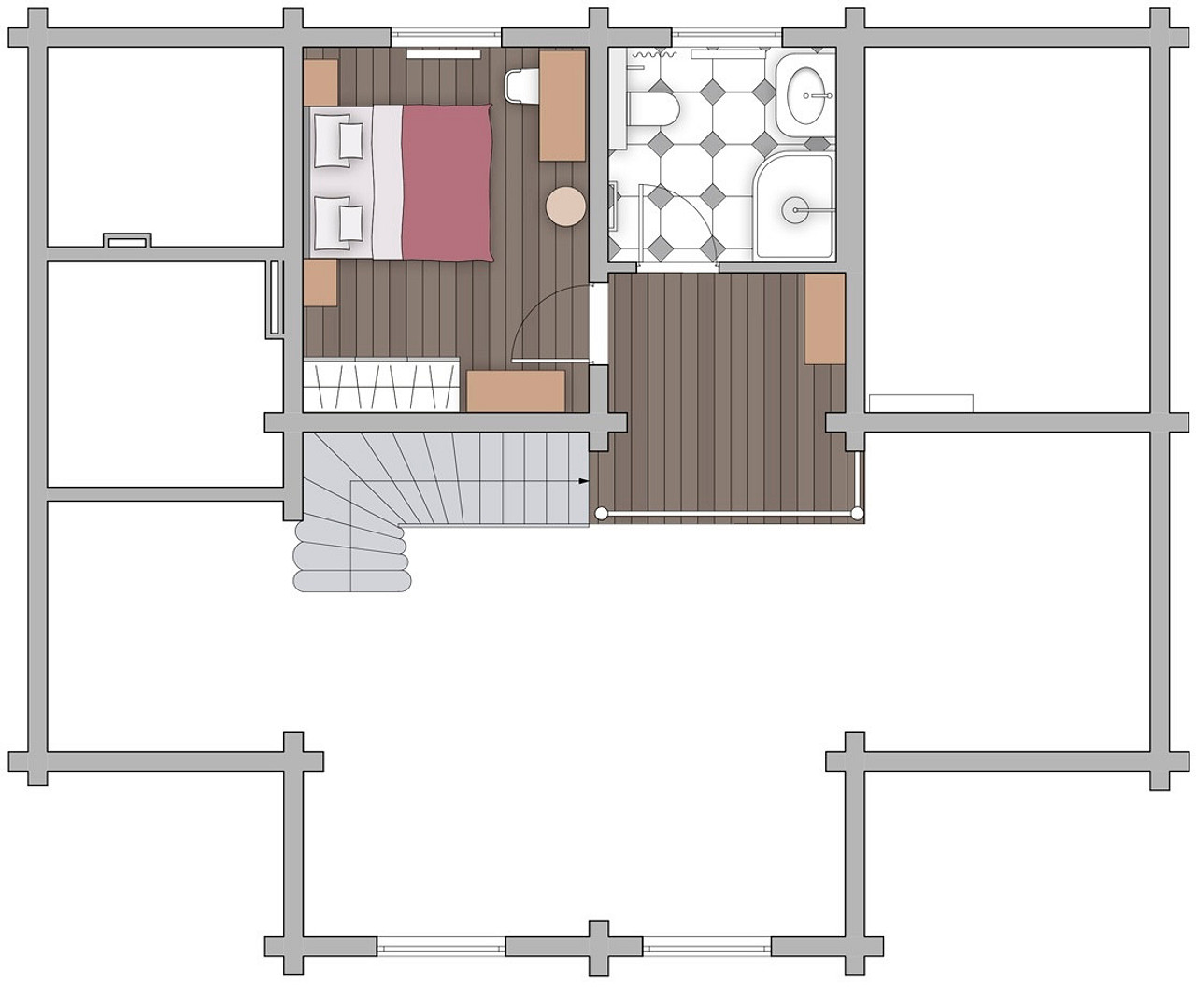
План
Комната Было Стало
Общая площадь 124 м2 124 м2
Количество комнат 4 4
Весь объект 124 м2
Гостиная 36,6 м2
Кухня 11,4 м2
Мастер-спальня 12,3 м2
Спальня дочери 12,3 м2
Ванная комната 5,8 м2
Санузел 6,3 м2
Котельная 6 м2
Тамбур 7,6 м2
Терраса 43,2 м2
Холл второго этажа 7,4 м2
Гостевая спальня 12,3 м2
Санузел на втором этаже 6 м2
Редакция предупреждает, что в соответствии с Жилищным кодексом РФ требуется согласование проводимых переустройств и перепланировок.
Материалы и цвета
Весь объект
  • Окна: пластиковые трехкамерные с двухкамерным стеклопакетом Kaleva
  • Двери: «Дориан»
  • Мебель: встроенная и часть отдельностоящей, кухня и шкафы сделаны на заказ в мебельной студии «Атмосфера», mylittlefrance.ru, «Корти Канту»
  • Сантехника: Lemark, Stworki, ValenHouse, «Керасан», «Симас», Veragio
  • Техника: Paulmark, «Кайзер», Gorenje, Maunfeld
  • Полотенцесушитель: Secado
  • Текстиль: декоратор Александра Рунова («Стильные-текстильные»)
  • Освещение: «Глобо», Citilux, ST Luce, «Богемия», «Ф-Промо», Maytoni, «МВ Лайт»
Авторы
Если это ваш проект, пожалуйста, свяжитесь с нами по адресу ivd@burda.ru, указав в письме ссылку на проект.
Кантри Загородный дом Красные Зелёные Чёрные и белые 4-комнатная
Комментарии (0)

Пока комментариев нет. Начните обсуждение!