Уютная студия в бежевых тонах для сдачи в аренду

1-комнатная • 24,7м² • ЖК Univer City • 16.02.2026

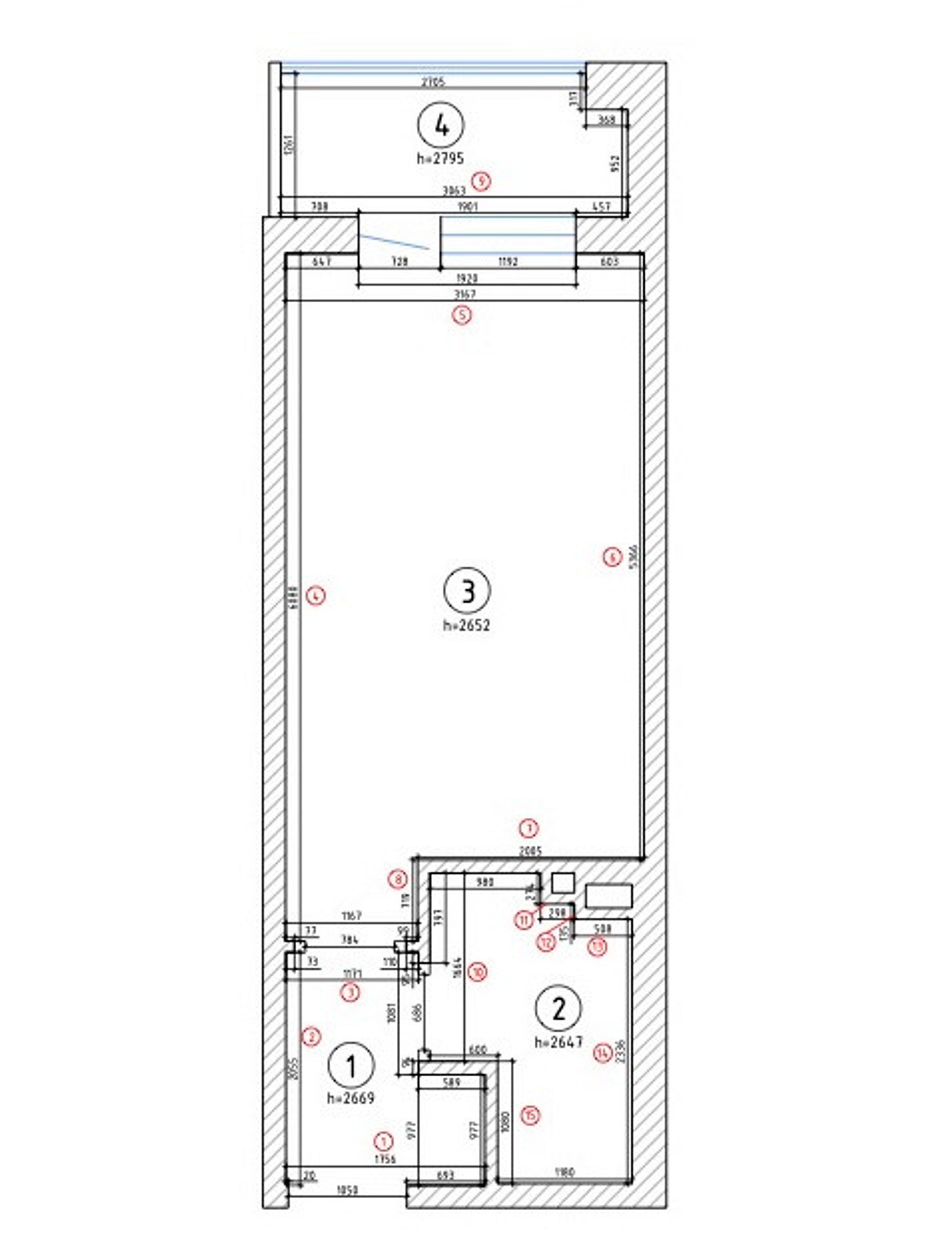
Реализованный проект квартиры-студии площадью 24,7 м2 (без учета площади балкона)

Дизайнерам удалось создать универсальный, но выразительный интерьер на базе ремонта от застройщика. Читать далее...

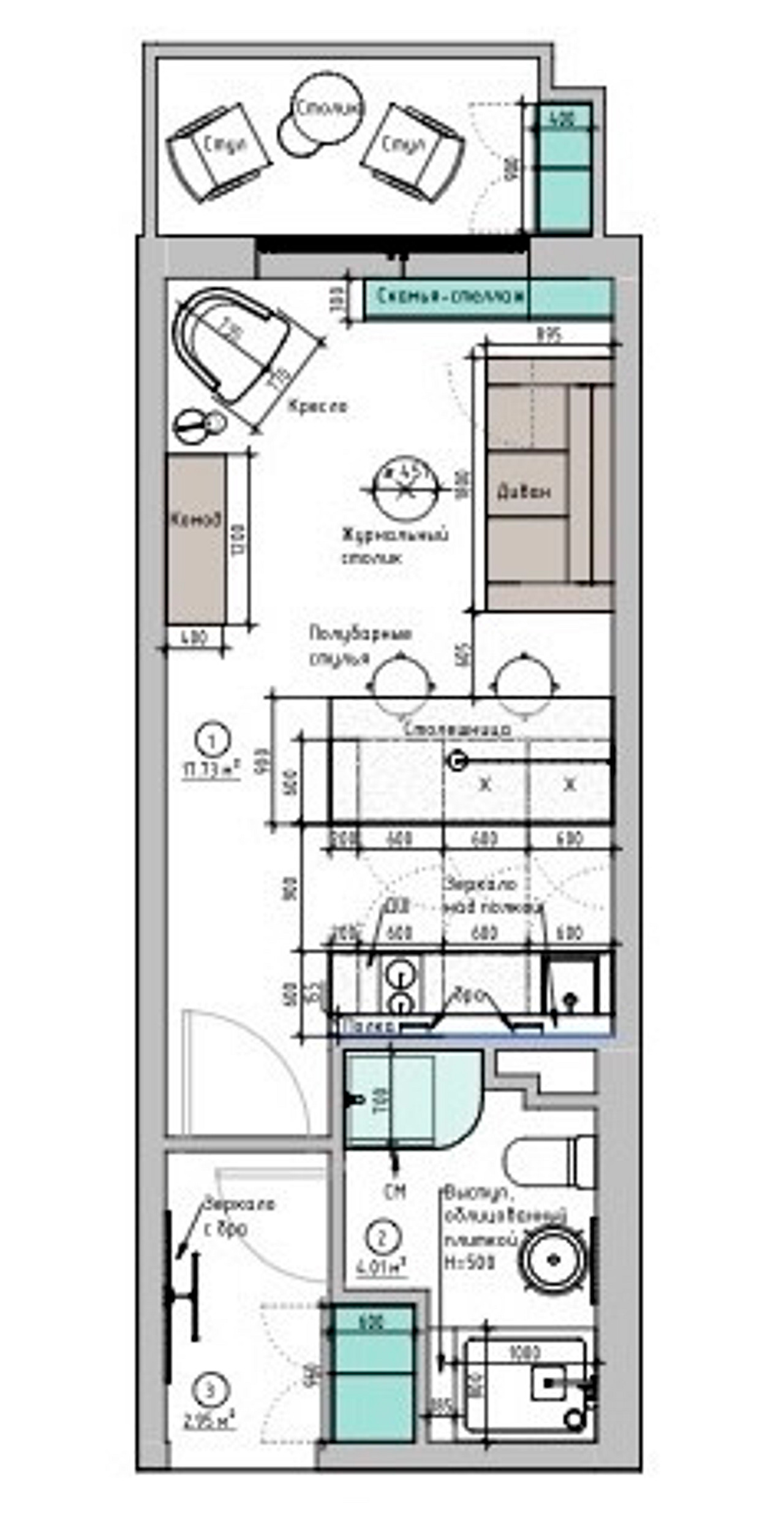
План
Комната Было Стало
Общая площадь 24,9 м2 24,7 м2
Количество комнат 1 1
Весь объект 24,7 м2
Комната 17,7 м2
Санузел 4 м2
Прихожая 3 м2
Редакция предупреждает, что в соответствии с Жилищным кодексом РФ требуется согласование проводимых переустройств и перепланировок.
Материалы и цвета
Весь объект
  • Мебель: divan.ru, корпусная сделана на заказ
Авторы
Если это ваш проект, пожалуйста, свяжитесь с нами по адресу ivd@burda.ru, указав в письме ссылку на проект.
Современный стиль Квартира Желтые Синие Чёрные и белые 1-комнатная
Комментарии (0)

Пока комментариев нет. Начните обсуждение!