Нескучный бежевый! Студия 24 кв. м, где обновили ремонт от застройщика
Заказчик и задачи
Это инвестиционный проект — маленькую студию планировали для сдачи в аренду студенту или молодой паре без детей. К дизайнерам Дарине Шайденко и Юлии Талиповой обратились с запросом на преображение интерьера с ремонтом от застройщика: требовалось провести косметический ремонт, продумать расстановку мебели и систем хранения, предусмотреть места для учебы или удаленной работы.
Планировка
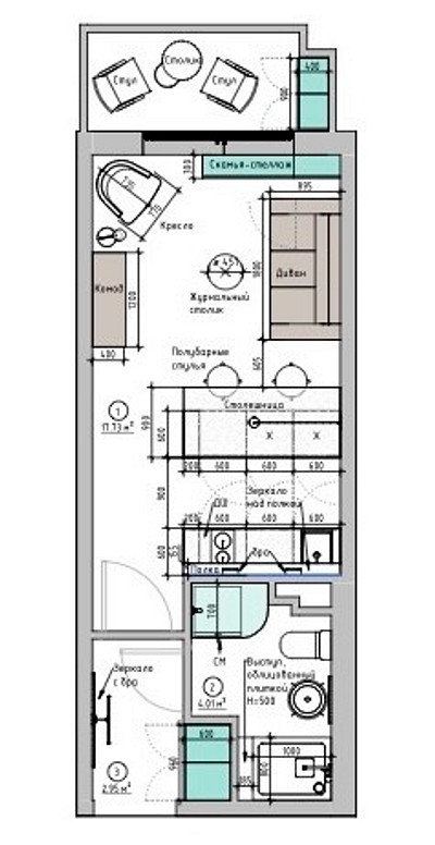
Готовую планировку студии не меняли: остались вытянутая комната с окном и дверью на лоджию, изолированная прихожая и ванная комната.
Отделка
Отделку от застройщика сохранили: стены под покраску, ламинат на полу, плитка в ванной комнате. Для оформления стен выбрали бежевую краску теплого оттенка. В прихожей одну стену сделали синей — синие оттенки стали акцентными в мелкой мебели и декоре и в комнате. Плитку в ванной комнате тоже покрасили.
В комнате для акцента использовали несколько материалов: на кухне разместили зеркало вместо ряда верхних шкафов. Этот прием не только увеличивает пространство визуально, но и создает эффект второго окна: сидя за барной стойкой, будущие жильцы смогут наблюдать за происходящим в этом «окне».
Стену с дверью на лоджию оформили панелями под дерево — такой выбор сделали, чтобы визуально «скрыть» систему хранения, выполненную из того же материала. Радиатор под окном закрыли декоративной решеткой и сделали широкий подоконник.
Мебель и системы хранения
В квартире один шкаф для вещей — он «встал» в нишу в прихожей. Сделали его на заказ и выбрали подвесную конструкцию, чтобы было удобно расположить обувь под шкафом.
Кухню сделали на заказ и выбрали параллельную планировку: отсутствие верхних шкафов компенсировано полуостровом, который еще и выполняет функции барной стойки для приема пищи. Именно в полуостров встроены два мини-холодильника. Из встроенной техники на кухне также духовой шкаф. Варочную панель выбрали на две конфорки.
В комнате — раскладной диван. Напротив поставили комод для хранения. У окна разместили книжный шкаф.
Освещение
Дизайнеры спланировали разные сценарии освещения, используя существующие выводы от застройщика и добавив новые источники света. На потолке в прихожей разместили трековый светильник, а в комнате — плоский потолочный плафон. На зеркале над кухней — пара бра, над полуостровом — бра на длинной ножке, а у окна монтировали маленький поворотный спот. Также дополнительным сценарием света выступает торшер в комнате. В прихожей — декоративное бра, которое выглядит как декор.





Пока комментариев нет. Начните обсуждение!