Звуки тишины

3-комнатная • 160м² • Москва • ЖК «Скайфорт» • 2019 • 03.02.2026

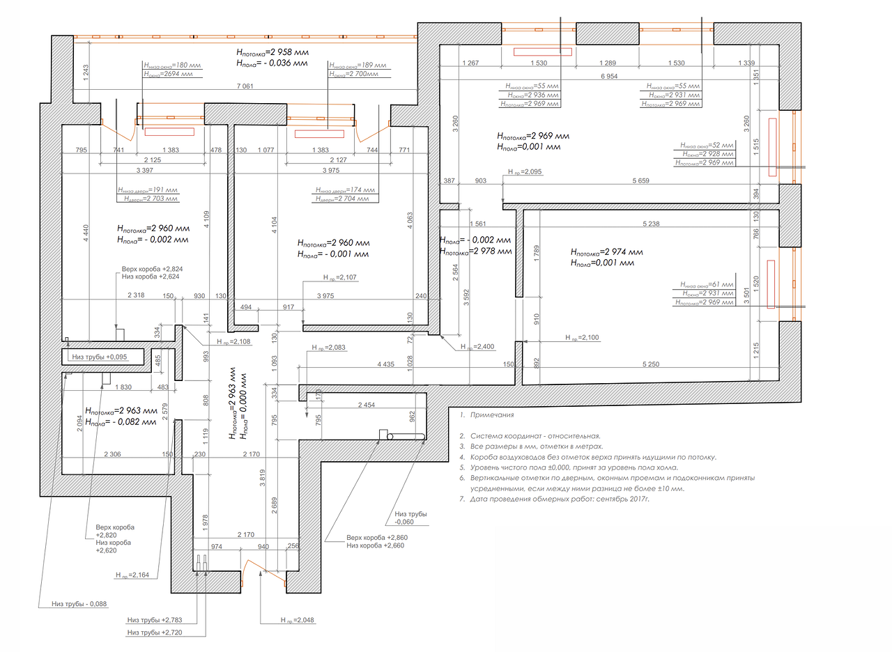
ЗАПРОС ЗАКАЗЧИКА. В ходе реализации проекта была приобретена смежная однокомнатная квартира, которую необходимо было концептуально объединить в единое пространство с большой квартирой, сохранив возможность по необходимости «отсоединить» в самостоятельную квартиру. Предусмотреть зоны хранения вещей. Концептуально выстроить все логично и лаконично. НАШИ РЕШЕНИЯ С целью сохранения независимости присоединённой квартиры мы предложили в смежной стене между квартирами сделать дверной проем и в новой зоне предусмотреть хозяйскую зону. В смежной комнате между квартирами организовали кабинет, детскую комнату перенесли на предыдущее место спальни, а в хозяйской зоне предусмотрели спальню, дополнительную кухню, санузел с душевой. Таким образом, квартира стала общей площадью 160 м2, но при необходимости перекрыв дверной проем между ними, заказчики получили две равновеликих квартир рядом. Сложность этого объекта заключалась еще и в том, что не смотря на большую площадь квартиры, разместить полноценные гардеробные не представлялось возможным, так как по центру квартиры проходила несущая стена. Поэтому было принято решение при разработке планировочного решения все зоны хранения «интегрировать» в стены и «спрятать» их за стеновыми панелями. Концепция интерьера сложилась вокруг главных принципов: лаконичность, предельная функциональность, натуральные материалы. Используемые материалы: стены и потолок краска; пол инженерная доска, керамогранит; дерево, металл, стекло, керамика, натуральные ткани- лен.

План
Комната Было Стало
Общая площадь 160 м2 160 м2
Жилая площадь 130 м2 140 м2
Количество комнат 3 3
Гостиная 25 м2 43 м2
Редакция предупреждает, что в соответствии с Жилищным кодексом РФ требуется согласование проводимых переустройств и перепланировок.
Авторы
Если это ваш проект, пожалуйста, свяжитесь с нами по адресу ivd@burda.ru, указав в письме ссылку на проект.
Современный стиль Квартира 3-комнатная
Комментарии (0)

Пока комментариев нет. Начните обсуждение!

Похожие перепланировки