Стильная и комфортная квартира в ЖК на берегу реки

1-комнатная • 50м² • Санкт-Петербург • ЖК «Alter (Альтер)» • 2024 • 14.01.2026

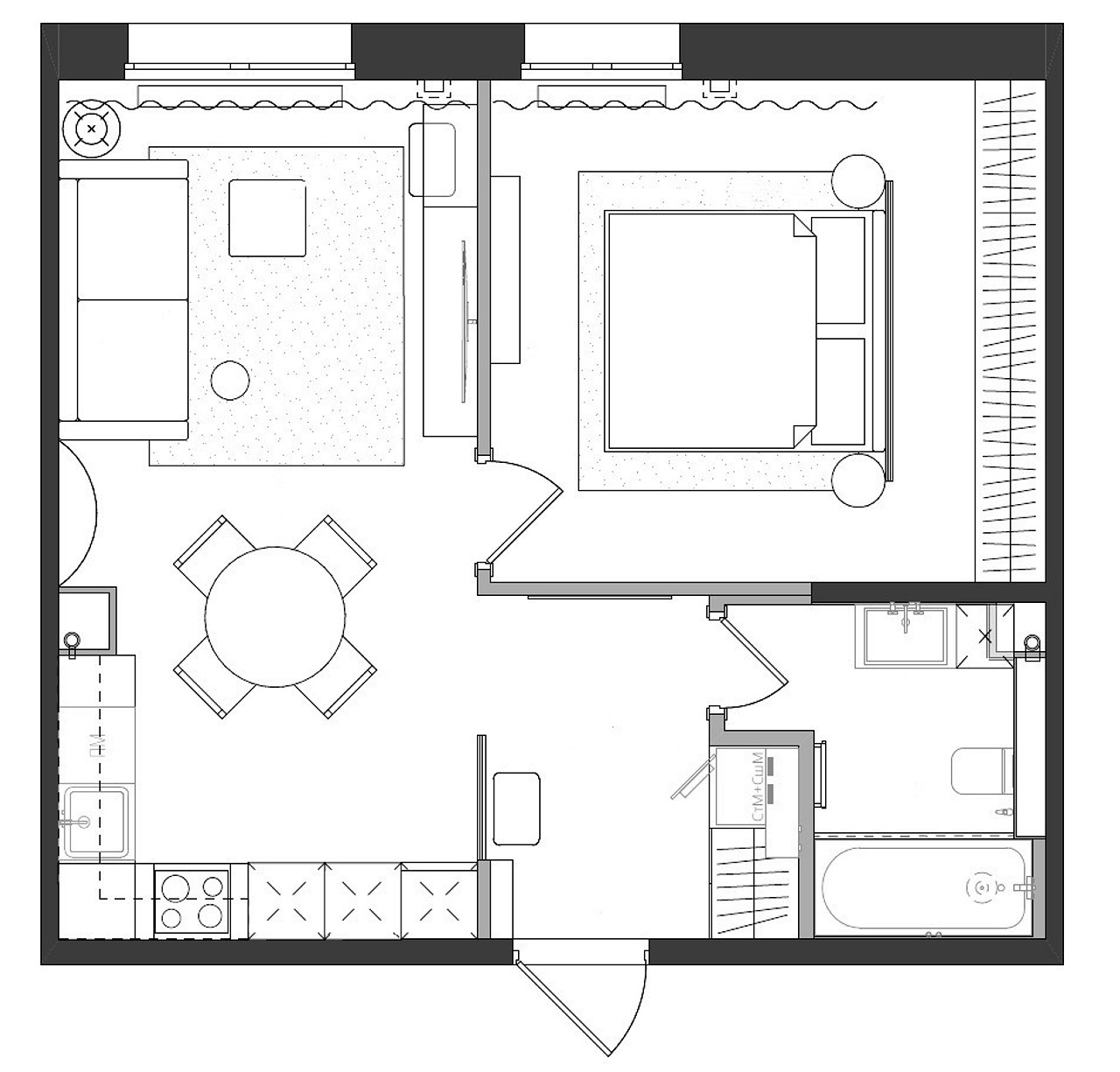
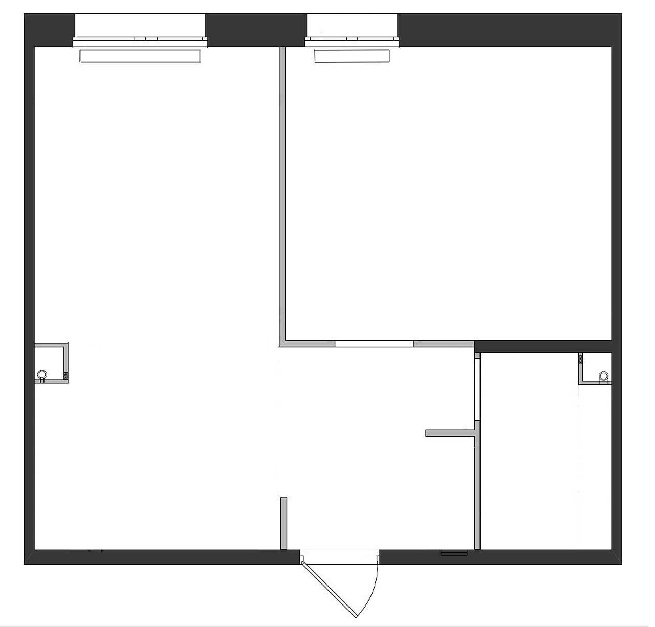
Элегантность, утончённость, благородство … Такие мысли и ощущения дарит нам этот проект. Квартира площадью 50 кв. метров находится в жилом комплексе бизнес-класса «Alter», на берегу живописной реки Охты. Планировка от застройщика вполне отвечала запросам заказчиков, поэтому менять её пришлось минимально. Все изначально спроектированные зоны остались на своих местах, но с небольшой трансформацией. Таким образом, вход в спальню перенесли из прихожей в зону кухни-гостиной, благодаря чему пространство спальни стало более приватным, а в прихожей появилась стена для парадного зеркала. Одной из главных задач было максимальное наполнение квартиры естественным светом. Для этого в зоне прихожей вместо глухой перегородки установили лёгкую стеклянную конструкцию, пропускающую свет, а в спальне — необычное стеклянное изголовье-перегородку, разделяющее кровать и зону гардеробной. Бархатный, благородный винный оттенок является связующей нитью для всех пространств. Так, он находит своё место в спальне, спускаясь с потолка на размещённую за кроватью гардеробную. В гостиной этот оттенок служит ярким пятном в качестве картины. В пространстве санузла он проявляется в зоне зеркала и завершает композицию. Баланс светлой основы и графичных элементов делает атмосферу интерьера насыщенной и сложной. Тёплые латунные всплески металла оживляют образ интерьера. Стройные вертикали молдингов добавляют пространству элегантности и утончённости. Создают ощущение высоты и лёгкости, делая интерьер ещё более воздушным. Интерьер, построенный на нюансах, прекрасно дополняет декор от StandArt interiors. В целом, дизайн этой квартиры представляет собой прекрасное сочетание стиля и комфорта. Каждый элемент работает на создание гармоничного пространства, в котором хочется проводить время.

План
Комната Было Стало
Общая площадь 50 м2 50 м2
Количество комнат 1 1
Гостиная-кухня 22 м2 22 м2
Редакция предупреждает, что в соответствии с Жилищным кодексом РФ требуется согласование проводимых переустройств и перепланировок.
Материалы и цвета
Цвета
  • Стены, Мебель
  • Стены
Авторы
Если это ваш проект, пожалуйста, свяжитесь с нами по адресу ivd@burda.ru, указав в письме ссылку на проект.
Классический стиль Квартира Желтые Красные 1-комнатная
Комментарии (0)

Пока комментариев нет. Начните обсуждение!