Флиппинг-квартира в сталинке, где сохранили дух времени

2-комнатная • 49,8м² • • 08.12.2025

Реализованный проект двухкомнатной квартиры площадью 49,8 м2

Дизайнеру удалось создать новый интерьер, сохранив атмосферу старого дома. Читать далее...

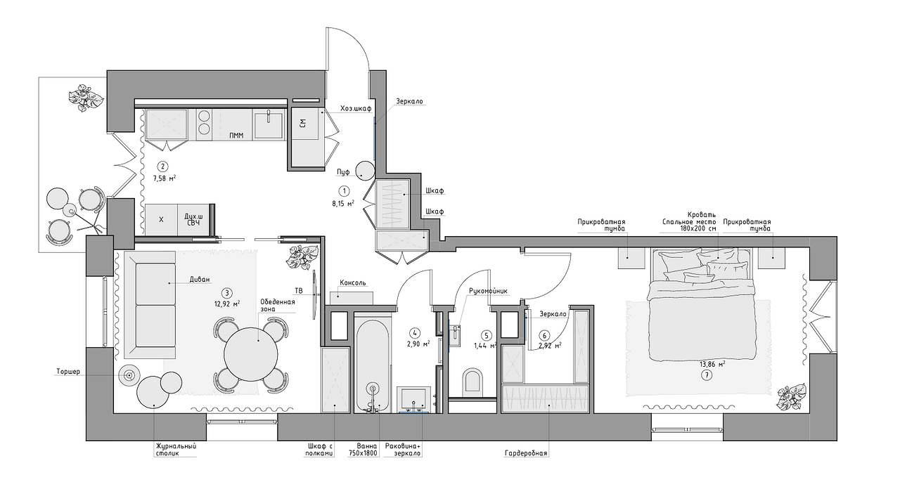
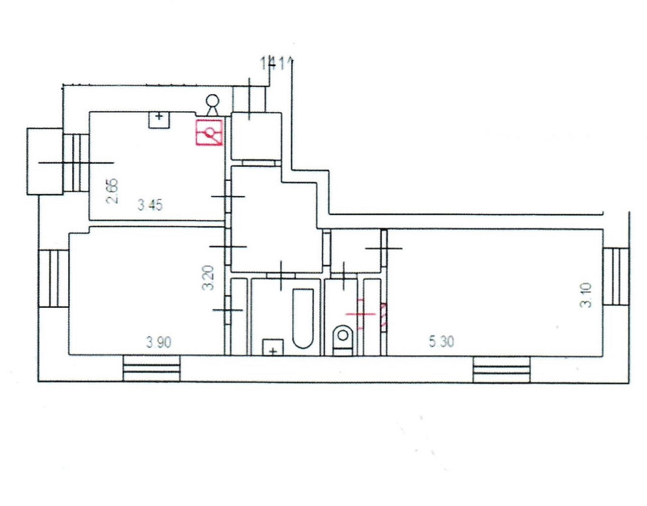
План
Комната Было Стало
Общая площадь 54 м2 49,8 м2
Количество комнат 2 2
Весь объект 49,8 м2
Кухня 7,6 м2
Гостиная 12,9 м2
Спальня 13,9 м2
Гардеробная 2,9 м2
Ванная комната 2,9 м2
Туалет 1,4 м2
Прихожая-коридор 8,2 м2
Редакция предупреждает, что в соответствии с Жилищным кодексом РФ требуется согласование проводимых переустройств и перепланировок.
Материалы и цвета
Весь объект
  • Пол: ламинат Alpine Floor, AquaFloor
  • Стены и пол: керамогранит Laparet
  • Стены: краска Little Greene, Mons, обои Ffactura
  • Потолок: лепные розетки Dicart, мастерская «Петергоф»
  • Карнизы, плинтусы, молдинги: плинтусы «Европласт», карнизы и молдинги Decomaster
  • Двери: «Волховец»
  • Фартук: плитка Equipe
  • Мебель: кухня и шкафы сделаны на заказ, диван и стулья divan.ru, обеденный стол Fosuhouse, кровать Sonum, прикроватные тумбы Dantone Home
  • Сантехника: мойка на кухне Granula, смеситель на кухне Paulmark, раковина в ванной Abber, смесители в ванной Raiber, ванна Aquanet, шторка для ванны Stworki
  • Техника: холодильник Haier, посудомоечная машина, духовой шкаф и СВЧ Weissgauff, варочная панель Simfer
  • Полотенцесушитель: «Маргроид»
  • Шторы: A&H
  • Освещение: люстра в гостиной Lumina Deco, бра Freya, Divinare, точечный свет Maytoni, люстра на кухне Dantone Home, светильник в ванной Arte Lamp, бра в ванной ST Luce
  • Выключатели и розетки: Schneider Electric
Авторы
Если это ваш проект, пожалуйста, свяжитесь с нами по адресу ivd@burda.ru, указав в письме ссылку на проект.
Современная классика Квартира Желтые Серые Чёрные и белые 2-комнатная
Комментарии (0)

Пока комментариев нет. Начните обсуждение!