Пиано. Апартамент 22 кв.м с отделкой от застройщика
ФОРТЕ и ПИАНО — два апартамента для сдачи в аренду гостям Петербурга. Мои заказчики решили сделать похожие номера в разных акцентных цветах. Фоновый цвет стен и корпусной мебели, а также кухонный фартук — одинаковые. И именно из-за черно-белого фартука, уложенного со смещением и напоминающего клавиши фортепиано, апартаменты получили свои имена и идею. ФОРТЕ — громкий, апартамент с бордовым цветом и ПИАНО — тихий, апартамент с синим цветом. Номера сдавались с отделкой от застройщика, которую мы доработали (перекрасили стены, добавили розетки и др). Корпусная мебель изготовлена на заказ, акцентный фартук из плитки Equipe, кровать, кушетка — мебельное производство, остальные товары преимущественно с маркетплейсов. Помимо фартука фокусной точкой каждого апартамента является панно, расположенное над изголовьем кровати. Эти панно я купила на маркетплейсе, они были полностью белые. Но чтобы привнести цвет и геометрические элементы в интерьер я выкрасила некоторые детали панно в акцентные цвета — для каждого номера свои.

Комната | Было | Стало |
---|---|---|
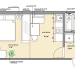
Общая площадь | 22,4 м2 | 22,4 м2 |
Жилая площадь | 14,5 м2 | 14,5 м2 |
Количество комнат | 1 | 1 |
Студия | 22,4 м2 | 22,4 м2 |
- Стены
- Стены
- Потолок
- Светильники, Аксессуары
Пока комментариев нет. Начните обсуждение!