Студия в ЖК Серебряный Бор
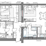
Наш постоянный заказчик обратился к нам за проектированием двух небольших квартир под сдачу в ЖК «Серебряный Бор». Стояла задача уместить все необходимое для жизни одного-двух человек: гостиную с функцией кухни и столовой, полноценную спальню с кроватью, гардеробную, санузел с постирочной зоной, а также предусмотреть большое количество мест хранения.

Комната | Было | Стало |
---|---|---|
Общая площадь | 55,2 м2 | 54,4 м2 |
Количество комнат | 1 | 2 |
Гостиная | – | 25,9 м2 |
Спальня | – | 11,4 м2 |
Санузел | – | 6,8 м2 |
Гардеробная | – | 4,1 м2 |
Пока комментариев нет. Начните обсуждение!