Кухня-гостиная.
Объединенное пространство.
Кухня.
Кухня-гостиная.
Объединенное пространство.
Общий вид на кухню.
Кухня-гостиная.
Объединенное пространство.
Кухня.
Кухня-гостиная.
Объединенное пространство.
Вид на выход в прихожую и дверь в спальню.
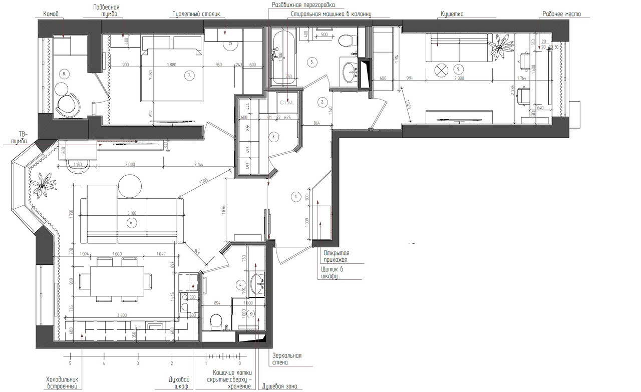
В прихожую ведет раздвижная стеклянная перегородка. Это было важно, т.к. в семье маленький ребенок, чтобы он не выползал в прихожую.
Кухня-гостиная.
Объединенное пространство.
Кухня.
Рядом дверь в гостевой санузел.
Кухня-гостиная.
Объединенное пространство.
Общий вид на гостиную. Диван служит акцентном и перегородкой между зонами, при этом общее пространство больше никак не делится.
Кухня-гостиная.
Объединенное пространство.
Выход в прихожую.
Кухня-гостиная.
Объединенное пространство.
Вид на кухню из входа в комнату.
Кухня-гостиная.
Объединенное пространство.
Общий вид на выход.
Кухня-гостиная.
Объединенное пространство.
Гостиная зона. Вид на рабочее место.
Кухня-гостиная.
Объединенное пространство.
Гостиная зона. Вид на рабочее место из кухни.
Кухня-гостиная.
Объединенное пространство.
Гостиная зона.
Прихожая и коридор.
Вид на вход в квартиру.
Прихожая и коридор.
Открытая и закрытая прихожая.
Прихожая и коридор.
Вид со входа на квартиру.
Все двери в едином стиле.
Прихожая и коридор.
Вид на вход в квартиру и вход в кухню-гостиную.
Стеклянная перегородка позволяет проникать в прихожую естественному свету.
Прихожая и коридор.
Вид из коридора на вход.
Прихожая и коридор.
Сдержанная графика на стенах.
Прихожая и коридор.
Вид на вход в кухню-гостиную и гардеробную.
Гостевой санузел с душевой зоной.
Вид на душ.
Гостевой санузел с душевой зоной.
Вид на выход в кухню-гостиную.
Гостевой санузел с душевой зоной.
Вид на раковину.
Предусмотрено место под скрытый кошачий туалет. В семье 2 котика.
Гардеробная.
В общей стилистике с квартирой.
Гардеробная.
В общей стилистике с квартирой.
Гардеробная.
В общей стилистике с квартирой.
Спальня.
Общий вид. Выход на теплую лоджию.
Спальня.
Вид на вход из кухни-гостиной.
Ванная комната.
Общий вид.
Ванная комната.
Общий вид.
Ванная комната.
Общий вид.
Ванная комната.
Общий вид.
Детская на вырост.
Общий вид.
Детская на вырост.
Вид на шкаф.
Детская на вырост.
Вид на выход из комнаты.
Детская на вырост.
Общий вид.
Детская на вырост.
Общий вид.
Детская на вырост.
Общий вид.
Предусмотрено 2 рабочих места.
Расчет на возможное пополнение семейства в будущем. Чтобы помещение превращалось на 2 детей только заменой кровати на двуярусную.
Детская на вырост.
Рабочее место.
Пока комментариев нет. Начните обсуждение!