Ряды оранжевого пластика- основа фото-экспозиции- созвучны полосам в спальне и прихожей
Чтобы поддержать сочный цвет фасада кухни и распространить его на обеденную зону, предложено сделать облицовку ярко-зеленой плиткой с вставками плафонов-светильников (как в прихожей), продлить ее на стену, а затем- на потолок
Вспальню поступает немного света, она открыта, но при этом защищена от посторонних взглядов. Изголовье кровати стоит вплотную к стене, по бокам расположены узкие шкафчики-пеналы (глубина- 40см) с антресолью
Изюминка интерьера- плафоны (ударостойкое стекло с подсветкой)
Заменяя ванну душевой кабиной, дизайнер, во-первых, учитывает, что хозяйка ведет активный образ жизни,
а во-вторых, экономит имеющееся пространство
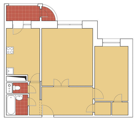
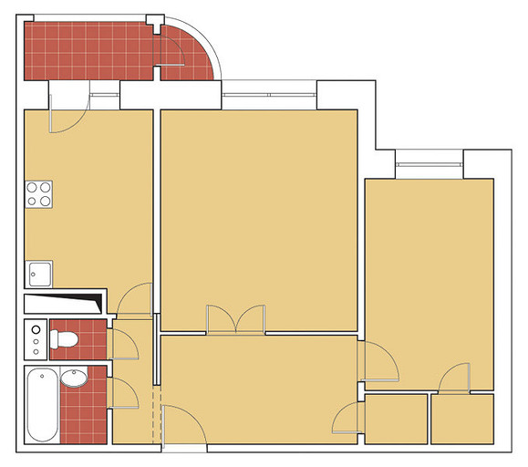
План после переустройства
На фоне коричневой стеклянной мозаики с авантюрином белая сантехника смотрится выигрышно. Навесной унитаз со скрытым бачком экономит место и облегчает уборку пола
План после переустройства
Обрамленные стеллажами и антресолью воздушные остекленные двери визуально облегчают всю конструкцию
Стильный настенный бачок- инсталляция на консолях в духе английского ретро- напомнит хозяевам о прошлом. Деревянная крышка тоже "в теме"- ретро 20-х гг. XXв.
План после переустройства
Отделку перегородки с встроенным в нее электрокамином выполняют из полированного керамогранита коричневого цвета и неоднородной текстуры
Классическое оформление не помешает кухне иметь современную начинку и эргономичную планировку. Например, электрический духовой шкаф установлен на оптимальной высоте (1,1м)- удобно готовить, не наклоняясь
Подбор светильников предусматривает различные варианты освещения: на дугообразном карнизе потолка- встроенные светильники, с двух сторон кровати с потолка свисают подвесы, даже в изголовье- узкая полоска-плафон
Сегодня можно подобрать все принадлежности в стиле ретро: смесители, аксессуары для ванной, латунный карниз для шторки и даже полотенцесушитель
План после переустройства
Деревянные полки-ниши над столом в кухне- не только выразительная скульптурная композиция,
они позволят рационально разместить массу мелочей, которые должны быть всегда под рукой: солонки, емкости
с пряностями, салфетки ит.д.
Продольный «канал» в подшивном потолке задает направление движения, привносит динамику и увеличивает перспективу
План после переустройства
Из подоконной зоны дизайн-радиатор перенесен на стену, он используется как арт-объект интерьера,
органично сочетается с дизайнерскими стульями и вносит дополнительную интригу в эстетику этномотивов
Современные светильники не противоречат массивной арабской люстре, напоминающей связку лампадок. Такая эклектика создает живой, самобытный, насыщенный эмоциями интерьер
План после переустройства
Пока комментариев нет. Начните обсуждение!