Шесть дизайн-проектов квартир в панельном доме серии 1605/12


Форма колонн бионическая, заимствована у природы. В
Подвесной светильник в виде ветки с регулировкой яркости помогает создать нужное настроение во время застолья
Выступ из гипсокартона над вытяжкой отделывают декоративной штукатуркой с неоднородной текстурой, созвучной мозаике "фартука". Так образуется пластичная скульптурная композиция на тему "очаг в пещере"
В
В
Под плиткой устроен теплый пол (хотя он и так кажется горячим благодаря оранжево-красному напольному покрытию)
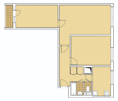
План до переустройства
План после переустройства

Сегодня мы познакомим читателей с перепланировкой двух- и трехкомнатной квартир в домах серии 1605/12 (решения по переустройству однокомнатной квартиры можно найти в архиве журнала на сайте
www.ivd.ru). Это 12-этажные панельные дома с наружными стенами из трехслойных 300-миллиметровых панелей. Внутренние стены и перегородки

Театр света и теней
|
|
Хозяева квартиры
Лаконичную стилистику, предложенную архитектором, можно отнести скорее к скандинавской манере
Перегородку между прихожей и спальней сносят и за счет уменьшения площади последней создают две одинаковые ниши для встроенных шкафов с полупрозрачными стеклянными дверцами. Один обращен лицевой стороной в прихожую, другой
Ванную и туалет объединяют. Перегородку между ванной и подсобным помещением при входе в квартиру сдвигают так, чтобы в нем поместилась только стиральная машина. В
В
Кухня
Большую комнату делят на кабинет и гостиную. Граница между ними
Меблировку кабинета составляют компьютерный стол, кресло и стеллаж. Понижение уровня потолка здесь позволяет встроить светильники, спрятать трансформаторы, а также служит дополнительным элементом зонирования. Аскетизм интерьера спальни подчеркнут минимальным количеством мебели и декора. Ложе размещают на полу, устроив подиум на всей площади помещения. Вместо кровати используют ортопедический матрас. Под подиумом можно хранить вещи
Проектная часть | 47 |
Авторский надзор | 13 |
Строительные и отделочные работы | 273 |
Строительные материалы (полы, стены, потолки, перегородки |
78 |
Вид конструкции | Материал | Количество | Стоимость, руб. |
---|---|---|---|
ПОЛЫ | |||
Прихожая, кухня | Керамическая плитка |
12,6 |
20 160 |
Ванная комната | Плитка Alessi ( |
3,2 |
3120 |
Остальное | Массивная доска Triumph Flooring | 26,9 |
57 300 |
СТЕНЫ | |||
Кухонный «фартук» | Плитка |
1,9 |
5370 |
Ванная комната | Плитка Alessi | 16,4 |
24 735 |
Остальное | Краска в/д Dulux ( |
16 |
7300 |
ПОТОЛКИ | |||
Весь объект | Краска в/д Dulux | 14 |
6020 |
ДВЕРИ (укомплектованные фурнитурой) | |||
Прихожая-коридор | Металлическая дверь |
1 шт. | 19 900 |
Остальное | Межкомнатные, откатная |
3 шт. | 33 700 |
САНТЕХНИКА | |||
Ванная комната | Ванна Toscane ( |
1 шт. | 11 728 |
Раковина Architec ( |
1 шт. | 5562 | |
Унитаз Starck 3 ( |
компл. | 19 040 | |
Душевой гарнитур Raindance S | 1 шт. | 4210 | |
Смеситель Loft ( |
1 шт. | 5590 | |
Полотенцесушитель 440 ( |
1 шт. | 6360 | |
ЭЛЕКТРОУСТАНОВОЧНОЕ ОБОРУДОВАНИЕ | |||
Весь объект | Розетки, выключатели |
30 шт. | 14 160 |
ОСВЕТИТЕЛЬНЫЕ ПРИБОРЫ | |||
Весь объект | Светильники Bruck, Ikea, Marbel, |
15 шт. | 61 200 |
МЕБЕЛЬ И ПРЕДМЕТЫ ИНТЕРЬЕРА (в том числе изготовленные на заказ) | |||
Прихожая- коридор, спальня | Комплектующие шкафов Ikea, дверцы (Россия) | компл. | 37 400 |
Прихожая- коридор | Зеркало Ikea, крючки (Россия) | 4 шт. | 4520 |
Полка для обуви Ikea | 1 шт. | 3900 | |
Кухня | Кухня «Стильные кухни», столешница | 2,4 пог. м | 44 520 |
Стол, полки |
7 шт. | 5900 | |
Стулья |
3 шт. | 25 800 | |
Гостиная, кабинет | Перегородка-ширма (дерево) | 8,4 |
11 750 |
Угловой диван-кровать "Британника" ( |
1 шт. | 59 000 | |
Кресло-мешок Urfin Jusse | 1 шт. | 4800 | |
Столик |
1 шт. | 18 240 | |
Модуль для техники (шпон, Россия) | 1 шт. | 7990 | |
Компьютерный стол, кресло |
1 шт. | 11 400 | |
Стеллаж, подоконники (на заказ) | 39 700 | ||
Спальня | Матрас «Орматек» | 1 шт. | 8000 |
Зеркало Ikea | 1 шт. | 1500 | |
Изголовье «кровати» (на заказ) | компл. | 4600 | |
ВСЕГО | 594 |
Серые цифры в гостиной и кухне воспринимаются как тени на белой стене от невидимых объектов
Над гарнитуром смонтировали полую конструкцию из ГКЛ, которая "работает" как вентканал
Легкий рисунок на стене, ненавязчивый, как тень, нанесен красками по трафарету. Он смягчает общий строгий стиль спальни. Изголовье "кровати" выполнено из деревянных брусков, закрепленных на стене
На белом фоне стен эффектно смотрятся фрагменты, выложенные оранжевой плиткой
План до переустройства
План после переустройства

Царство естественности
|
|
В
На лоджии устраивают "восточный уголок"
Чтобы сделать шкаф в прихожей, сносят перегородку и возводят новую из пеноблоков, сдвигая ее в комнату сына. В
Ванную комнату объединяют с туалетом. Вместо ванны устанавливают душевую кабину, что позволяет сэкономить площадь. В
Дверной проем между кухней и коридором демонтируют, благодаря чему в прихожей появляется естественное освещение. Гарнитур располагают вдоль одной стены, а у перегородки, отделяющей ванную комнату, устраивают неглубокую нишу с полками. В
Большую комнату разделяют на две части перегородкой из гипсобетонных блоков, поставленной под углом к стенам. В
Раздвижная дверь спальни выполнена из массива бука
Для гостиной подобрана мягкая мебель экспрессивного красно-оранжевого цвета
Организация пространства в комнате сына отличается эргономичной расстановкой мебели. У
Проектная часть | 64 |
Авторский надзор | 12 |
Строительные и отделочные работы | 390 |
Строительные материалы (полы, стены, потолки, перегородки |
119 |
Вид конструкции | Материал | Количество | Стоимость, руб. |
---|---|---|---|
ПОЛЫ | |||
Прихожая-коридор, кухня | Керамическая плитка Fusion (Fontana Bismantova) | 11,6 |
9976 |
Ванная комната | Керамическая плитка Forma ( |
3,8 |
6150 |
Остальное | Паркетная доска |
32,7 |
57 225 |
СТЕНЫ | |||
Кухонный «фартук» | Керамическая плитка Forma | 2,64 |
3200 |
Ванная комната | Керамическая плитка Forma | 20 |
24 380 |
Гостиная, спальня | Бумажные обои (фотопечать) | 7 рулонов | 6500 |
Комната сына | Тканевые обои (Франция) | 2 рулона | 1820 |
Остальное | Краска в/д Caparol | 22 |
5100 |
ПОТОЛКИ | |||
Весь объект | Краска в/д Caparol | 14 |
3220 |
ДВЕРИ (укомплектованные фурнитурой) | |||
Прихожая-коридор | Металлическая дверь |
1 шт. | 23 560 |
Остальное | Межкомнатные, раздвижная (Россия) | 4 шт. | 54 640 |
САНТЕХНИКА | |||
Ванная комната | Умывальник Foro ( |
1 шт. | 3600 |
Подвесной унитаз Grand, инсталляция |
компл. | 6070 | |
Столешница Staron ( |
0,87 |
13 900 | |
Душевой поддон Hatria, душевая дверь Arte 8 (Dorff) | компл. | 14 900 | |
Водяной полотенцесушитель (Россия) | 1 шт. | 5800 | |
Ванная комната, кухня | Смесители, душевой гарнитур |
3 компл. | 14 900 |
ЭЛЕКТРОУСТАНОВОЧНОЕ ОБОРУДОВАНИЕ | |||
Весь объект | Розетки, выключатели |
31 шт. | 7680 |
ОСВЕТИТЕЛЬНЫЕ ПРИБОРЫ | |||
Весь объект | Светильники (Италия, Россия) | 22 шт. | 76 580 |
МЕБЕЛЬ И ПРЕДМЕТЫ ИНТЕРЬЕРА (в том числе изготовленные на заказ) | |||
Весь объект | Комплектующие шкафов, столешницы, стеллажи, подиум, тумбы, кровать, зеркало с полкой |
компл. | 140 850 |
Кухня | Кухня |
2,5 пог. м | 46 400 |
Стол, стулья |
4 шт. | 24 700 | |
Прихожая-коридор, гостиная | Диван, пуфы |
3 шт. | 40 800 |
Спальня | Матрас «Орматек» (на заказ) | 1 шт. | 21 800 |
Комната сына | Кресло IKEA | 1 шт. | 9800 |
Матрас "Орматек", подушки |
26 900 | ||
ВСЕГО | 650 |
Природная тема задана рисунком фотообоев с березовой рощей, а также применением натурального дерева
Именно детали создают нужную атмосферу: подоконник на лоджии заменяют массивной доской, которая сочетается с паркетом
Радиатор в спальне предлагается перенести
План до переустройства
План после переустройства

Лимонно-желтая фантазия
|
|
Этот проект адресован супругам в возрасте за 40 (их дети живут отдельно). Они любят природу, путешествуют по теплым странам. Интерьер гостиной, являющейся центром всей жизни семьи, решен как средиземноморская терраса, напоенная солнечным светом и ароматом цитрусовых. С
В
Ванную и туалет объединяют; частью этого помещения становится и кладовая, где в нише ставят стиральную машину. Взамен ванны монтируют поддон для душа и шторки. Стены душевой покрывают сине-голубой мозаикой, которая хорошо сочетается со светло-лимонными окрашенными стенами и керамогранитом песочного цвета на полу. Необычный акцент в наивном стиле
В
Обеденный стол со стеклянной столешницей в деревянной рамке стоит в гостиной-столовой у окна. Эта зона выделена тюлевыми драпировками стен от пола до потолка, крепящимися к угловому карнизу с подсветкой.
Зона отдыха в гостиной
Мотивы жаркого лета активно используют и в спальне: окрашенные в солнечно-желтый цвет стены, такие же подушки, прозрачные воздушные драпировки и белая корпусная мебель. Кровать устанавливают в углу и разворачивают на 30
Проектная часть | 61 |
Авторский надзор | 35 |
Строительные и отделочные работы | 340 |
Строительные материалы (полы, стены, потолки, перегородки |
100 |
Вид конструкции | Материал | Количество | Стоимость, руб. |
---|---|---|---|
ПОЛЫ | |||
Прихожая-коридор, кухня | Керамическая плитка |
10,6 |
5700 |
Ванная комната | Керамогранит Kerama |
3,8 |
1330 |
Лоджия | Керамогранит «Сокол» | 6 |
3600 |
Остальное | Паркетная доска Grabo | 29,8 |
35 900 |
СТЕНЫ | |||
Гостиная-столовая, спальня | Обои под покраску Erismann | 8 | 5200 |
Кухонный «фартук» | Керамическая плитка |
1,8 |
1850 |
Ванная комната | Плитка Kerama |
12,5 |
8500 |
Мозаика Bars Crystal Mosaic | 7,4 |
8732 | |
Лоджия | Декоративный камень Kamrock | 4,3 |
4220 |
Остальное | Краска в/д Pittsburgh paints | 18 |
4200 |
ПОТОЛКИ | |||
Ванная комната | Натяжной потолок Ideal | 3,8 |
11 220 |
Остальное | Краска в/д Pittsburgh paints | 12 |
2600 |
ДВЕРИ (укомплектованные фурнитурой) | |||
Прихожая-коридор | Стальная дверь Gardian | 1 шт. | 23 250 |
Остальное | Раздвижная, межкомнатные |
5 шт. | 59 360 |
САНТЕХНИКА | |||
Ванная комната | Душевой поддон Ravak, дверцы (Чехия) | 11 740 | |
Умывальник, подвесной унитаз |
3 шт. | 22 600 | |
Душевой гарнитур, смеситель Kludi | 2 шт. | 7200 | |
ЭЛЕКТРОУСТАНОВОЧНОЕ ОБОРУДОВАНИЕ | |||
Весь объект | Розетки, выключатели |
28 шт. | 8960 |
ОСВЕТИТЕЛЬНЫЕ ПРИБОРЫ | |||
Весь объект | Светильники | 52 шт. | 52 615 |
МЕБЕЛЬ И ПРЕДМЕТЫ ИНТЕРЬЕРА (в том числе изготовленные на заказ) | |||
Прихожая-коридор, спальня | Диванчик (на заказ), комод, комплектующие, дверцы, зеркало, шкаф |
109 744 | |
Кухня | Кухня |
5,2 пог. м | 66 000 |
Гостиная-столовая | Стол, стулья |
5 шт. | 31 050 |
Диваны Anderssen | 2 шт. | 40 100 | |
Журнальный столик «Атлантик-СТ» | 1 шт. | 5680 | |
Изготовление стеллажа (MDF, бук) | компл. | 12 450 | |
Спальня | Кровать, стол с тумбой (Россия), кресло (Италия) | компл. | 78 300 |
Спальня, гостиная-столовая | Текстиль, шторы | 46 420 | |
ВСЕГО | 664 |
Стены столовой зоны полностью задрапированы светло-кремовым тюлем, что делает интерьер более уютным и теплым
Развернутая под углом кровать оживляет прямоугольные очертания спальни, позволяет любоваться видами из окна и ловить солнечные зайчики
План до переустройства
План после переустройства

Все смешалось в доме...
|
|
Предлагаемая трехкомнатная квартира рассчитана на трех человек
Авторы проекта выбрали для типовой квартиры эклектичный стиль. Интерьер как лоскутное одеяло, он состоит из разнохарактерных фрагментов: где-то смелые цветовые сочетания, а где-то типовые решения. Например, в кухне появляется холодильник, на дверце которого нарисован английский флаг; в спальне
Акценты расставлены с учетом эргономики небольшого пространства квартиры и возможностей применения современных технологий. Так, вместо традиционного обеденного стола в кухне используют столешницу, которую объединяют с подоконником. Дверцы шкафчиков заменяют шторками. В
Перепланировка затрагивает несущие конструкции и требует переноса ряда коммуникаций. Во-первых, вход в кухню организуют из гостиной, для чего в капитальной стене делают открытый проем шириной 80
От понижения уровня потолков отказываются, чтобы сохранить высоту помещений. Только в кухне, над столешницей, его делают подшивным и опускают на 12
Для отделки стен в гостиной и детской используют обои, в спальне и коридоре
Все комнаты становятся изолированными. Войти в них можно из широкого (1,9
Туалет и ванную комнату совмещают и расширяют за счет коридора, ведущего в кухню. Здесь дополнительно устраивают душевую и отгораживают уголок для стиральной машины и системы хранения. Душевая представляет собой акриловый полукруглый поддон с тканевой шторкой на металлической штанге. Под столешницей умывальника остается еще немного места, чтобы поставить корзину для белья.
У
В
Автор проекта предлагает чехлы для матраса и подушек сшить из джинсовой ткани. Она подходит как для «зимнего», так и для «летнего» интерьера.
Вместо обычного туалетного столика с трюмо слева от входа "собирают" целую зеркальную стену от пола до потолка, снабженную полочкой из зеркальных же модулей размером 30
Обстановка детской рассчитана на возможные изменения состава семьи в будущем (появление второго ребенка). Под кроватью-чердаком легко сделать еще одно спальное место, а пока здесь можно хранить вещи. В
Кухня напоминает небольшое семейное кафе, где "в тесноте да не в обиде" встречаются старые знакомые. Высота модифицированного подоконника позволяет устроить здесь обеденную столешницу. От традиционных мебельных фасадов (посуды ведь немного) решено отказаться), заменив их драпировками. В
Обеденную столешницу-подоконник и рабочую столешницу кухни выполняют из непористого композитного материала Montelli (
В
Проектная часть, авторский надзор | 250 |
Строительные и отделочные работы | 388 |
Строительные материалы (полы, стены, потолки, перегородки |
152 |
Вид конструкции | Материал | Количество | Стоимость, руб. |
---|---|---|---|
ПОЛЫ | |||
Кухня | Керамогранит Porcelanoza | 6,5 |
8000 |
Ванная, лоджия | Плитка Kerama |
7,7 |
6260 |
Гостиная | Массивная доска (дуб) «Волжская» | 13,3 |
27 800 |
Остальное | Паркетная доска (клен, дуб) Karelia | 37,7 |
57 370 |
СТЕНЫ | |||
Кухонный «фартук» | Мозаика |
2,4 |
5800 |
Ванная комната | Плитка Kerama |
22,5 |
10 600 |
Гостиная | Флизелиновые обои (Германия) | 5 рулонов | 16 320 |
Детская | Виниловые обои |
8 рулонов | 4000 |
Остальное | Краска в/д |
27 |
5370 |
ПОТОЛКИ | |||
Весь объект | Краска в/д |
16 |
3180 |
ДВЕРИ (укомплектованные фурнитурой) | |||
Прихожая | Стальная дверь Mul-T-Lock | 1 шт. | 37 990 |
Остальное | Межкомнатные |
5 шт. | 125 330 |
САНТЕХНИКА | |||
Ванная комната | Ванна с г/м |
1 шт. | 40 500 |
Умывальник |
1 шт. | 13 600 | |
Унитаз |
компл. | 19 380 | |
Поддон, душевая шторка |
компл. | 14 500 | |
Смесители, душевой гарнитур |
3 компл. | 16 500 | |
Полотенцесушитель Terma 180-12 | 1 шт. | 5070 | |
ЭЛЕКТРОУСТАНОВОЧНОЕ ОБОРУДОВАНИЕ | |||
Весь объект | Розетки, выключатели |
65 000 | |
ОСВЕТИТЕЛЬНЫЕ ПРИБОРЫ | |||
Весь объект | Светильники (Германия, Италия) | 27 шт. | 58 160 |
МЕБЕЛЬ И ПРЕДМЕТЫ ИНТЕРЬЕРА (в том числе изготовленные на заказ) | |||
Весь объект | Комплектующие, шкаф, каркас кровати, стеллажи, столешница | компл. | 143 400 |
Кухня | Полки (дерево), столешница Montelli | 3,7 пог. м | 34 900 |
Барные стулья (Италия) | 3 шт. | 7700 | |
Гостиная | Раскладной диван Ligne Roset | 1 шт. | 132 100 |
Кресло (Белоруссия), столик (Италия) | 2 шт. | 29 850 | |
Спальня | Кресло Ligne Roset, зеркала (Чехия) | 37 100 | |
Детская | Кровать-чердак, шкафы |
2 шт. | 23 600 |
Столешница, опора, кресло |
компл. | 12 700 | |
Спортивный комплекс (Россия) | компл. | 4200 | |
ВСЕГО | 966 |
На такой кровати, как в чил-ауте, можно и спать с комфортом, и принимать гостей, сидя по-турецки,
Совсем не обязательно покупать радиатор ярко-желтого цвета (в тон обстановке комнаты)
Мобильная лампа







Квадратура круга
|
|
Проект предназначен для большой семьи. Чтобы изолировать обе cпальни, перпендикулярно стене коридора устанавливают перегородку из гипсобетонных блоков и ГКЛ. Ее торец со стороны гостиной скругляют. В
Проектная часть | 88 |
Авторский надзор | 10 |
Строительные и отделочные работы | 460 300 |
Строительные материалы (полы, стены, потолки, перегородки |
150 |
Вид конструкции | Материал | Количество | Стоимость, руб. |
---|---|---|---|
Полы | |||
Прихожая, кухня | Керамогранит Marmol Kali ( |
13,7 |
12 200 |
Ванная, лоджия | Керамогранит |
6,1 |
6710 |
Остальное | Паркетная доска Paria | 46,6 |
50 120 |
СТЕНЫ | |||
Прихожая, коридор, гостиная, гардеробная | Обои под покраску Erfurt | 6 рулонов | 5000 |
Краска в/д |
6 |
1150 | |
Детская, спальня, кухня | Флизелиновые обои |
9 рулонов | 4800 |
Ванная комната | Керамическая плитка |
16,5 |
19 800 |
ПОТОЛКИ | |||
Ванная комната, кухня | Натяжной потолок Batiste | 6,9 |
14 700 |
Остальное | Краска в/д |
16 |
4160 |
ДВЕРИ (укомплектованные фурнитурой) | |||
Прихожая | Стальная дверь |
1 шт. | 24 750 |
Остальное | Межкомнатные |
3 шт. | 43 500 |
САНТЕХНИКА | |||
Ванная комната | Акриловая ванна, умывальник, унитаз |
3 шт. | 38 800 |
полотенцесушитель «Сунержа» | 1 шт. | 6400 | |
Смеситель, душевой гарнитур |
2 компл. | 12 400 | |
ЭЛЕКТРОУСТАНОВОЧНОЕ ОБОРУДОВАНИЕ | |||
Весь объект | Розетки, выключатели |
40 шт. | 13 600 |
ОСВЕТИТЕЛЬНЫЕ ПРИБОРЫ | |||
Весь объект | Светильники Powerline 300, Quality line ( |
39 шт. | 67 000 |
МЕБЕЛЬ И ПРЕДМЕТЫ ИНТЕРЬЕРА (в том числе изготовленные на заказ) | |||
Прихожая, гардеробная | Комплектующие гардеробной, шкаф |
62 500 | |
Кухня | Кухня |
2,3 пог. м | 52 000 |
Стол, стулья |
4 шт. | 36 310 | |
Гостиная | Угловой диван (Италия) | 1 шт. | 124 550 |
Модульная композиция |
компл. | 60 000 | |
Спальня | Кровать, тумбы, шкаф |
компл. | 79 400 |
Детская | Кровать-чердак, шкафы, столы, тумбы, полки (Россия) | компл. | 100 500 |
Диван «Инт» | 1 шт. | 28 000 | |
Лоджия | Стол, стул |
2 шт. | 10 830 |
ВСЕГО | 879 |
Потолочные светильники струнной системы и декоративные панно с подсветкой в рамах крепят враспор на металлических струнах-растяжках
Роль перегородки как композиционного центра интерьера подчеркивает конструкция потолочного элемента в форме круга. Линия границы керамогранита и паркетной доски имеет вид дуги, что требует ювелирной обработки материалов и идеального стыка между ними
Симметричную планировку прихожей продолжает коридор: в пониженный потолок и в пол встроены светильники, равномерно освещающие входную зону. В
Такая обстановка позволит детям с небольшой разницей в возрасте вместе играть, помогать друг другу заниматься. Можно даже меняться спальными местами
План до переустройства
План после переустройства

Вслед за солнцем
|
|
Этот пронизанный и согретый солнечными лучами интерьер дизайнер предназначает для супружеской пары с дочкой-старшеклассницей. Незначительная перепланировка направлена на создание комфорта и улучшение геометрии помещений. Так, часть длинного коридора включают в пространство гостиной и «растворяют» в нем, а в конце устраивают вместительную кладовую. Углы стен и помещений скругляют и, где это возможно (в прихожей, рядом с кладовой), делают полукруглые ниши с полками и подсветкой.
Дизайн всех комнат совмещает мотивы марокканского, колониального стилей и поп-арта (грубые оштукатуренные поверхности в духе африканского примитивизма и натуральное дерево
Небольшая прихожая не кажется тесной, так как плавно переходит в гостиную. Напольное зеркало в деревянной раме слева от входа визуально расширяет пространство; оно не жестко прикреплено к стене, при желании его можно передвинуть. Шкаф-купе для верхней одежды располагают в коридорчике перед ванной. Для него сооружают стенку, которая образует вместе с венткоробом нишу глубиной 63
Ванную комнату, объединенную с туалетом, облицовывают белой глянцевой плиткой. Яркие акценты (плитка с растительным рисунком из ирисов) украшают технический короб. им вторят бордюры по периметру помещения. Подвесной унитаз с встроенной системой инсталляции разворачивают и перемещают ближе к входу. Игра на контрастах определяет выбор сантехники
Прямоугольный план гостиной смягчают благодаря расположению мебели по линии дуги. Эту зону формируют колонны, "поддерживающие" криволинейный потолок из ГКЛ. В
В
У
Проектная часть | 59 |
Авторский надзор | 28 |
Строительные и отделочные работы | 470 |
Строительные материалы (полы, стены, потолки, перегородки |
153 |
Вид конструкции | Материал | Количество | Стоимость, руб. |
---|---|---|---|
ПОЛЫ | |||
Детская | Ковролин Domo | 11,5 |
13 800 |
Ванная комната | Плитка |
3,1 |
7400 |
Остальное | Керамическая плитка Imola Ceramica | 14,7 |
17 710 |
Ламинат Alloc | 48,7 |
47 630 | |
СТЕНЫ | |||
Кухонный «фартук» | Мозаика (Китай) | 3,6 |
7640 |
Ванная, кухня | Плитка |
24,5 |
47 130 |
Детская | Обои Eco Tapeter | 7 рулонов | 8760 |
Спальня | Текстильные обои |
5 рулонов | 16 300 |
Обои |
3 рулона | 11 200 | |
Кладовая | Обои под покраску |
1 рулон | 400 |
Остальное | Штукатурка Sherwin-Williams | 43 |
38 270 |
ПОТОЛКИ | |||
Весь объект | Краска в/д Sherwin-Williams | 28 |
4760 |
ДВЕРИ (укомплектованные фурнитурой) | |||
Прихожая | Стальная дверь «Форпост» | 1 шт. | 24 200 |
Весь объект | Межкомнатные |
5 шт. | 56 980 |
САНТЕХНИКА | |||
Ванная комната | Чугунная ванна Gala | 1 шт. | 10 400 |
Стеклянный умывальник с полочкой | 1 шт. | 6900 | |
Унитаз, инсталляция |
компл. | 10 200 | |
Полотенцесушитель «Арго» | 1 шт. | 6420 | |
Ванная, кухня | Душевая стойка, смесители |
3 компл. | 23 000 |
ЭЛЕКТРОУСТАНОВОЧНОЕ ОБОРУДОВАНИЕ | |||
Весь объект | Розетки, выключатели |
42 шт. | 18 200 |
ОСВЕТИТЕЛЬНЫЕ ПРИБОРЫ | |||
Весь объект | Светильники (Италия, Испания) | 48 шт. | 83 000 |
МЕБЕЛЬ И ПРЕДМЕТЫ ИНТЕРЬЕРА (в том числе изготовленные на заказ) | |||
Весь объект | Шкафы, дверцы, стеллажи |
компл. | 89 800 |
Кухня | Кухня "Ликарион", столешница Hi-Macs ( |
4,8 пог. м | 78 900 |
Барные стулья (Китай) | 3 шт. | 6360 | |
Гостиная-столовая, коридор | Диван "Ле Бурже" ( |
компл. | 49 870 |
Стол, стулья, буфет |
6 шт. | 51 900 | |
Стул (Россия), столик, тумба, стеллаж | 4 шт. | 18 600 | |
Изготовление колонн (гипс) (Россия) | 6 шт. | 113 900 | |
Спальня | Кровать, столики |
компл. | 49 650 |
Кресло «Цехъ», зеркало (Россия) | 2 шт. | 31 800 | |
Детская | Корпусная мебель «Эдем» | компл. | 90 800 |
Кресло «Цехъ», стол, кресло | 3 шт. | 43 300 | |
Лоджия | Шкаф IKEA | 1 шт. | 7200 |
ВСЕГО | 1 |
- Источник: Журнал «Идеи вашего дома»№104
Пока комментариев нет. Начните обсуждение!