Каркасный дом своими руками: пошаговая инструкция и полезные советы
Быстро собрать правильный каркасный дом своими руками поможет пошаговая инструкция ниже. Рассказываем об основных этапах создания теплого, уютного и надежного дома с минимальными затратами.
Все о сборке каркасного дома
Выбор проекта
Этапы строительства
— Фундамент
— Черновой пол
— Каркас стен
— Обшивка
— Крыша
— Окна и двери
— Коммуникации
Сроки финишной отделки
Выбор проекта и уведомление о строительстве
Строительство каркасника начинается с выбора проекта. Это не просто планировка. Вам понадобятся несколько документов:
- схема участка — показывает границы участка, размеры и место дома на нем с отступами от границ;
- дизайн-проект с планировками — схемы всех комнат с мебелью, сантехникой, светильниками, точными размерами;
- рабочие чертежи отдельно для стен, фундамента, пола и крыши — помогают рассчитать количество строительных материалов, убедиться, что конструкции выдержат нагрузку;
- проект газификации — если вы планируете подключать газ, обратитесь в газораспределяющую службу до начала строительства, чтобы узнать требования к котельной и вентиляции, разметить вводы в дом;
- проекты водопровода, канализации, электропроводки, вентиляции — с указанием точек вывода труб, розеток, вентканалов на планировке, их диаметрами, типом, количеством;
- смета — готовится по каждому рабочему чертежу и проектам коммуникаций, включает перечень всех материалов с ценами — от бруса до гвоздя.
Отдельно нужно подготовить документы для уведомления местных властей о начале строительства. Уведомление можно подать через Госуслуги или МФЦ.
- Дизайн-проект удобно делать в специальной программе. Есть бесплатные популярные.
- Рабочие чертежи и сметы можно подготовить в бесплатных калькуляторах каркасных домов.
- Для подачи уведомления нужен план с отступами от границ, соседских и собственных построек. Отступы от соседнего дома, бани, септика, дороги регулируют строительные правила. Перед подачей уведомления проконсультируйтесь с архитектором, чтобы убедиться, что все отступы на вашем плане сделаны верно.
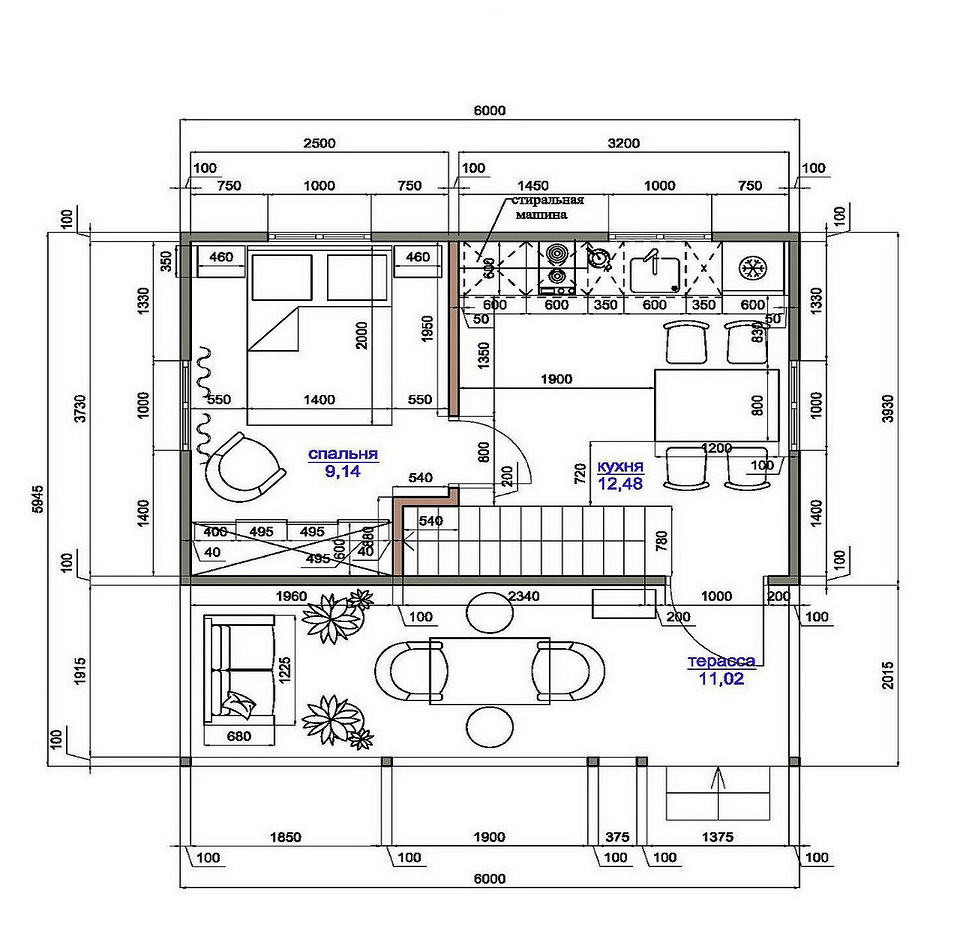
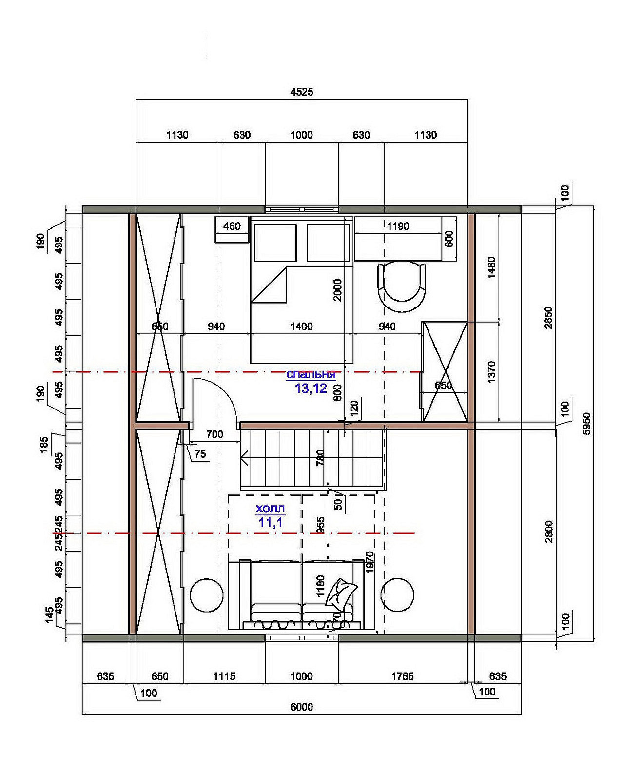
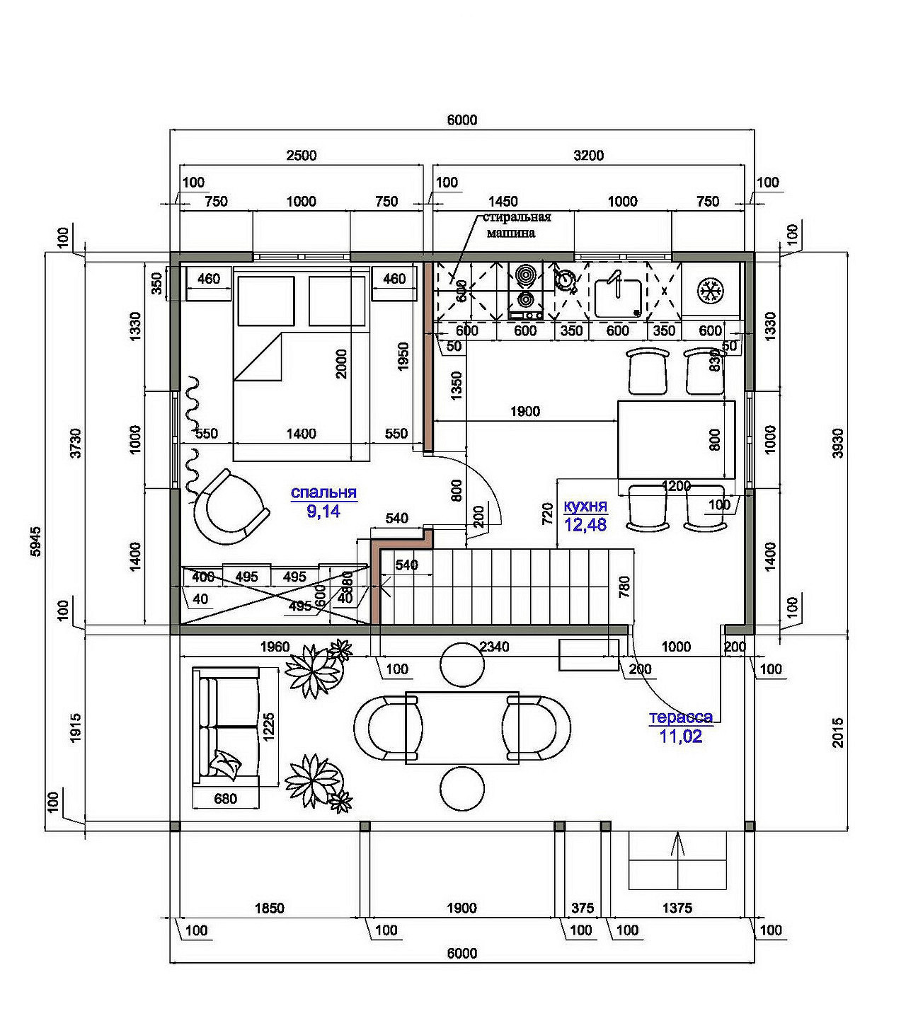
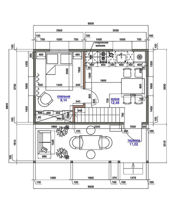
Готовые чертежи и планировки тоже стоит показать опытному архитектору, схему проводки — электрику и т.д. Ошибки в проектах могут дорого обойтись во время строительства. Собрали в галерее примеры удачных планировок каркасников для жизни и летнего отдыха.
Как собрать каркасный дом: план действий
Даже у начинающих строителей сборка каркасника редко занимает больше 3 месяцев. Самое главное — четко придерживаться инструкции и не отступать от проекта.
Фундамент
Выбор фундамента для каркасника зависит от типа грунта на участке. Нужно оценить его рыхлость, глубину промерзания зимой, близость грунтовых вод к поверхности. Для этого стоит заказать профессиональную геологию грунта. Поставив фундамент без этого исследования, вы рискуете столкнуться с трещинами в стенах уже через год.
- стальные винтовые сваи с антикоррозионным покрытием;
- железобетонные сваи, залитые в пробуренные в земле скважины;
- лента из армированного бетона по периметру постройки;
- монолитная бетонная плита под всей постройкой;
- УШП — монолитная бетонная плита, уложенная не на грунт, а на слой утеплителя, в которую замурованы трубы водопровода и канализации, а также система обогрева;
- столбы из кирпича или бетонных блоков, уложенные в неглубокие ямки.
- Сезонность работ. Железобетонные сваи, ленты и плиты заливают в теплое время года. Есть технологии зимней заливки бетона, но они увеличивают стоимость работ. Столбы и металлические сваи можно ставить в любое время, но в теплый сезон гораздо удобнее.
- Устойчивость. Для близких грунтовых вод рекомендуют винтовые сваи или плиту. Они не дадут стенам потрескаться, даже если оттаявший грунт весной придет в движение. Лента, ж/б сваи, столбы — вариант для сухого, ровного участка с плотным грунтом и низким залеганием грунтовых вод.
- Возможность сделать цоколь или подвал. Будет только при плиточном или ленточном фундаменте. Сваи и столбы оставят под домом пустое пространство, которое нужно чем-то заполнить и закрыть для утепления.
- Возможность регистрации дома как жилого. Строения на столбах считаются временными. В них нельзя оформить постоянную регистрацию. Остальные фундаменты капитальные.
- Тип чистового пола. Под бетонную стяжку с тяжелым керамогранитом лучше положить плиту. Линолеум, ламинат, инженерную доску выдержат и столбы.
- Для устройства ленточного и плитного фундамента нужно снять весь рыхлый плодородный слой грунта до плотного, сделать отмостки из фанеры, утрамбовать площадку внутри них и засыпать песком и гравием. Затем установить арматуру и залить сверху бетоном. Без специальной техники и людей, которые умеют с ней работать, залить бетон невозможно.
- Винтовые сваи вкручивают прямо в грунт, иногда заливая внутри бетоном, после чего засыпают площадку между ними песком, который трамбуют. Тяжелая техника для этого не нужна. Но работать должны минимум 2 физически крепких человека.
- Под ж/б сваи землю бурят, затем заливая пустоты бетоном по арматуре. Понадобится специальное оборудование.
- Под столбы достаточно снять плодородный слой и уплотнить площадку в местах установки. Это можно сделать в одиночку, без специального оборудования.
- Для легкой каркасной дачи идеальны металлические сваи, могут подойти столбы из блоков.
- Для просторного дома для постоянного проживания идеальна монолитная плита, может подойти ленточный фундамент.
- Нельзя выбирать фундамент без проведения геологического исследования.
Обвязка и черновой пол
Инструкция ниже рассказывает, как построить каркасный дом на сваях. Здание на плите или ленте собирают по той же схеме. Инструкция будет немного отличаться лишь для постройки с подвалом или цокольным этажом.
Черновой пол на сваях будет постоянно впитывать влагу из земли. Поэтому очень важно защитить его от сырости.
- Между обвязкой и сваями прокладывают рубероид или другую гидроизоляцию.
- Все деревянные элементы предварительно обрабатывают антисептиками.
- Все металлические элементы должны быть оцинкованными, нержавеющими или с другим защитным покрытием.
Черновой пол начинают монтировать со сборки обвязки. Это рама из бруса, закрепленная поверх всех свай. К верхушкам свай ее крепят анкерами, между собой брусья соединяют металлическими пластинами на саморезах, скобами или длинными гвоздями. Перед креплением горизонталь обвязки обязательно проверяют уровнем.
- В обвязке укладывают балки с шагом в 30 см. Их можно располагать в любом направлении, но лучше вдоль длинной стороны дома. К обвязке балки крепят металлическими уголками на саморезах. Перед креплением их тоже проверяют уровнем.
- Снизу пространство между балками закрывают гидроизоляцией, например полиэтиленовой пленкой или рубероидом. Ее подшивают досками или фанерой, укладывая их под балками, поперек им. Между досками не должно быть больших зазоров, но допустим промежуток до 3 мм для компенсации температурных расширений.
- Поверх гидроизоляции укладывают теплоизоляцию. Для дома на сваях лучше выбрать XPS (экструзионный пенополистирол) или напыление из пенополиуретана. Минеральная вата перестает защищать от холода, когда промокает, а керамзит слишком тяжелый. Общая толщина теплоизоляции в доме для постоянного проживания — не меньше 200 мм. Лучше выбрать тонкие плиты XPS по 50 мм и уложить их в 4 слоя, чем 1-2 толстых. Слои всегда укладывают поперек друг другу.
- Сверху теплоизоляцию закрывают пароизоляцией, проклеивая ее стыки защитной лентой. Поверх пароизоляции можно сразу делать чистовой пол. Но лучше до сборки стен и крыши накрыть ее фанерой, не закрывая обвязку. На фанере удобнее собирать стены.
Каркас
В рабочих чертежах каркасного дома должна быть схема каждой стены. Все они будут состоять из нескольких основных элементов:
- нижняя обвязка — ее кладут поверх нижней обвязки фундамента;
- основные стойки — вертикальные балки, которые ставят с шагом примерно 600 мм на нижнюю обвязку;
- верхняя обвязка — состоит из двух горизонтальных балок, одной соединяют стойки, вторая, поверх нее, служит опорой для стропильной системы и чернового пола перекрытий;
- ригели или хидеры — толстые горизонтальные балки, часто сбитые из двух-трех, которыми укрепляют дверные и оконные проемы снизу и сверху;
- подоконные стойки — короткие вертикальные балки, соединяющие ригели с верхней и нижней обвязкой;
- укосины — перфорированные металлические ленты или доски, идущие по диагонали от верхней до нижней обвязки через несколько стоек, не обязательны при обшивке стен фанерой или другим листовым материалом с высокой жесткостью.
Между собой элементы соединяют с помощью нескольких ершеных гвоздей, металлических пластин или уголков на конструкционных саморезах.
Как сделать каркасный дом своими руками? Начинающим, работающим в одиночку, советуют собирать каждую стену на черновом полу, а затем поднимать и крепить к обвязке фундамента. Возможно, вам придется позвать помощников или арендовать «удочку» для подъема стены. Но при сборке на полу вы увидите расхождения в размерах еще до того, как закрепите хотя бы один элемент. Другая технология — установка нижней обвязки для одной стены и поэтапное крепление стоек к ней слева направо.
- Возьмите рабочий чертеж для одной стены.
- Подготовьте все ее узлы. Убедитесь, что они нарезаны в размер, обработаны антисептиком, высушены.
- Положите на черновой пол вдоль обвязки фундамента нижнюю обвязку.
- Начните прикладывать к ней стойки с шагом 600 мм или другим, указанным на плане. Отмечайте их расположение.
- Поставьте в нужных участках ригели.
- Положите сверху нижнюю часть верхней обвязки.
- Разложив все узлы, проверьте, что они занимают пространство точно от угла до угла. Проверьте уровнем углы, горизонтали и вертикали каркаса.
- Если все в порядке, сбейте все элементы гвоздями между собой, после каждого узла проверяя уровнем горизонтали и вертикали.
- Укрепите каждые 2-3 стойки без окон и дверей укосинами, идущими от обвязки до обвязки.
- Поднимите стену и закрепите на обвязке фундамента с помощью гвоздей. Подоприте распорками снизу. Вы уберете их, когда свяжете все углы.
Самая важная часть сборки каркаса — соединение углов. На них приходится максимальная нагрузка, их сложно утеплить.
- Две крайние стойки стены сходятся под углом 90 градусов. Открытая часть получившейся буквы Г должна смотреть на улицу.
- К букве Г снаружи добавляют еще одну планку, равную по высоте стойке, чтобы получить букву П.
- Планку прибивают к крайним стойкам, верхней и нижней обвязке.
- При обшивке фасада образовавшуюся полость заполняют утеплителем, который не дает холоду проникать через щели в углах.
Есть технология, которая предлагает начинать сборку стен с установки широких брусков в каждом углу. Каждая стена, в свою очередь, крепится к ним. Такое решение обеспечивает устойчивость, но делает дом холоднее. Утеплить такой угол гораздо сложнее.
Внутренние перегородки собирают по той же инструкции. После сборки всех стен на 1 этаже укладывают верхнюю часть верхней обвязки и монтируют перекрытие. Технология та же, что при укладке чернового пола на первом этаже, но нужно предусмотреть пустое пространство для выхода лестницы. Стены второго этажа собирают по той же методике, что и на первом. Поднимать стойки можно с помощью блочной системы или по приставным лестницам, закрепленным на каркасе.
Нужно ли укладывать утеплитель в межэтажное перекрытие? Под чердаком — обязательно для защиты от холода. Между первым и вторым этажом — желательно, для защиты от шума. В качестве утеплителя лучше использовать негорючую минеральную вату. Слой между этажами можно уменьшить до 50 мм.
Обшивка стен
В каркасном доме будет комфортно даже в самую суровую зиму, если утепление сделано по правилам.
- утеплитель между стойками — 150-200 мм толщиной для зимы в средней полосе;
- гидроветроизоляцию поверх всего каркаса и утеплителя;
- жесткие плиты для защиты от ветра и повышения прочности;
- обрешетку для создания вентзазора;
- декоративную обшивку.
Обшивку каркасника начинают изнутри, а не снаружи.
- Внутренние стены закрывают пароизоляционной мембраной, которую прибивают к каркасу гвоздями или металлическими скобами. Можно сразу закрепить мембрану обрешеткой под будущее чистовое покрытие, предварительно рассчитав ее шаг. Стыки листов проклеивают защитной влагонепроницаемой лентой.
- Закрыв стены внутри, укладывают утеплитель между стойками каркаса. Его кладут вертикально, снизу вверх, в шахматном порядке, чтобы стыки плит смещались. Если утеплитель кладут в несколько слоев, то следующий располагают поперек предыдущего. Пустот между стойками остаться не должно. Даже маленькие щели нужно заделать специальной пеной или закрыть обрезками плит.
- Поверх утеплителя и стоек каркаса прибивают гидроветроизоляционную мембрану. Она должна закрыть все пространство стены без промежутков. Стыки между листами тоже проклеивают.
- Через пленку на стойки прибивают листовой материал — влагостойкие плиты ОСБ, ГКЛ, ЦСП или фанеру. Их крепят гвоздями с шагом в 150-200 мм к каждой стойке по вертикали, в том числе к промежуточным подоконным.
- На плиты укладывают ветрозащиту, выпускающую пар наружу. Ее крепят вертикальными деревянными планками или металлическим профилем, который монтируют с шагом 30-40 см.
- На профиль крепят декоративную облицовку — сайдинг, сэндвич-панели. Последний вариант обеспечивает дополнительную защиту от холода.
Чтобы каркасный дом прослужил долго, нужно защитить внутренний слой утеплителя и каркас от влажности. Рассчитать оптимальную толщину утепления, паро- и влагозащиты поможет бесплатный онлайн-калькулятор точки росы. Укажите в нем все материалы пирога стен при проектировании и меняйте параметры до тех пор, пока точка росы не окажется за пределами утеплителя и каркаса.
Крыша
Методика сборки стропил зависит от типа крыши.
- Уложите черновой пол чердака, по которому безопасно ходить.
- Закрепите поверх верхней обвязки чердака дополнительный опорный брус.
- Измерьте длину каждого фронтона, найдите их центры и натяните между ними нить.
- Проложите по полу вдоль нити опорную балку, зафиксируйте на опорных балках перекрытия.
- Разложите вдоль балки стойки — высота зависит от выбранного угла наклона, ее нужно рассчитать при разработке проекта.
- Разместите стойки с шагом 50-60 см, проверьте их горизонталь и одинаковую высоту, прибейте сверху конек — длинный горизонтальный брус.
- Поднимите стойки с коньком, закрепите на опорной балке, поставьте временные подпорки сбоку.
- Проверьте уровнем, что конек лежит параллельно балке.
- Возьмите 2 стропила. Приложите каждое к коньку по очереди, чтобы определить точный угол запила для стыковки, а также проверить длину. Стропила должны с каждой стороны нависать над стеной минимум на 50 см. Свес должен быть примерно одинаковый по всему периметру крыши.
- Запилив стропила, прибейте их к коньку и опорному брусу по периметру чердака гвоздями.
- Под коньком соедините стропила металлической пластиной на саморезах.
- Вначале поставьте стропила у одного фронтона, затем у другого. Затем двигайтесь от одного края к другому с шагом, заданным в проекте.
- После установки всех стропил укрепите их поперечной балкой, примерно в верхней трети.
- Выведите между стропилами закладные для вентиляционной системы, дымохода, фановой трубы.
После этого можно приступать к обшивке фронтонов и укладке кровли.
- Поверх стропил снаружи укладывают гидроизоляцию. Ее прибивают тонкими балками, параллельными стропилам.
- Поперек балок монтируют деревянную обрешетку. Шаг зависит от выбранного материала кровли.
- К обрешетке прибивают металлочерепицу или другой кровельный материал.
- Внутри между стропилами враспор укладывают утеплитель. Его и стропила закрывают пароизоляцией целиком, фиксируя ее поперечными балками. Они станут обрешеткой для чистовой отделки, например, ГКЛ.
- Конек закрывают цельной металлической накладкой поверх гидроизолирующего материала.
Завершающий этап — обшивка свесов сайдингом или вагонкой, установка водосточной системы, снегозадержателей, дымоходов. На все трубы, выходящие из крыши, нужно надеть цельный фартук из оцинкованного металла. Стык между ним и трубой промазывают герметиком или закрывают резиновым уплотнителем.
Обшивка фронтонов выполняется по той же схеме, что и стен.
- Нужно закрепить на горизонтальном опорном брусе и крайних стропилах несколько опорных стоек.
- Между ними враспор уложить утеплитель. Внутри его закрывают пароизоляцией, снаружи — гидро- и ветрозащитой.
- Поверх пленок прибивают обрешетку, которую закрывают сайдингом снаружи, листовым материалом изнутри.
- Ближе к коньку нужно предусмотреть закладную для вентрешетки. Она не даст влаге скапливаться в стропильной системе. Вентрешетки или небольшие окна должны быть на каждом фронтоне.
- Свесы крыши подшивают перфорированным сайдингом. Это обеспечивает естественный воздухообмен.
Окна и двери
Об установке окон и входной двери нужно думать еще при сборке каркаса. Рама и дверная коробка будут держаться на горизонтальных перемычках над и под проемом. Их делают из бруса толщиной 50х100 мм. Обычные стойки 50х150 мм и такие перемычки при правильном монтаже выдержат вес рамы или полотна до 100 кг. Панорамные окна или бронированные стальные двери могут весить больше. Под них нужно закладывать сдвоенные или строенные стойки, усиленные горизонтальные перемычки. Это нужно делать еще на этапе создания рабочих чертежей стены.
В каркасный дом можно установить деревянные или пластиковые окна. Правильно утепленные стены каркасника практически не пропускают воздух. Поэтому в конструкции окон должны быть предусмотрены открывающиеся створки или хотя бы вентклапаны. В помещении с газовым котлом или плитой окно с форточкой обязательно.
- Подготовленные проемы закрывают гидроветроизоляционной мембраной или защитными лентами. Они должны с нахлестом заходить на фасад.
- В проем вставляют раму окна или коробку двери. Выравнивают по уровню с помощью монтажных клиньев, которые подставляют по периметру.
- Через отверстия в коробке или анкерных пластинах на раме сверлят отверстия в нужных точках проема.
- Раму или коробку фиксируют крепежом и еще раз проверяют по уровню. Если все в порядке, пространство между ними и проемом запенивают на 2/3, пока не вытаскивая монтажные клинья. После застывания пены аккуратно убирают их, запенивают промежутки.
- К коробке на петли крепят полотно. В раму вставляют стеклопакет, если он еще не закреплен.
После окончательной регулировки замков, ручек и другой фурнитуры можно пользоваться дверями и окнами. Откосы, отливы, подоконники и наличники можно ставить чуть позже или сразу. Но они должны быть готовы до чистовой отделки стен и фасада. Пока они не поставлены, нужно закрыть пространство вокруг проема пленкой или как-то еще защитить от влаги. Снаружи откосы и дверной проем должны быть закрыты влагостойким материалом. Лучший вариант — оцинкованный металл. Внутри отделка может быть любой. Обычно откосы внутри закрывают панелями из МДФ или ГКЛ.
Коммуникации
При сборке каркасного дома коммуникации прокладывают в 3 этапа.
- На этапе создания фундамента и чернового пола. В бетонном фундаменте до заливки заранее закладывают гильзы под электрокабель, водопроводные и канализационные трубы, если они предусмотрены проектом. В качестве гильз под воду используют стальные или толстостенные пластиковые трубы. Их диаметра должно хватить на водопроводную или канализационную трубу, утеплитель вокруг нее, греющий кабель. Гильзы под проводку — только металлические, с негорючим антикоррозионным покрытием. Гильза должна проходить через всю толщу бетона и черновой пол. В его утеплителе под нее вырезают отверстия, которые затем закрывают водонепроницаемым строительным скотчем или запенивают. Если фундамент свайный или столбчатый, после установки свай между ними вырывают траншеи глубиной от 1 метра. В них укладывают по отдельности электрический кабель, канализационные и водопроводные трубы в защитной гильзе, с утеплителем. Гильзу выводят на поверхность и проводят через черновой пол.
- После сборки каркаса и крыши. Между стойками и утеплителем проводят гильзы или короба под вентиляционные каналы. Если планируется вывод всех каналов через общий воздуховод на крышу, выходы из каждой комнаты лучше делать во внутренних перегородках, а не в уличных стенах. В фасаде закладываются гильзы под принудительную вентиляцию, а также трассы для кондиционера, если планируется его установка.
- При внутренней отделке. Внутреннюю разводку труб и проводку не советуют прокладывать скрытым методом в стенах. При поломке придется разбирать их до каркаса, нарушать паро- и теплоизоляцию. Чтобы скрыть трубы в доме, используют короба или пространство за внутренней обшивкой из гипсокартона. Проводку тоже прокладывают за обшивкой потолка и стен или открытым способом в кабель-каналах. Для скрытой проводки обязательно использование защитных негорючих металлических рукавов.
Подключением газа и электричества должны заниматься специалисты. Вентиляцию и водопровод можно проложить самостоятельно. Вентканалы должны быть готовы до подключения газового котла и плиты: специалисты газовой службы будут проверять воздухообмен перед работой.
Сроки и этапы финишной отделки
Каркасный дом считается собранным, когда в нем стоят окна и двери, уложена кровля, стены снаружи зашиты листовым материалом и защищены от влаги. К внутренней отделке можно приступать сразу, но лучше подождать 1-2 месяца. За это время дерево немного подсохнет и усядется.
Отделочные работы внутри можно проводить даже зимой. Но собрать и зашить каркас лучше до конца лета. Если вы не успеете сделать это до осенних дождей, придется думать о защитной гидроизоляции поверх крыши и стен.





Пока комментариев нет. Начните обсуждение!