Хотите чуда в маленькой квартире? Дзен по-русски

2-комнатная • 38,9м² • П-46М • 09.12.2016
Несколько авторов Свернуть
Наталья Руденко Аксессуары
Юлиана Фидарова Аудиовидеодизайн
Михаил Ефремов Аксессуары
Ирина Голицина Архитектор, декоратор
Дизайн-проект перепланировки однокомнатной квартиры общей площадью 38,9м2 в панельном доме серии П-46М.

Четыре варианта перепланировки однокомнатной квартиры общей площадью 38,9 м2 в доме серии П46-М. Читать далее...

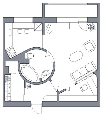
План
Комната Было Стало
Общая площадь 38,9 м2 38,9 м2
Жилая площадь 20,9 м2 19,9 м2
Количество комнат 1 2
Высота потолка 2,64 м
Прихожая 3,3 м2 3,5 м2
Шкаф ,9 м2
Коридор 1,3 м2
Комната 20,9 м2
Кухня 8,6 м2 5,8 м2
Ванная комната 2,8 м2
Туалет 1,1 м2
Балкон 4,4 м2 4,4 м2
Гостиная 16,4 м2
Кабинет 3,5 м2
Санузел 5,3 м2
Гардеробная 4,4 м2
Редакция предупреждает, что в соответствии с Жилищным кодексом РФ требуется согласование проводимых переустройств и перепланировок.
Авторы
Наталья Руденко Аксессуары
Юлиана Фидарова Аудиовидеодизайн
+ 1
Михаил Ефремов Аксессуары
Ирина Голицина Архитектор, декоратор
+ 2
Несколько авторов Свернуть
Если это ваш проект, пожалуйста, свяжитесь с нами по адресу ivd@burda.ru, указав в письме ссылку на проект.
Квартира 2-комнатная
Комментарии (0)

Пока комментариев нет. Начните обсуждение!

Похожие перепланировки