Метаморфозы квартиры: Жилье для жизни

2-комнатная • П-46 • 09.12.2016
Несколько авторов Свернуть
Вадим Дубров Архитектор, декоратор
Виктория Дуброва Архитектор, декоратор
Анна Лепешкина Архитектор, декоратор
Елена Тимохина Архитектор, декоратор
Николай Бастриков Архитектор, декоратор
Максим Гришанов Архитектор, декоратор
Леонид Гришанов Архитектор, декоратор
Андрей Пекашев Архитектор, декоратор
Алина Жданова Архитектор, декоратор
Кирилл Баскаков Архитектор, декоратор
Андрей Гладышев Архитектор, декоратор
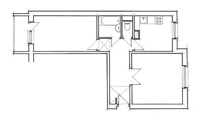
Дизайн-проект перепланировки двухкомнатной квартиры общей площадью 51,9м2 в панельном доме серии П-46.

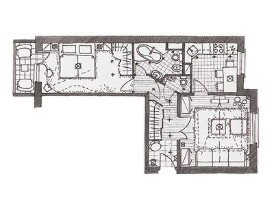
Семь вариантов перепланировки типовой двухкомнатной квартиры общей площадью 52,1 м2. Читать далее...

План
Комната Было Стало
Общая площадь 52,1 м2
Жилая площадь 30,5 м2
Количество комнат 2 2
Высота потолка 2,64 м
Прихожая 5,8 м2
Коридор 2,7 м2
Кухня 8,6 м2
Жилая комната 17,1 м2
Ванная комната 3,9 м2
Балкон 3,1 м2
Редакция предупреждает, что в соответствии с Жилищным кодексом РФ требуется согласование проводимых переустройств и перепланировок.
Авторы
Вадим Дубров Архитектор, декоратор
+ 2
Виктория Дуброва Архитектор, декоратор
+ 1
Анна Лепешкина Архитектор, декоратор
+ 2
Елена Тимохина Архитектор, декоратор
Николай Бастриков Архитектор, декоратор
Максим Гришанов Архитектор, декоратор
Леонид Гришанов Архитектор, декоратор
Андрей Пекашев Архитектор, декоратор
+ 1
Алина Жданова Архитектор, декоратор
+ 3
Кирилл Баскаков Архитектор, декоратор
+ 1
Андрей Гладышев Архитектор, декоратор
+ 1
Несколько авторов Свернуть
Если это ваш проект, пожалуйста, свяжитесь с нами по адресу ivd@burda.ru, указав в письме ссылку на проект.
Квартира 2-комнатная
Комментарии (0)

Пока комментариев нет. Начните обсуждение!