Однокомнатная квартира в доме серии П-111М: Большой каньон
Десять концептуальных дизайн-проектов. Откровения архитекторов и дизайнеров о рождении своих интерьеров. Читать далее...

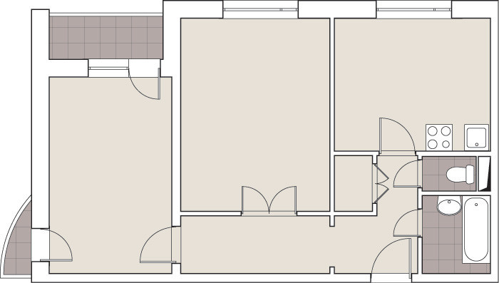
Комната | Было | Стало |
---|---|---|
Общая площадь | 40,1 м2 | 40,1 м2 |
Количество комнат | 1 | 2 |
Высота потолка | 2,56 м | 2,56 м |
Прихожая | – | 5,2 м2 |
Кухня | – | 10 м2 |
Гостиная | – | 13 м2 |
Спальня | – | 6,6 м2 |
Санузел | – | 5,3 м2 |
Лоджия | – | 3,8 м2 |
Балкон | – | 1,2 м2 |
Пока комментариев нет. Начните обсуждение!