Кухня-ниша в studio

1-комнатная • 32м² • МТ-9 • 09.12.2016
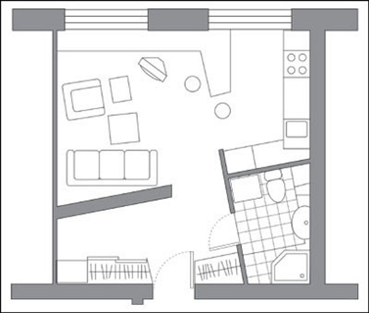
Кухня площадью 7м2 в однокомнатной квартире дома серии МТ-9. Реализованный проект. Смета.

Кухня площадью 7 м2 в однокомнатной квартире дома серии МТ-9. Реализованный проект. Смета. Читать далее...

План
Комната Было Стало
Общая площадь 32 м2 32 м2
Количество комнат 1 1
Площадь кухни 7 м2 7,2 м2
Редакция предупреждает, что в соответствии с Жилищным кодексом РФ требуется согласование проводимых переустройств и перепланировок.
Материалы и цвета
Кухня
  • Пол: плитка керамическая CERAMICA D'IMOLA
  • Стены: штукатурка «Кнауф Гипс», краска Tikkurila
  • Потолок: краска Tikkurila
  • Оборудование: духовой шкаф Ariston, варочная панель Ariston
Авторы
Если это ваш проект, пожалуйста, свяжитесь с нами по адресу ivd@burda.ru, указав в письме ссылку на проект.
1-комнатная
Комментарии (0)

Пока комментариев нет. Начните обсуждение!