Старые проблемы- новые решения: Дом самоцветов

1-комнатная • МТ-9 • 09.12.2016
Несколько авторов Свернуть
Максим Самойлов-Бабин Архитектор, декоратор
Татьяна Орлова Архитектор, декоратор
Юрий Зубенко Архитектор, декоратор
Павел Ефимов Архитектор, декоратор
Екатерина Костина Архитектор, декоратор
Михаил Балабанов Архитектор, декоратор
Дизайн-проект перепланировки однокомнатной квартиры общей площадью 32м2 в доме серии МТ-9.

Восемь вариантов перепланировки однокомнатной квартиры общей площадью 32 м2 в типовом доме серии МТ-9. Читать далее...

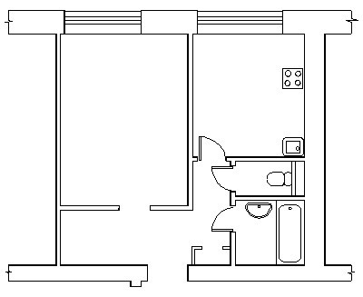
План
Комната Было Стало
Общая площадь 32 м2
Количество комнат 1 1
Редакция предупреждает, что в соответствии с Жилищным кодексом РФ требуется согласование проводимых переустройств и перепланировок.
Авторы
Максим Самойлов-Бабин Архитектор, декоратор
+ 3
Татьяна Орлова Архитектор, декоратор
+ 7
Юрий Зубенко Архитектор, декоратор
Павел Ефимов Архитектор, декоратор
Екатерина Костина Архитектор, декоратор
+ 2
Михаил Балабанов Архитектор, декоратор
+ 3
Несколько авторов Свернуть
Если это ваш проект, пожалуйста, свяжитесь с нами по адресу ivd@burda.ru, указав в письме ссылку на проект.
Квартира 1-комнатная
Комментарии (0)

Пока комментариев нет. Начните обсуждение!

Похожие перепланировки