Трехкомнатная квартира в доме серии МПСМ: Все отенки белого

4-комнатная • 104,4м² • МПСМ • 09.12.2016
Несколько авторов Свернуть
Марина Измайлова Руководитель мастерской
Марина Измайлова Архитектурное бюро
Андрей Волков Аудиовидеодизайн
Сергей Ветохов Архитектурное бюро
Ольга Королева Аудиовидеодизайн
Татьяна Алякова Аксессуары
Татьяна Алякова Архитектурное бюро
Алла Андреева Аудиовидеодизайн
Юлия Савенкова Аудиовидеодизайн
Елена Трубина Аудиовидеодизайн
Елена Трубина Архитектурное бюро
Алла Андреева Архитектурное бюро
Дизайн-проект перепланировки трехкомнатной квартиры общей площадью 105м2 в панельном доме серии МПСМ.

Три дизайн-проекта трехкомнатной квартиры общей площадью 105 м2 и два дизайн-проекта четырехкомнатной квартиры общей площадью 119,3 м2 в панельном доме серии МПСМ Читать далее...

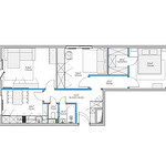
План
Комната Было Стало
Общая площадь 105 м2 104,4 м2
Количество комнат 3 4
Высота потолка 2,85 м 2,7 м
Прихожая 5 м2 3,5 м2
Холл 8,9 м2
Кухня 13,9 м2 7 м2
Жилая комната 15,8 м2
Ванная комната 5,9 м2
Туалет 1,8 м2
Кладовая 2,2 м2
Коридор 5,6 м2 3,4 м2
Гардеробная 1,9 м2
Лоджия 3,8 м2 3,8 м2
Балкон 5,6 м2 5,6 м2
Гостиная 31,1 м2
Спальня родителей 14,6 м2
Комната студентки 12,8 м2
Комната мальчиков 20 м2
Гардеробная при комнате студентки 2 м2
Гардеробная при комнате мальчиков 2,2 м2
Гостевой санузел 5 м2
Хозяйский санузел 2,8 м2
Редакция предупреждает, что в соответствии с Жилищным кодексом РФ требуется согласование проводимых переустройств и перепланировок.
Авторы
Марина Измайлова Руководитель мастерской
+ -1
Марина Измайлова Архитектурное бюро
+ -1
Андрей Волков Аудиовидеодизайн
+ 3
Сергей Ветохов Архитектурное бюро
+ 22
Ольга Королева Аудиовидеодизайн
+ -1
Татьяна Алякова Архитектурное бюро
+ -1
Алла Андреева Аудиовидеодизайн
+ -1
Юлия Савенкова Аудиовидеодизайн
+ -1
Елена Трубина Аудиовидеодизайн
+ -1
Елена Трубина Архитектурное бюро
+ -1
Алла Андреева Архитектурное бюро
+ -1
Несколько авторов Свернуть
Если это ваш проект, пожалуйста, свяжитесь с нами по адресу ivd@burda.ru, указав в письме ссылку на проект.
Квартира 4-комнатная
Комментарии (0)

Пока комментариев нет. Начните обсуждение!