Простор и компактность: Геометрия — основа формообразования

4-комнатная • • 09.12.2016
Несколько авторов Свернуть
Михаил Балабанов Архитектор, декоратор
Кирилл Городов Архитектор, декоратор
Михаил Шилов Архитектор, декоратор
Георгий Пряничников Архитектор, декоратор
Валерия Прянишникова Архитектор, декоратор
Виктория Даванкова Архитектор, декоратор
Ирина Масакова Архитектор, декоратор
Людмила Журавлева Архитектор, декоратор
Аркадий Ивашкин Архитектор, декоратор
Виктория Евстратова Архитектор, декоратор
Олег Гомжин Архитектор, декоратор
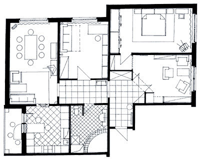
Дизайн-проект перепланировки четырехкомнатной квартиры общей площадью 100,8м2 в доме серии КОПЭ.

Восемь вариантов перепланировки четырехкомнатной квартиры общей площадью 100,8 м2 в панельном доме серии КОПЭ. Читать далее...

План
Комната Было Стало
Общая площадь 100,8 м2
Жилая площадь 64,7 м2
Количество комнат 4 4
Высота потолка 2,64 м
Кухня 10,8 м2
Спальня 18,6 м2
Детская 13,8 м2
Гостиная 18,9 м2
Кабинет 11,4 м2
Редакция предупреждает, что в соответствии с Жилищным кодексом РФ требуется согласование проводимых переустройств и перепланировок.
Авторы
Михаил Балабанов Архитектор, декоратор
+ 3
Кирилл Городов Архитектор, декоратор
+ 5
Михаил Шилов Архитектор, декоратор
+ 4
Георгий Пряничников Архитектор, декоратор
+ 5
Валерия Прянишникова Архитектор, декоратор
+ 2
Виктория Даванкова Архитектор, декоратор
+ 2
Ирина Масакова Архитектор, декоратор
Людмила Журавлева Архитектор, декоратор
Аркадий Ивашкин Архитектор, декоратор
+ 1
Виктория Евстратова Архитектор, декоратор
+ 1
Олег Гомжин Архитектор, декоратор
Несколько авторов Свернуть
Если это ваш проект, пожалуйста, свяжитесь с нами по адресу ivd@burda.ru, указав в письме ссылку на проект.
Квартира 4-комнатная
Комментарии (0)

Пока комментариев нет. Начните обсуждение!